查看完整案例

收藏

下载
归家
茶香溢满屋
115㎡
无论古今,凡有茶之处,必有雅士居住。
国人爱茶,惜茶,追求的不仅是一种淡雅的味道,更是一种生活方式的体现。设计师依托原有的空间格局,在三室的基础上利用家具平添出一方茶室,无中生有的巧思有效利用起空间面积。即便是繁忙的日子里,也能与家人共品雅洁宁静。区域之间没有多余的隔断,客餐厅、阳台、茶室以开放形式呈现,设计最大程度地突出通透感,旨意让家庭团聚氛围更加和睦融洽。
入户区域利用悬空的玻璃展架营造隔而不断的效果,在保持美观的同时达到展示的作用。山纹天然石材作为电视墙背景,营造素雅的东方性格,软装设计在此基础上融入同色系家具,点缀黄铜、皮革材质突出品质感。朱红色跳跃其中,张弛有度的手法烘托出轻快的节奏感,色彩恰到好处的糅合,为家庭场景融入诗意。
真正的东方意境讲究平实真切,虽然不追求所谓的奢华,但有着自我的态度。主卧空间拆除原有的部分墙体,用玻璃隔断来减轻空间的局促感,飘窗处由软装围造一方品茗小室,强调茶道的设计主线。软装延续客厅的淡雅色制,朱红色贯穿整体视觉,温柔婉约地注入,勾勒出理想的心灵栖息之所。
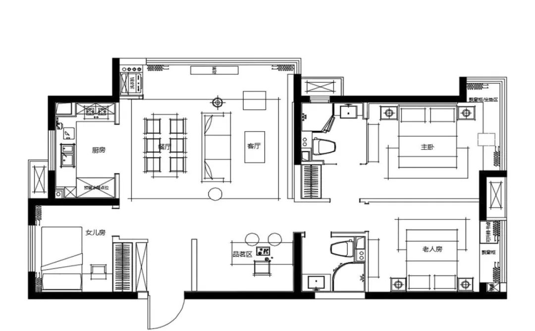
(平面布置图)
掠影
金色年华 98㎡
相机是我的工具。透过它,我给周遭的事物一个理由。—— 摄影名家安德烈·凯尔泰斯
明亮简约的空间基调像是空白胶片,有着无限可能性。
我们用情感体会人间冷暖,用镜头捕捉生活之美,用设计打造栖居之所。
整个公共区域不做任何隔断,形成开阔的居家格局。客厅主背景墙由潘多拉天然石材带出现代时尚的氛围,以低调沉稳的爱马仕橙进行绘制,通过不同材质的渲染,赋予空间灵动的气息。
设计师将书房打造成集工作与展览的小天地,墙面展示的方式有效利用起空间,展现出现代风格的创造力。
除了色彩的延续,设计师以「圆」抽象演绎相机镜头,突出居者爱好特征。爱马仕橙流动至每个空间,简单奢华的现代设计语言,赋予居所雅致的艺术意境。
(平面布置图)
项目全名:金地水木芳华样板间
项目地址:太原
软装设计:元禾大千
硬装设计:元禾大千
设计时间:2020.12
完工时间:2021.04
空间面积:115㎡/98㎡
甲方单位:山西金利慧丰置业有限公司
特别支持:金地太原公司设计部
摄影团队:失窃的未来
客服
消息
收藏
下载
最近































