查看完整案例

收藏

下载
白色干净纯粹,具有极大的包容性;蓝色自由浪漫,让空间舒适而温馨。家作为物质与精神的栖息场所,元禾大千用色彩打造中交建发松雅院下叠样板间,由设计构筑具有艺术感的居家环境。
青中蓝搭配纯粹的米白色,传递出简洁明朗的感受。在方形空间里运用圆形家具,有着恰到好处的和谐,方圆之间,尽显优雅。
用餐环境是具有仪式感的,设计师采用纯白的大理石餐桌与青中蓝的椅凳搭,餐椅摆放以围坐的方式出现,营造浓厚的家庭氛围。
灰色的睡眠空间里配上蓝色,不规则的吊灯宛如一只蝴蝶,低饱和度的颜色让人沉静下来。
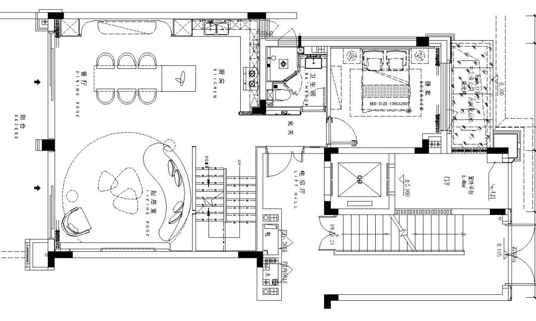
(一层平面图)
书房里家具选择与地板相同的颜色,一枝绿叶的加入给房间衬托出春意之感,空间的生命力跃然升起。桌角的抽象画与一旁的壁画带来给延展视觉,让居者在创作时产生无限想象力。
色彩的融合转移到卧室,白与蓝的碰撞制造出让人放松的家居环境。睡眠空间里的吊灯迎合着墙壁的线条,软装设计注重空间结构与细节,线条立面连至天花,处处是对流线的考究。
墙面的线条分割开整个室内空间,一面是舒适的睡眠环境,一面是悠哉的休闲空间。阳光透过窗帘洒进来,沙发、靠枕与毛毯被阳光所包围,配上一壶清茶也略显慵懒。
高级的灰色调窗帘与柔美浪漫的粉红色墙壁相遇,设计师将具有现代感的圆弧线条装饰加入女孩房,小提琴样式的抱枕、床头的耳机打破常规形态的家居,显得温馨又可爱。
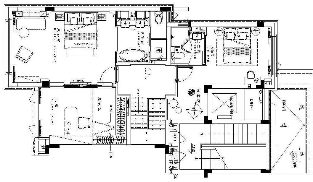
(二层平面图)
音乐是生活中的调剂品。设计师运用胡鑫的音乐影像艺术,将爵士乐可视化并带入家庭。青中蓝装饰的架子鼓与不规则小圆凳充满视觉张力,灰色石纹的地砖加上同色系的地毯,提升视觉的层次感。
转角的走廊墙面作为镜面,使整体空间具有延展性。
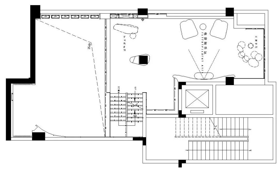
(负一楼平面图)顺阶而下,设计师减少蓝的用量,整体只留下椅凳作为蓝色而点缀,更显静谧。墙壁上的金属状犹如音乐的弧线,落地的线条增添画面质感,绿树带来春天的气息,沙发以围合的方式与弧形的墙壁契合,营造出轻松和谐的家庭气氛。
白色大理石吧台搭配上青中蓝的高脚吧椅,色彩与空间的对话延续至此,更加轻盈洒脱。闲时,邀家人或是朋友共把酒言欢、笑谈人生,何尝不是人生一大美事?
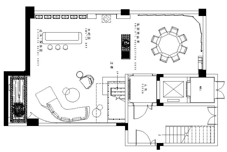
(负二层平面图)
项目全名:中交建发颂雅院下叠样板房
项目地址:长沙
软装设计:元禾大千
硬装设计:厦门名艺佳装饰设计有限公司
设计时间:2020.07
完工时间:2020.10
空间面积:380㎡
甲方单位:中交·长沙建发
摄影团队:鲁哈哈
客服
消息
收藏
下载
最近




































