查看完整案例

收藏

下载
构建一处居所并不难,难的是这个空间的灵魂与情感。优雅、高级是映入眼帘的第一印象,在注重家温暖与生活气息的同时,设计赋予空间奢华的灵魂,重构现代意式风情。
匠心与艺术碰撞,定义轻奢的整体格调。空间以中性色调为主,赤橙色作为点缀,背景黑白灰花纹石材素雅质朴,传递细腻的质感。皮革、棉麻等自然素材,在定义空间的同时,以摩登的立体化设计,编织空间丰富的表情。
造型简洁、线条流畅的家具组合营造出独有的气质与品格
功能是空间布局最朴素的起点,而设计则赋予更深层次的意义。光线的恰如其分,让室内外无界沟通。大理石与玻璃材质碰撞出高冷时尚的质感,巧妙地为空间赋予可感知的生活态度。灯光反射出的柔和光辉在此凝聚,生活的仪式感油然而生。
墙面艺术装置与雕塑摆件,虚实之间,赋予空间气质与灵魂。来一次艺术氛围的沉浸式体验,无论你在哪一个角度观摩,皆难掩其锋芒。
TOMDIXON 的精致餐具,在自然光的映衬下别具一格。书房是在喧嚣世事中安放精神世界的地方,造型独特的书桌,在色彩与材质的碰撞中凸显时尚摩登的气质。书架上的每一件摄影艺术品,皆成为日常生活的点缀。
激活感官的材质与肌理,形构出身份气度相匹配的精神生活场。米白色和咖色共同营造出雅致温和的氛围,皮革与丝绒床品配合高级的色彩,在艺术的氛围中表达生活的仪式感。抽象写意的艺术装置和摆件,各个元素协调一致,创造出静谧宁静的空间,回归家的温度。
私密空间,宁静的优雅格调。在工作繁忙奔波后,留出一抹能凝神静听的庇护所。
这里是少年释放天性的热爱之地。每一件藏品与艺术品装饰,都是对爱好篮球的诠释。和谐的色彩搭配与创意的造型,时尚且趣味,迸发未来的无限可能。
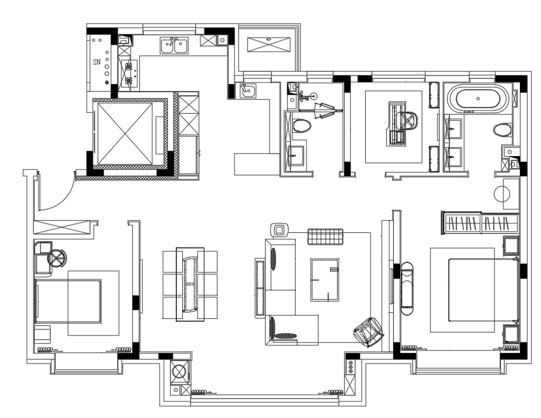
平面布置图
项目全名:隆基泰和·紫樾宸府样板间
项目地址:天津
软装设计:元禾大千
硬装设计:北京集意宴空间设计有限公司
设计时间:2020.10
完工时间:2020.11
空间面积:138㎡
甲方单位:天津隆远房地产开发有限公司
特别支持:隆基泰和集团设计管理部
精装施工:高碑店市盛唐广告装饰工程有限公司
摄影团队:大千视觉——张浩
客服
消息
收藏
下载
最近




























