查看完整案例

收藏

下载
金地自在城位于春城昆明,这里四季如春,云卷云舒。元禾大千以细腻而纯粹的设计手法,融入丰富的人文艺术,回应眼前美好。01 天然奏鸣曲 123㎡合院样板间客厅以木色系为主基调,沙发背景墙面由自然面暖色石材拼贴,凹凸有致的触感还原天然形制。同色系家具与天然木材优雅围合,藤编纱幔、棉麻质地让家的暖意又多了一些,休闲度假的氛围令人畅然自在。
岁月悠然,食之悠然。治愈的木色从客厅蔓延到餐厅区域,设计师把生机藏在深深浅浅的绿意中。不论是新鲜的苔藓还是点缀的装饰,带有生命力的绿通过细节注入用餐氛围,它们穿过光线、空气,鸣奏出天然的甜谧逸趣。
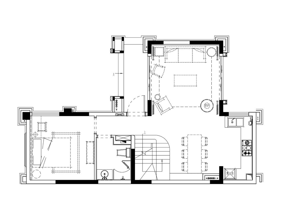
一层平面图
无论外面的世界多纷扰,家始终是释放真我的地方。
对于这个匆忙的时代来说,手作无疑是可贵的存在,设计师留一隅只为留住匠心匠意。窗外鸟鸣悠扬婉转,室内伊人以花作画,自有一种与世隔绝、携手隐居的浪漫。
大自然给予的天然触感给人以不同的感受,主卧整屋主体墙面采用创意实木板叠拼呈现,丰富细节层次。床品以肌理感十足的棉麻质地作为铺陈,局部由露褐色与螺子黛装点,折射出独立空间宁静温馨的诗意。
具有民族特色的饰品,回应着在地文化
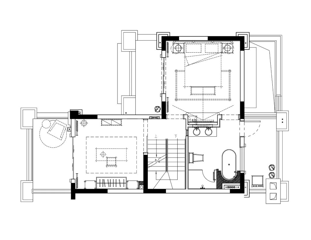
二层平面图
明亮大胆的蓝打开「魔法秘密基地」的场域之门。设计师借色彩的转变过渡空间,仅保留些许实木的使用,在与整体基调呼应的同时产生材质与颜色的双重对比,空间呈现双重感官。
三层平面图
四层平面图
项目全名:金地自在城合院样板间 123 户型
项目地址:云南昆明
软装设计:元禾大千
硬装设计:元禾大千
设计时间:2020.04
完工时间:2020.10
空间面积:185.5㎡
特别支持:昆明金地设计部
摄影团队:YONG 摄影
02 元气森居
89㎡ 平层样板间
色彩是一个家的灵魂,不仅传递自我个性,还承载着内心的情绪。设计师选择明朗清新的绿,拉开元气森居的序幕。
绿色代表着活力与新生,客厅减少对色彩的铺张,克制的点缀反而能增添新鲜的氧气感。光线透过清透的纱帘照进客厅,停留在奶油白的沙发上,这时的绿与白成为视觉焦点,风起帘动,唤起室内通透的感知。
设计师平衡色彩与空间的关系,截取少量的绿延伸进睡眠空间,加深色彩印象。纯白为底,墨绿为衬,这股惬意柔和的氧气感飘进卧室,颇像是诗意的留白,进一步加强元气森居的概念。
项目平面图
项目全名:金地自在城样板间 89 户型
项目地址:云南昆明
软装设计:元禾大千
硬装设计:深圳戴维空间设计有限公司
设计时间:2020.06
完工时间:2020.10
空间面积:89 ㎡
特别支持:昆明金地设计部
摄影团队:YONG 摄影
客服
消息
收藏
下载
最近












































