查看完整案例


收藏

下载
New Chaozhou Cuisine / A Diversified Space 定义新潮菜 / 多元复合的空间 - “吴”现代潮菜,背负着传承潮菜的使命与梦想。餐厅由 8 间包间/大厅/威士忌吧/红酒房构成,打造极具美学的新潮州菜与充满建筑诗意的空间环境。
我们将其设想为现代性的一种能量,以进步观念作为主导。用一种处于暂定状态的规则去营造一种独特的空间状态,空间中所发生的事件才是空间存在的价值。
Rationality / Architectural Aesthetics and Logic
定理性 / 独异性的建筑美学逻辑
“山有小口,仿佛若有光,复行十步,阔然开朗”。空间的建筑逻辑延伸了建筑本身的自由性。平面自由多样,强调空间的诱惑性,挑战人们既定的建筑价值观和被捆缚的想象力。低调的入口,封闭的电动门,以小见大的空间营造,曲径通幽的空间秩序,一切都在描绘着诗意的建造情境。
大厅的构成以墙面灰色艺术漆与木地板进行围合,重点强调与室外绿洲的联系。同时金属天花造型来强调空间的时尚与商务气息,这是一种冷静的舒适。
金色的电动门缓缓移动,进入我们视野的是前台接待与水吧功能结合的多功能服务区。发光的玻璃酒柜,显得轻盈又具有高级感。接待台前方的阵列木盒子,有效的强调了大厅的私密性用餐体验的同时,产生了强烈的建筑秩序感。吧台顶部用当代的几何造型与手工的编制木手艺进行碰撞,围合出了让人具有探索欲望的空间情境。∇ 服务区设计示意图
Construction / Dialogue Between Reality and Future
构建 / 现实与未来的互交
未来我们理解为一种我们想要去触碰的理想状态。吴,让我们进入了二次元的精神世界,像极了电影的虚拟世界。是超现实、夸张、抽象的,一种未来感的物质表象,具有有叙事性。可以通过空间来串联和联系一系列的事件,这是一个有趣和戏剧化的场景。
连接空间一二楼的黑色楼梯,用雕塑建筑的形式呈现,具有强烈的视觉冲击力与引导性,这是一个功能与美学共生的体现。
∇ 楼梯设计示意图
Light / Modern Aesthetics of Nature
光 / 自然中的现代性美学
光在空间中一种是被充当传达物理现象的一种介质。在设计的思考中,光本身就是一直显性的物质,应该作为空间中看得见的主体来呈现。通过光的物质性来传达人的精神世界,神秘、安静、虚幻的情绪因光而涌现。
通道空间作为一个人停留时间最短的空间,在设计中很容易被忽视,这些灰空间没有具有强烈的功能性,反而是感性设计表达的最佳方式。在通道的梳理中,一直无限度、空洞、自由的状态创造了曲径通幽的东方美学。
∇ 通道设计示意图
Storytelling / Negative Space as the Medium of Explicit Objects
故事 / 让负空间成为显性物质的载体
负空间中的行为才是主体,行为的发生所衍生的故事是内核。
在空间中,一种是被充当传达物理现象的一种介质。在设计的思考中,艾克建筑认为我们所产生的物体,围合而成的空间,具有强烈指向性与目的性。
它是看不见的,却是被使用的,应该作为空间中看得见的主体来呈现,这些行为才是我们设计的主体。
当人在空间中获得愉悦,意味着不属于真实的游戏规则在变成价值,我们都开始在这个游戏中获得利益。
包房的设计强调与周围环境的对话,以简洁的建造语言,强调舒适与焦点,强调人与人的互动与交流,绿色与红色的纸质感,具有汉代东方的色彩韵味。以一种不规则的空间形态出现,像自然围合又像建筑的延伸,像意外又像有意而为之,营造了意外的确定感。
空间构成理念是一个被折断掏空的雕塑体,让现实变得虚幻。而这样夸张的表达方式,离不开艺术的张力。
Playfulness / Expressions of Items
趣味 / 物象表情
对手工漆的材料表现形式进行实验性的创作,在灰色艺术漆中加入了金属颗粒,意外地拥有混凝土的质朴,同时拥有华丽的视觉。
结合地面木地板与金属材料的碰撞,软硬互相推让与和谐,冷暖色彩交替。
表现的是冷酷与温度的和谐,并将诱惑、幽默、神秘等元素融入空间的建造体系中。
∇ 艺术包厢设计示意图
Collision and Integration 抗衡与融合-吴是在用西方的设计秩序来建树东方的空间情绪与哲学。曲径通幽,以小见大,张扬且含蓄,一场东西方美学哲学碰撞。
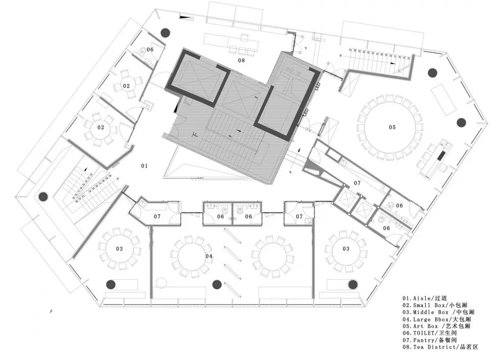
∇ 一层平面图
∇ 二层平面图
免责声明:
以上图片以及资料内容来源于网络,版权归原著作者及其公司所有;本资料仅供学习研究使用,若本文章侵犯到您的权益,请与我们联系删除。
END
地址:万家丽家居生活广场 4F
客服
消息
收藏
下载
最近



































