查看完整案例

收藏

下载
每一座城市,都竖起雕塑
石头、青铜和不锈钢
崛起的头颅,抽象的思绪
让城市艺术氤氲
当艺术闯入生活
...
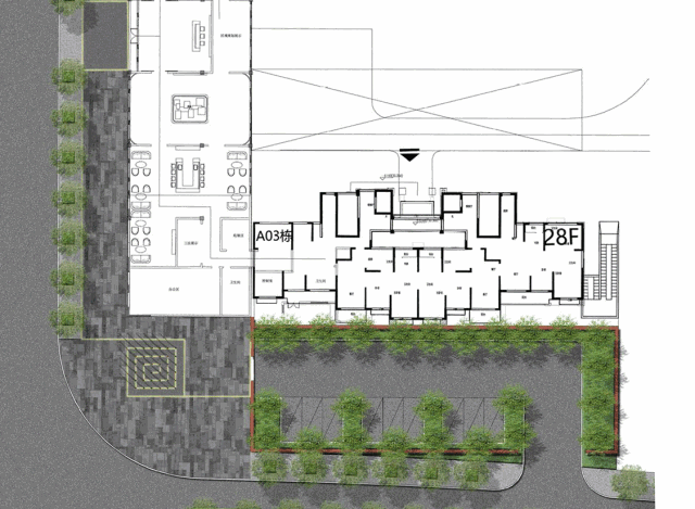
/ 项目概况 — 尺度 /
Project Overview
项目用地位于南京主城雨花台区
展示区面积约3400㎡
展示区景观面积约2100㎡
整体场地空间较小,呈“L”型
横向空间局限性比较大
▼ 方案平面图
设计
满怀一颗憧憬美好诗般生活的向往之心,
从艺术赏析的角度,结合地域特征(雨花台),
从
场地本身的局限和特点出发
,将“L”型狭长的街角空间升级为
灵动的艺术品质空间。
/ 广场空间 /
Square space
[雕塑]
灵动的雕塑艺术结合坐凳和标识功能是整个空间的点睛之笔。
流动的线条搭配镜面不锈钢材质,雕塑在阳光下仿佛流动起来。
[水景]
建筑前的镜面水景景观低调的衬托出建筑的气质,并且给场地带来了禅意的静谧感。
[树池]
从玻璃砖隔断流入水中的特色树池为水景添入了独特的色彩。链接了立面和平面,仿佛融化的金子流动在画面中。
[玻璃砖墙]
柔和半透明的玻璃砖墙,作为广场空间和停车场的隔断,朦胧的通透感给空间以温柔的触感。
[座椅]
因地制宜,结合“落花如雨”的意向,特别设计的梅花坐凳。
/ 商业街空间 /
Commercial street space
[空间]
[灯具]
延续“落花如雨”的意境和城南公馆海派风情的韵味。
/ 设计背后的故事 /
Behind the design
[空间演变]
▲ 投标方案
[原创雕塑]
▼ 施工版
[灯具]
[效果图-实景对比]
/ 结语 — 美学漫步 /
Conclusion
大自然的一切都是现成的素材,树叶、细枝、泉水,色彩、姿态、种类...而我们汲取了“落花如雨”的雨花台意境和流动的水形,创造了一个抽象的美学空间。让人们可以漫步、游弋于其中。
这里是室外生活的场所,回家、交谈、散步、嬉戏等活动让居住在这里的人能享受其中。它又是充满力量的,干净利落之间,令人着迷、思考。
项目地址:江苏南京市雨花台区华新路中海城南公馆
设计时间:2017年12月
建成时间:2018年12月
面积:3400㎡
我们的其他项目~
持续不断的创新|2018派澜设计盘点
于喧嚣城市中 · 觅得一方自在之所 | 佛山中海万锦世家
游园“鲸”梦 | 展示区变公园,鬼知道我们经历了什么
狭小空间的禅意新解|厦门中海九号公馆(原案名:厦门中海熹凤台)
光影艺术馆|宁波中海学仕里
600元/㎡的展示区景观 | 如何做出清新脱俗的品质感
PDS派澜作品:南宁万科金域蓝湾展示区景观设计
另外,我们长期招人哦~
包括以下~
项目经理
项目经理/高级项目经理
1. 具有4-8年及以上景观设计项目管理工作经验;
2.参与过大型住宅、公共或综合景观项目的设计工作;
3.负责公司项目各个节点、进度和质量把控;
4.相关专业毕业。
方案设计师
景观设计师/中级景观设计师/高级景观设计师/主创设计师
1. 具有0-8年及以上景观设计经验;
2.负责方案设计、深化、细部修改调整、建模、效果图、建模排版等;
3.对设计工作有热情,适应团队的工作方式;
4.相关专业毕业。
施工图设计师
施工图设计师/高级施工图设计师
1. 具有0-8年及以上施工图经验;
2.熟悉景观工程设计绘图规范,具备园林相关领域专业知识和技能;
3.对景观材料及建造有良好的认识,熟悉施工工艺及流程;
4.具备施工现场指导和协调能力,熟悉施工现场各专业的工作。
景观软装负责人
1. 具有5年及以上相关工作工作经验;
2. 负责过住宅、公共或综合景观等项目的景观软装设计工作;
3.
熟悉相关家具、灯具、饰品、花艺、布艺等款式,辅料采购渠道;
4. 对国内外配饰(陈设)设计具有深厚的认识,独到见解,对现代设计流行趋势具有敏锐触觉;
5. 善于沟通,
有良好的团队合作精神、高度的责任感和创作力。
6. 相关专业毕业。
实习生
1. 相关专业在读学生/应届毕业生;
2. 热爱景观设计,有强烈的求知欲和进取精神;
3. 熟练使用AutoCAD、InDesign、Photoshop、SketchUp等软件。
如何加入我们?
▷ 注意事项
3. 请于材料中注明工作起讫时间。
4. 可另附体现个人兴趣品味或竞争力的内容。
5. 甄选合格者我们将尽快与您联系,请耐心等待。
6.我们的工作地点在
深圳
。
客服
消息
收藏
下载
最近









































