查看完整案例

收藏

下载
项目名称|李宅
项目地址|苏州世贸铜雀台
项目面积|500平
主案设计|李翔
设计单位|升罗设计(苏州)有限公司
效果图设计|苏州Z&K表现
一隅方寸间,明朗和煦悄然发生
尊重场地精神
融入当代极简美学
让你发现潜于内心之中
真切的需求
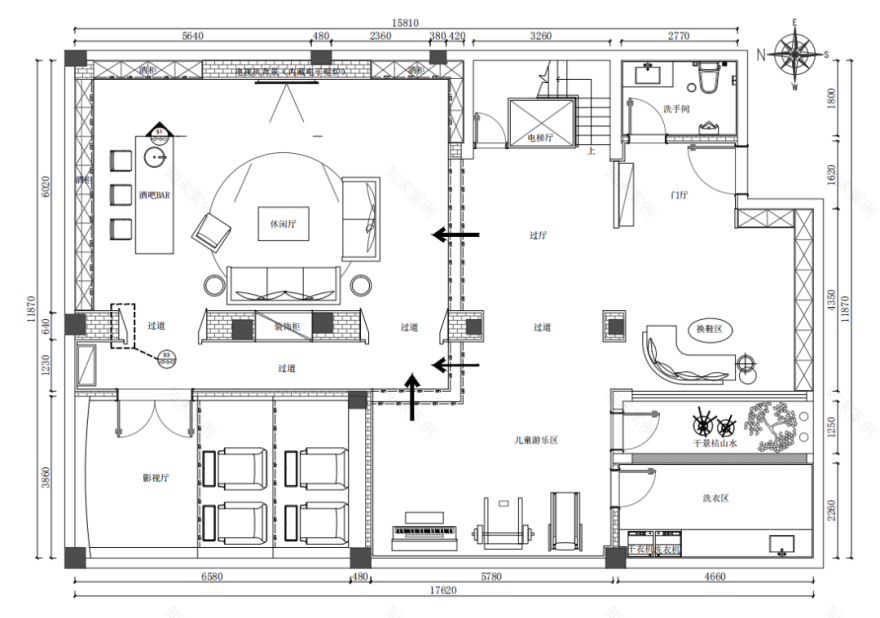
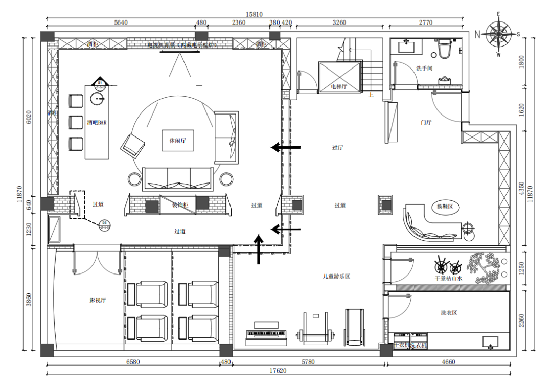
△ -2F健身娱乐休闲区
▲简而不单,简而不凡。共享与独立,是贯穿于整个空间的关键词,建筑细部作为一种表现艺术,所带来的精神愉悦令人痴迷。
▲在本案设计中,沉静的色调里将现代都市的时尚与轻奢演绎,通过细部的极致设计呈现出空间的温情与关怀,在阳光的照耀下,呈现出独特的艺术灵性。
△ -2F娱乐区域
▲超高的空间让整个活动区域的空间视觉感更强烈,也看起来更加宽阔。灰色并不是单调的,给灰色加入跳跃的红,让撞色感成为设计的点睛之笔。
△ -2F影视厅
▲舒适、隐秘、纯粹,是设计师对影视厅的诠释,让人更加放松的享受视觉盛宴。
△ -2F娱乐区域
▲空间的划分也不再局限于硬质墙体,而是更注重会客、生活起居、睡眠等功能空间的逻辑关系。开放连贯式空间布局,不仅突破了建筑结构的限制,还让
人与人、人与空间、空间与空间
变得更加融合与紧密。
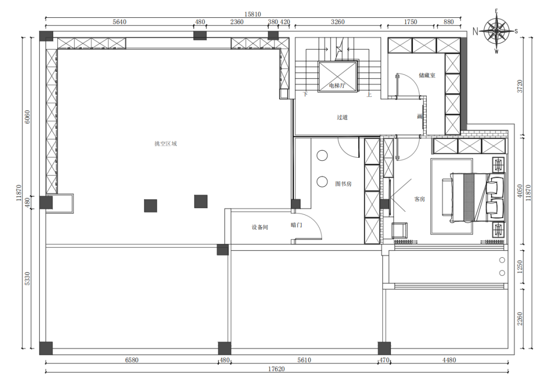
▲
负一、二层平面
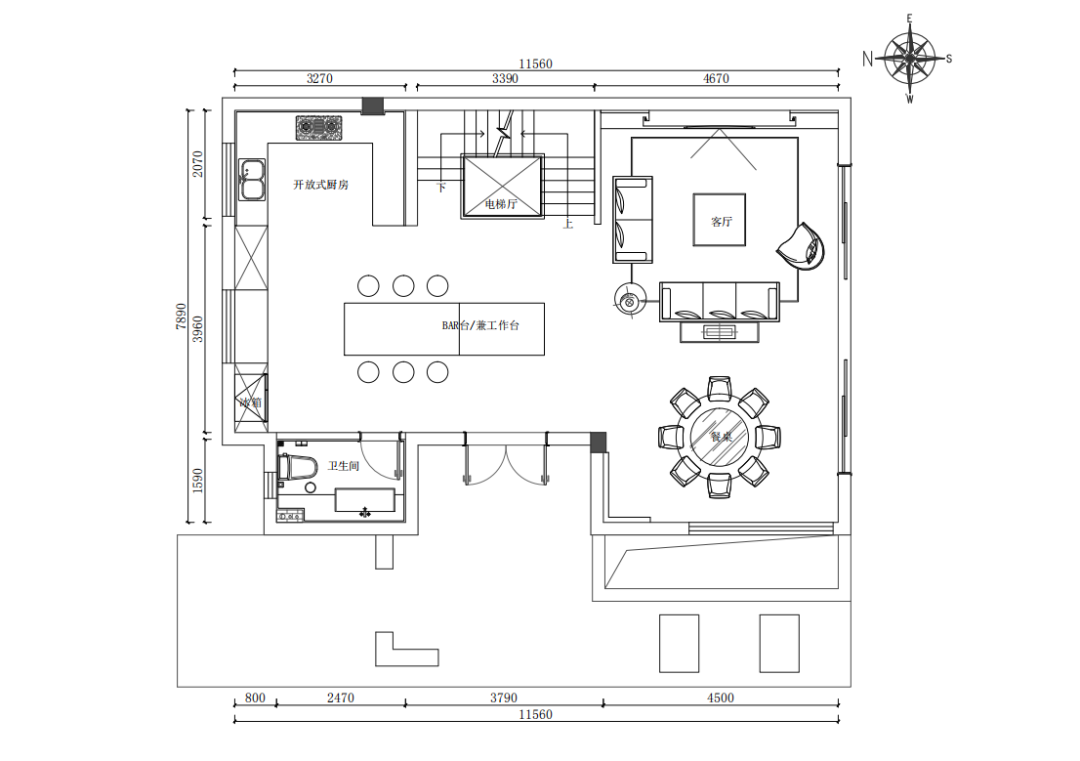
△ 1F客餐厅
▲都市人的每一天,急躁与静谧的时光不断轮回,在这一方天地,给你独享的快乐。整面的落地窗勾勒出明亮的空间,空间的点、面、线在一种张弛有度的博弈里,保持着微妙的平衡,使空间丰腴而富有张力。
△ 1F厨房
▲厨房与客餐厅的开放式设计理念,厨房与客餐厅形成"回"字动线,客餐厅与厨房联系紧密,空间通透,兼具动静皆宜的氛围,如同毫无拘束的容器,包纳生活的零零总总。
△ 1F卫生间
▲
一层平面
△ 2F起居室
▲晨醒梦空,是柔软的开始,引光入室,光里有了温情,影里有了画意,房间里没有过多繁杂的装饰和色彩,柔和的配色抒绘安静闲缓的环境气氛,甜美的公主房为你带来一夜好眠。
△ 2F起居室
▲男孩房的设计主题以体现活力与舒展度为主,大面积的黑板供男孩子去创作绘画,利用线条与灯光去打造明朗又不失单调的氛围。
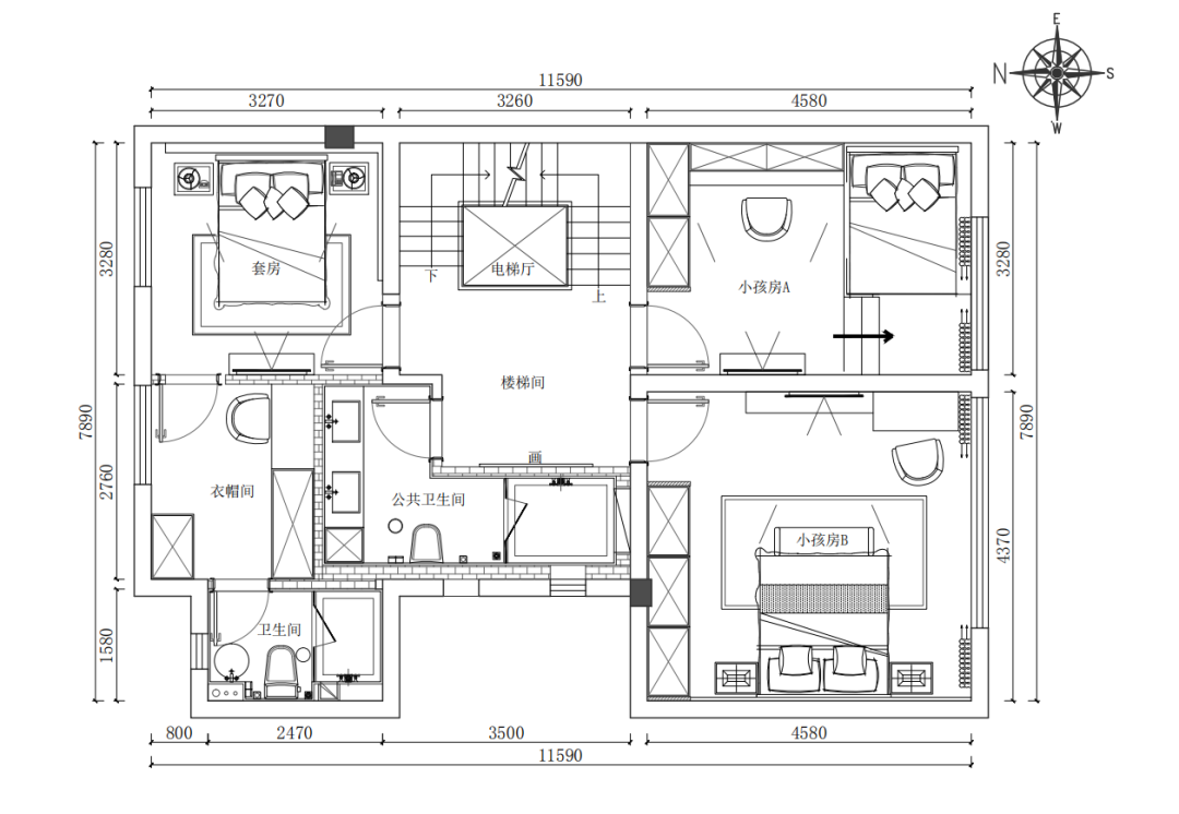
▲
二层平面
△ 3F主起居室
▲主卧设计延续整屋的调性,考虑足够的休闲性,将一切简化,以纯粹的状态出发,在卧室隔出独立休息的沙发区,也能享受“手倦抛书午梦长”的小憩时光。
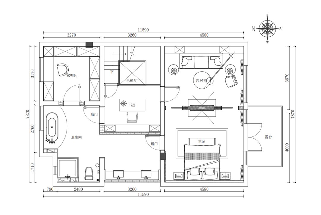
▲ 三层平面
△ 庭院景观
▲去繁从简,不做多余的设计,打造安逸精致之所。
李翔
升室内设计事务所董事兼首席设计
他曾前往英国、新加坡等多国进修学习,执业以来荣获多项大奖,红棉中国设计奖、大金内装设计最佳设计奖、苏州首届室内设计大赛最具创意设计奖、第六届日立中央空调Hi-Design室内设计大赛优秀奖等悉数荣获囊中,被评为全国优秀青年设计师、CBDA2019年度精英设计师等称号。
Xiang Li, Partner and Chief Designer
He has education backgrounds in multiple countries, such as Britain and Singapore. During his career, he has won many awards including 红棉中国设计奖、大金内装设计最佳设计奖、苏州首届室内设计大赛最具创意设计奖、第六届日立中央空调Hi-Design室内设计大赛优秀奖.Xiang was also certificated as 全国优秀青年设计师、CBDA2019年度精英设计师.
近期热文
▽
第一期|220m²大平层设计,以空间之礼,承载家的厚度
升 室内设计事务所
地址:姑苏区平江路大柳枝巷18号
客户经理工作号
关注升后期作品
客服
消息
收藏
下载
最近






























