查看完整案例

收藏

下载
项目名称 | 凌轩阁大酒店
项目地点 | 苏州市李公堤
项目面积 | 1500平
项目设计 | 李翔
项目摄影 | 盧小平
效果图设计 | 苏州Z&K表现
几重山水,几多故事
于此间山水
匠心合景精雕细琢
始呈大美之作
△ 公共区域实景图
中国人对于传统中式风格的喜爱,是深藏在骨子里的情怀。本案设计中设计师选用新中式设计,以绝美诗意的空间表达方式,将现代元素和传统元素结合在一起,以包罗万象的方式来演绎清雅含蓄、端庄丰华的东方式精神境界。
△ 1F公共区域实景图
初进凌轩阁,气度威仪与闲雅并重,延续了东方空间里前厅中庭后院的格局,并在其之上形成了新的变化,圆形镂空直棂窗的组合,突出了“天圆地方”、“天人合一”的哲学理念,营造出层层递进的景观体验空间。
△ 1F公共区域实景图
在空间设计中去掉了传统的、刻板的中式形象的标签,用一种全新的设计方式构成东方的美和神韵。
△ 包厢实景图
包厢整体以灰白棕色调为主体,不管是线条勾勒,还是细节处的装饰,新中式的雅韵也深深的包含其中,含蓄淡雅的风格更是营造出包厢中的东方神韵。
△ 包厢实景图
墙面上艺术山水绘画,似山的叠嶂似水的柔美,高低错落中,呈现飘渺山水的灵动逸致,与团扇的灯罩相呼应尽展东方柔美诗意。
△ 包厢实景图
高品质的格局空间艺术内容铸就层次并且彰显着气质,一物一景不过分奢华,一块一面不过分浮夸,唯求舒适和雅。
△ 凌轩阁效果图
在本案设计中设计师更讲究对称与平衡的哲学理念,点与点,点与线,面与面之间,将这样完美的意境更好地表达了出来。我们更好地看到了新中式装修效果的全貌,处处显露着新中式的风情。
△ 凌轩阁效果图
人生于世,无非寄托身躯,存身一隅美好的风景中,便胜却人间无数。这里有宁静致远的格局,有清风自来的淡泊,有返璞归真的绝俗,有身心寂静的归宿。
△ 凌轩阁效果图
设计之中,尊重传统,又不固守传统;传承传统,又施之以创新。利用得天独厚的地理环境使得宾客身处城市之中,却有大隐于市的舒适与静逸。
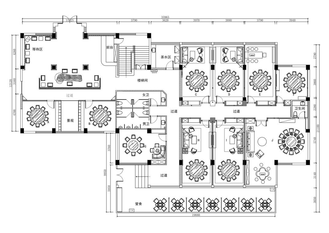
△ 凌轩阁1F平面
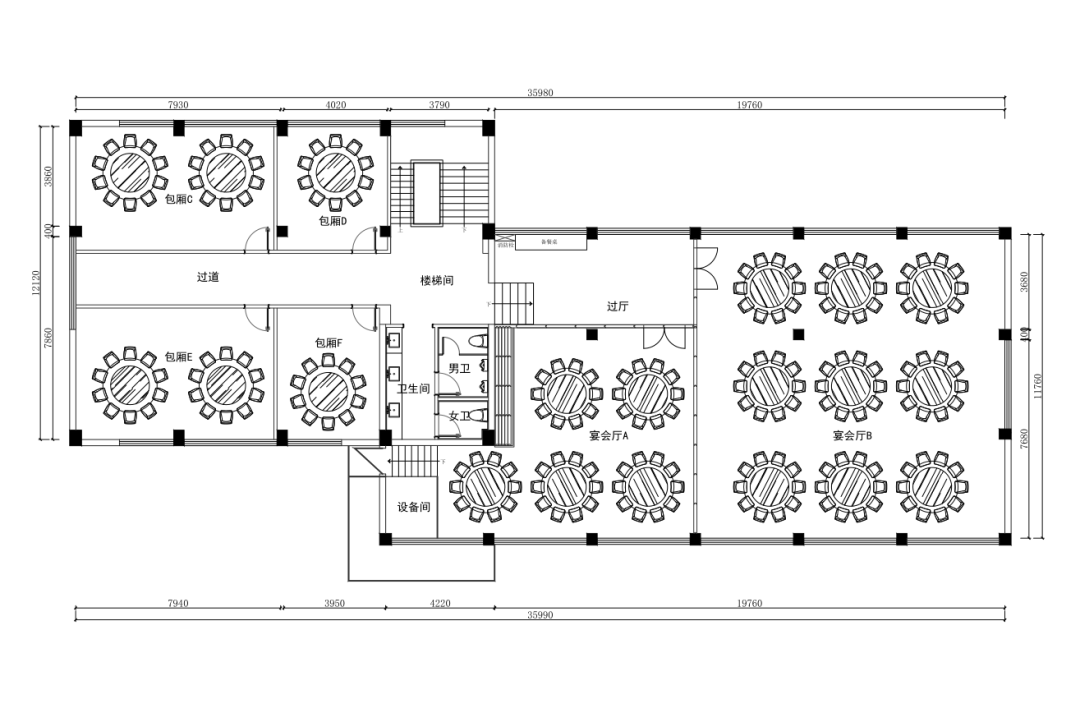
△ 凌轩阁2F平面
李翔
升室内设计事务所董事兼首席设计
他曾前往英国、新加坡等多国进修学习,执业以来荣获多项大奖,红棉中国设计奖、大金内装设计最佳设计奖、苏州首届室内设计大赛最具创意设计奖、第六届日立中央空调Hi-Design室内设计大赛优秀奖等悉数荣获囊中,被评为全国优秀青年设计师、CBDA2019年度精英设计师等称号。
Xiang Li, Partner and Chief Designer
He has education backgrounds in multiple countries, such as Britain and Singapore. During his career, he has won many awards including 红棉中国设计奖、大金内装设计最佳设计奖、苏州首届室内设计大赛最具创意设计奖、第六届日立中央空调Hi-Design室内设计大赛优秀奖.Xiang was also certificated as 全国优秀青年设计师、CBDA2019年度精英设计师.
近期热文
▽
第一期|220m²大平层设计,以空间之礼,承载家的厚度
第二期|执着于理想,纯粹于当下,定制你的生活之所
升 室内设计事务所
地址:姑苏区平江路大柳枝巷18号
客户经理工作号
关注升后期作品
客服
消息
收藏
下载
最近
































