查看完整案例

收藏

下载
ITEM INFORMATION
项目信息
项目地址|陕西
Project Location|Shanxi
项目面积|195㎡
Project Area|195 m²
设计风格|现代
design stylet|moder n times
设计时间|2022
time of design|2022
主案设计|张磊
designer|Lei Zhang
深化设计|齐思远
Detailed design|Si Yuan Qi
效果呈现|郭叶文
Effect presentation|Ye Wen Guo
原始结构
Primitive structure
原始结构图
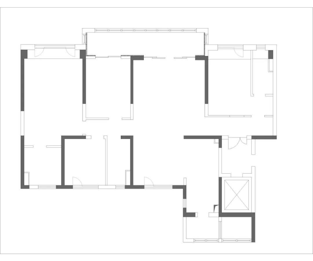
平面方案
Plan drawing
平面布置图
设计解析 Design Analysis
我们喜欢在每个空间中演绎生活,想象体验,并且在整个项目过程中,完全沉浸式地感受。
01. 客餐厅
客厅做为公共空间的核心,并以此串联其他空间。客餐厅一体的开阔格局,利用自然光作为设计要素始终贯穿其中,于光影变幻之中,营造别样的生活趣味,构筑出灵动自由的空间组合形式。空间演绎着沉稳静怡的情绪,客厅里大片落地窗,引领着室内,最大限度平衡承重结构与宜居空间的尺度需求。
02. 主卧
主卧空间延续了客厅的调性,沉稳内敛的设计氛围,减少了繁杂的造型与材质,高级灰结合色调各异的木饰造型墙面与窗外自然风光相连接,交织出细腻的层次秩序,舒适的高级感悠然而生,刻画出惬意与优雅栖居之所。
03. 次卧
简静的黑灰白,全然为屋子按下降噪键,无声、凝滞的气息,衬托结构材质与光线的精彩交会,彻底解放强烈的型格与空间表情——不败经典,亦能再次碰撞未知。
04.男孩房
精致简洁 大气低奢呈现出一种柔光灰色调。空间明亮通透,简洁大方,斜照进来的阳光一点点地勾勒出房间的轮廓,明朗的线条展示出丰盈的内心世界,让自由的呼吸之音传递给每个空气因子。05.女孩房
女孩房则简雅莹白,点缀几抹低饱和度的粉,仿若琉璃梦境般纯净自然,充满童思遐想。
06.卫生间
卫生间以雅奢为主,缓解一身的疲惫。瓶盏花艺的布置,清芬盈室,使整个空间清雅有致。墙排马桶省去卫生死角,便于清洁。END |感谢阅读 欢迎分享
逸境精造提供室内设计系统解决方案:
- 住宅空间室内设计
- 商业空间室内设计
- 家居软装陈设、布艺
- 智能家居
- 工程效果图、施工图表现
项目咨询/邀稿请联系
客服
消息
收藏
下载
最近















