查看完整案例

收藏

下载
ITEM INFORMATION
项目信息
项目地址|陕西 Project Location|Shanxi Ankang
项目面积|400㎡ Project Area|400m²
设计风格|现代 design stylet|modern
设计时间|2023 年 4 月 time of design|2023
主案设计|张磊 designer|LeiZhang
深化设计|王晶 段晓俤 Creative designer|Jing Wang&XiaodiDuan
效果呈现|金园 Effect presentation|Yuan Jin
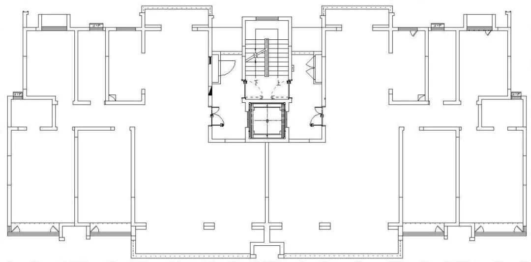
原 始 结 构 Primitive structure
平面方案
Plan drawing
设计解析
Design Analysis
充裕的空间也需要更细致的优化配置,找对需求方向重新定义,强调理性与极简,所有编排条理分明均有所用,摒除一切冗赘装饰。
01. 客餐厅
足量空间、大块白色的色调与大面玻璃强调视觉上的展现,使现代主义色彩,线条利落、轻快明亮、洁净无瑕的白色量体拔地而起,为本案室内规划,提供了许多良好的条件。
公共区域的开放度被提到了最高,无拘无束。干净的线条也是我们在设计上强调的重点,线条的存在可以让大空间在视觉上具有方向性。02. 厨房
厨房外原有的设备平台规划到中厨内使用,纯粹的功能性空间在使用上得到了极大的补充。
03. 主卧
主卧空间划分为睡眠区、更衣区和盥洗区。
家庭空间中的封闭小“家”,结构与空间、结构与氛围、结构与工艺,都被纳入到设计系统中,承载着功能也是装饰本身。
04. 主卧卫生间
全透明的玻璃结构搭建卫浴空间,将眼前的景利用到极致。
05.女孩房
一个完整的家居空间,应该有外放的沉稳大气,也应该有柔软温情的内里。从客厅至卧室,由外到内,构建一个逐渐平和,逐渐向心出发的旅程。
06.男孩房
明净的空间肌理,与原木的温润气息萦绕住所,室内的简单色彩,和谐搭配天然扑入的自然光,营造出舒适纯粹的休憩氛围,亦在一呼一吸间领略别样睡眠体验。
07.老人房
我们为长辈预留了一间卧室,让偶住的长辈也能在家里拥存在感,空间的色彩方面,将公共区域的颜色延续到房间内,更加沉稳、静谧。
08.书房
迎窗沐光,静逸安然,与空间一起共鸣生活与理想。
09.次卫
次卫干湿分离,便于使用。合理舒适的布局,精致利落的线条,丰富了视觉层次。
客服
消息
收藏
下载
最近























