查看完整案例

收藏

下载
ITEM INFORMATION
项目信息
项目地址|陕西 Project Location|Shanxi Ankang
项目面积|326㎡ Project Area|326 m²
设计风格|新中式 design stylet|model style
设计时间|2022 time of design|2022-2-20
主案设计|张磊 designer|LeiZhang
深化设计|王晶 段晓俤 Creative designer|Jing Wang&XiaodiDuan
效果呈现|金园 Effect presentation|Yuan Jin
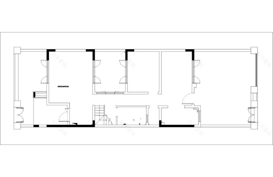
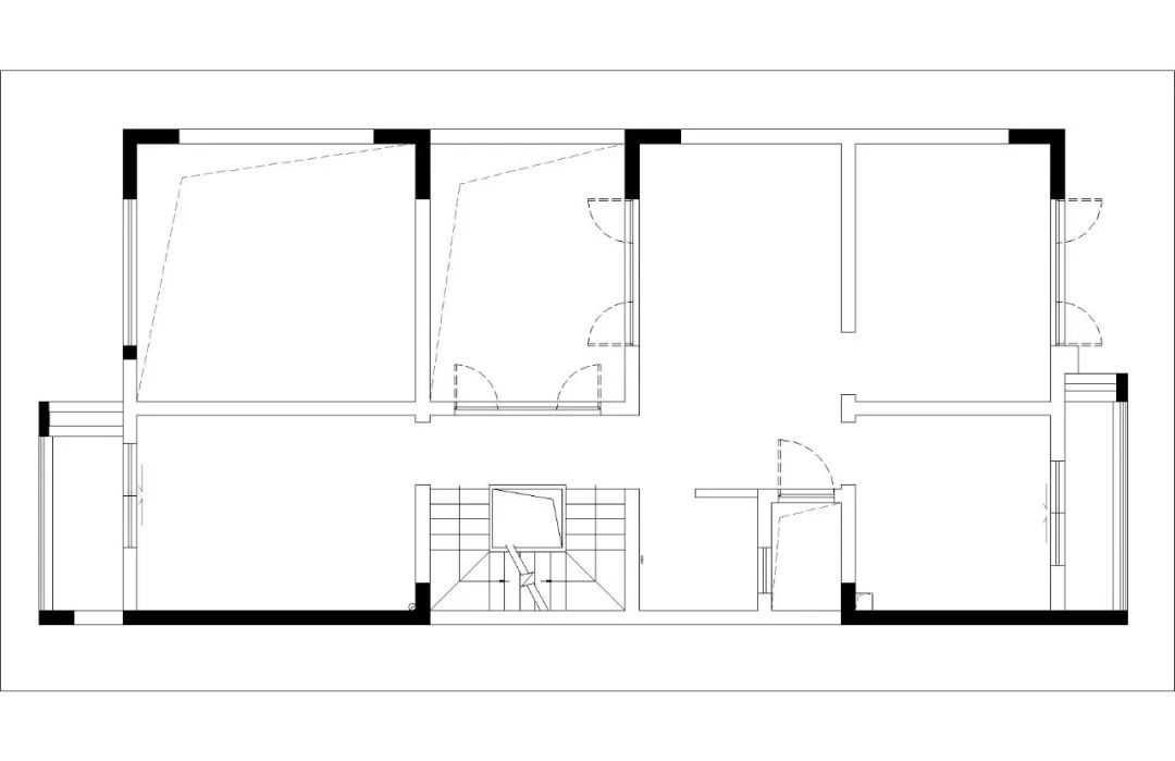
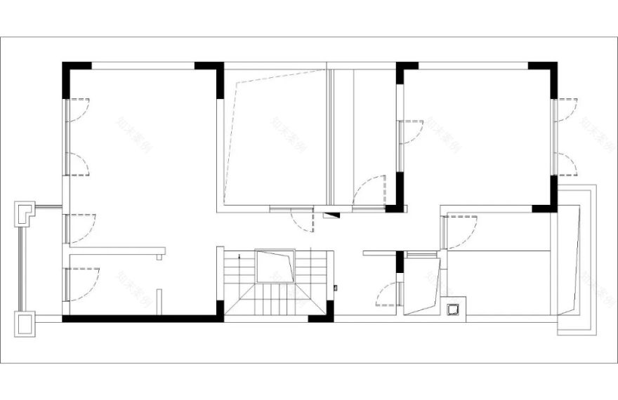
原始结构 Primitive structure
一楼原始结构图
二
楼原始结构图
三楼原始结构图
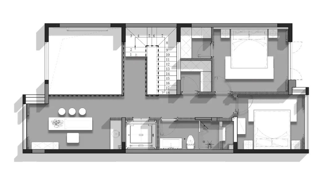
平面方案
Plan drawing
一楼平面家具布置图
二楼平面家具布置图
三楼平面家具布置图
设计解析 Design Analysis
一尘不染、素净澄明
用平静的心灵看世界
利用淡淡的家具布局
把原有的空间净化
把气质和品位含蓄地表现出来
01.会客厅 01.Reception room
在这个空间中,以新中式风格为主,继承了中国传统家具理念的精华,采用石材饰面装饰,给人一种宁静致远的感觉。
02.餐厅
02.Restaurant
解构银川黄河水东流的东方意境
置换于当下语境,在现代主义的理性框架之下
切入诗意的观游
以山水解构丰富空间的信息
构筑趣致诗意的空间形制。
03.厨房
03.Kitchen
三餐四季,窗外风景相伴。在建筑的限定内,打破空间的限定,为生活增添了更多浪漫主义色彩。
04.二楼多功能室
04.Multi function room
端坐疏香之侧
碧色引客而来
05.二楼小孩房
05.Children’s room
小孩房没有使用鲜艳的色彩,而是营造温馨舒适的视觉及居住感。舍弃浮华,调造型简单,张弛有度巧妙的家具搭配,带来返璞归真的体验。
06.二楼卫生间
06.Toilet
进入主卫,通长处理的台面及镜子以“大体量”设计尤显利落,设有玻璃屏风,飘洒几片落英,淡然轻眺,目寄心期。
07.三楼小孩房
07.Children’s room
小孩房也不似刻板印象中的模样,摒弃鲜艳的色彩,用奶灰色的床搭配整体硬装的基调,简洁而不失童趣的王冠造型,可以伴随孩子的成长,清新的天绿色注入自然生动的气息,让空间温柔而灵动。
08. 三楼主卧
07. Master bedroom
主卧空间延续典雅浅淡的基调,摒弃了繁冗复杂的装饰,删繁去简,引自然之气入室。
09.三楼主卫
07.Chief Guard
主卫以高级灰为主,挂式台盆便于简洁、轻盈、时尚,彰显大气品质。无边框灰玻使淋浴空间尽收眼底。
END |感谢阅读 欢迎分享
逸境精造提供室内设计系统解决方案:
- 住宅空间室内设计
- 商业空间室内设计
- 家居软装陈设、布艺
- 智能家居
- 工程效果图、施工图 表现
项目咨询 / 邀稿请联系
客服
消息
收藏
下载
最近























