查看完整案例

收藏

下载
广聚创
客是一家高品质社群团购及创客平台
依托强大的供应链
为千万家庭提供高性价比的产品
同时带领一批宝妈、白领、自由职业者等
通过短视频平台、社交媒体、社群等卖货
让他们拥有一份自己的事业
实
现时间和财务的自由
Fun life together
Fun Tuan Tuan is a high-quality social group buying
platform owned by Guangju Maker
Mainly provide cost-effective products for tens
of millions of families
At the same time lead a group of mothers
, white-collar workers, free entrepreneurs, etc.
设计理念:方圆交错 木白有序
“柔,木曲直也。”凡木曲者可直,直者可曲曰柔。
本案以“柔”为主轴贯穿整屋,
柔美的弧形与干净的线条切割,
沉静的白色与优雅的木色,方圆交错,木白有序。
This case runs through the whole house
with "softness" as the main axis,
with soft arcs and clean lines cutting
,
The calm white and elegant wood color
are intertwined with each other,
and the
wood white is orderly.
INFO
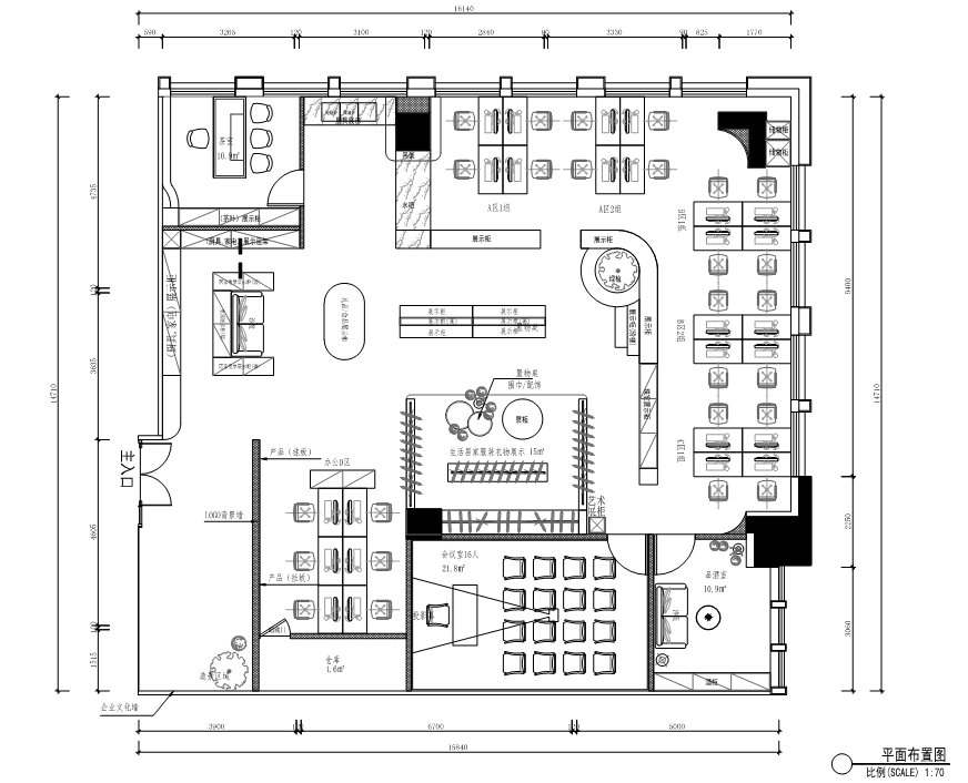
項目名稱:广聚创客办公室设计
項目地址:厦门湖里中众合大厦901
項目面積:238㎡
项目指导:谢作满
主案設計:韩伟艳 李捷
效果图绘制:罗长蓉
施工图绘制:薛玥晨
客服
消息
收藏
下载
最近

















