查看完整案例

收藏

下载
悦己’ INEFFABLE 心有所期,忙而不茫。项目地址/南京·万科九都荟。项目面积/120㎡。设计机构/熹维设计。摄影/INGALLERY。本案是一个精装房的改造,特殊点在于,这套精装房完全是拆成毛坯后重装,业主对空间以及风格要求很高,在沟通过程中,设计师提出的很多想法都与之一拍即合,成就了这套复古味浓郁且设计感十足的作品。弧形波浪吊顶是整个空间的亮点,独特的造型感瞬间提升空间气质,营造出非凡的质感氛围。除此之外,我们大量运用玻璃元素,塑造业主追求的通透感,定制的长虹玻璃双开拱门,亦是复古格调的体现,彰显了精致生活的仪式感。复古气质之余,本案所呈现的随意慵懒感也是一大亮点,餐厅卡座以及客厅的随性布局,处处体现着咖啡馆的精致惬意感,居家生活自在疗愈,沉浸式放松与享受。原始户型图
120 平的三室户型,优点是空间利用率较高,户型方正且布局较为合理,整体来说平淡却实用。屋主对于空间的需求不止于此,希望追求通透感以及一些丰富有趣的造型呈现在家中。
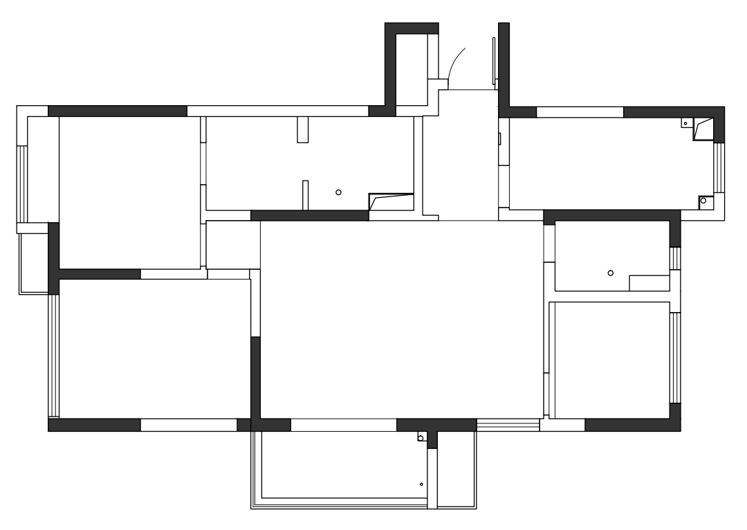
平面布局图
入户区借用主卫部分区域,打造一个步入式储藏间,一站解决鞋物收纳,为日常生活提供便捷;三室改两室,打通与主卧相连的次卧,形成一个宽敞舒适的套房空间,含衣帽间、书房、卫生间一体化的酒店式套房,让屋主的二人居无比自在享受;客餐一体,布局随性,摆脱了刻板式常规操作,空间氛围惬意无比。
复古贝壳花砖拉开玄关序幕,为全屋调性打下基础,进门右边以鞋柜形式作为储藏间入口,百叶元素的鞋柜柜门形态,让整个空间拥有独特的奇妙效果,灵动有趣。
Chapter 2
Chapter 2
餐厨 KITCHEN/DININGROOM
厨房位于入户区旁边,为营造通透的空间环境,隔断部分采用黑框玻璃,弧面设计带来更多采光,封闭狭窄的厨房瞬间呈现时尚且复古的调性,甚至为整个空间加分不少。
玻璃隔断部分以吧台填充,既延伸了厨房台面,还能让视觉感更加优雅美观。玻璃窗下一角,成为家庭版咖啡厅,赋予空间丰富的场景体验。
人间烟火气,最抚凡人心。透过玻璃窗能看到家人的身影,何尝不是一种被治愈的幸福。
业主追求复古与独特的空间造型,弧形波浪吊顶就是最好的表达,一拍即合实现了这个想法。瞬间提升空间气质与格调,造型美感以及视觉冲突不言而喻,仿佛置身梦幻奇特的法式庄园。
作为进门第一视角,餐厅的存在充满了治愈与休闲,像可爱的甜品店,又仿佛是惬意安静的咖啡厅,整个空间充满想象,可多场景切换,享受丰富多姿的居家生活。
卡座区域紧挨窗户顺势而下,木板包裹出靠背区域,与空间材质形成呼应。原木质感温馨和谐,搭配柔和的阳光,餐区被镀上惬意的氛围。不仅是日常就餐,快乐的下午茶或是轻松办公,让空间拥有多功能属性。
餐桌椅质感淳朴,原木搭配藤编,清新自然。圆桌小巧精致,营造出惬意满满的咖啡厅氛围。
次卧入口打造成隐形门,保持墙面整齐统一。踢脚线的统一处理,让隐形门效果更加完整。餐厅区域宽敞惬意,具有如沐春风的视觉享受。
▲从客厅看餐厅
弧形波浪吊顶具有视觉上的延伸效果,让客餐一体更加宽敞,吸引视线上移拉长层高,优越的采光以及空间感,带来极致享受的居家体验,亦是为平淡生活增添一抹独特色彩。
Chapter 3 客厅 LIVINGROOM
▲从餐厅看客厅。卡座区域以弧形延伸至阳台,包裹垭口消弭突兀感,加强客餐厅的关联感,空间融洽且舒适。
沙发摆放不靠墙不平行,而是具有一定的倾斜角。去茶几去电视,一改往常刻板的客厅印象,凸显随性自在的家居氛围。
复古青草绿绒布沙发,融合经典的意式拉扣设计,搭配同色系装饰画以及绿植,软装呈现精致的法式氛围,却显得毫不费力。举重若轻的松弛感是极致的高级。
圆形地毯铺置沙发一角,慵懒惬意,趣味造型感边几搭配优雅花朵状台灯,客厅一角被格调与浪漫填满。主卧入口以一扇定制复古双开门隔断,黑色边框搭配长虹玻璃,为空间气质书写了浓重的一笔。
地板通铺进入主卧,空间连贯大气,双开门的开合之间满是优雅,生活仪式感被彰显无遗,每一缕气息都被生活情调萦绕。
Chapter 4
Chapter 4
卧室 BEDROOM
黑金搭配复古加倍,双开拱门造型大气简洁,过渡区域连接处不设任何门槛石,保证空间的通透一体感。
卧室色调浓郁且复古,完美契合整个基调。床头背景墙以墨绿色墙漆填满,搭配橘黄色床品,整体洋溢着热情与优雅。
窗帘辅以同色系墨绿色,使黄与绿的搭配更加协调统一,迸发出浓郁的复古韵味。床头靠背以藤编材质呼应餐厅区域,不锈钢材质吊灯利落精致,整体明媚且典雅。
主卧融合一间次卧打造成便捷的套房空间,一面复古的红墙承担起收纳重任,红色衣柜点亮空间气质与格调,拥有眼前一亮的惊喜感,大胆却不浮夸。
衣柜对面打造悬浮桌面,办公或是梳妆均可。原木材质温馨惬意,吊柜搭配长虹玻璃,通透美观。角落里的包裹充满安全感,生活的每一面都自在舒适。
次卧目前是闲置状态,靠窗放置一张书桌,临时发挥书房的功效,墙面打造圆形开放格,造型别致装饰墙面,且能满足简单的收纳需求。次卧布置灵活简洁,应对日后的其他变动,具有较高的调整性。
Chapter 5
Chapter 5
卫生间 WASHROOM
主卧卫生间的门与卧室门同种款式,黑红搭配的极致复古感,让整个卧室都散发迷人气息。惊鸿一瞥,卫生间内部同样延续了复古韵味。干湿分离以及双台盆设立,颜值与功能性兼备。
墨绿小砖搭配水磨石,层次丰富质感高级,台上盆与入墙水龙头,混搭上藤编浴室柜,洗漱台区域各种材质融合。不规则浴室镜与面盆形状相得益彰,整体和谐高级。
▼Contact us
Web: www.shinevdesign.com
Add: 南京市秦淮区悦动新门西 15 栋南侧(瑞幸咖啡隔壁)
Tel&微信:18651909851 17705179826
▼咨询请加微信往期精彩
《木槿》现代杂糅侘寂,油画里走下来的家,优雅复古韵味一眼万年
《曼绰》爆改精装房,“借”出开放式书房,微水泥木饰面实现简约质感家
《初晓》沉沦于复古文艺气息之中,128㎡的五口之家,将空间利用到极致。
《啡夏》精彩绝伦的半拱门,120㎡轻复古,一眼万年的法式优雅之家
《逾白》,115㎡纯白空间,通透会呼吸。平移客厅,打造“C 位”餐厨。
《馥雅》
解放空间,看常规户型如何演绎轻复古的优雅浪漫
《倚江而居》
居江水之畔,看江水流转,享受令人向往的诗意生活。
《若有光》完善空间布局,让阳光的温度围绕整个家。
《田橙》
心之所往的家,就是贴合心理上的一切向往。
《未央》
160㎡复式格局未变,老房依然优雅蜕变
《舒颜》
ZERO 客厅,我用 4 米长中央岛台,定义自己的生活
《南风》99 平米文艺范儿,为了追光,我们将客厅卧室乾坤大挪移。
《不繁》爆改精装房,从猪肝红到未来极简风。
《织巢》两个人和五只猫的侘寂生活
《象
限》在局限中捕捉到功能无限
《霁月》重构边界,随光与空气舒展空间
客服
消息
收藏
下载
最近













































