查看完整案例

收藏

下载
啡夏
coffee in summer
享受一杯拿铁的闲暇时光。
项目地址/南京·大名城紫金九号。
项目面积/120㎡
设计+施工机构/熹维设计
摄影/INGALLERY
说在前面
本案屋主是位审美高度在线的小姐姐,最初的沟通时给了我们几个类似“轻复古、轻法式、优雅、温柔、慵懒”等关键词,这其实给了设计师很大的发挥空间。于是在屋主的高度配合下,本案最终的落地效果十分惊艳,铸就了这个精彩绝伦的居家空间。
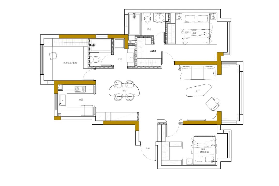
原始平面图原本是两房的格局,但主卧空间较大,屋主要求保留两卧室+一书房的格局,于是我们从主卧上入手,分隔成两个独立的区域。
平面布局图
整体的户型改造,主要体现在如下几点:
1、主卧空间重新规划布局,打造带衣帽间和主卫的套房空间,提升屋主居住体验。
2、独立书房空间宽敞,采光明亮,不仅可以办公学习,还承担部分收纳重任,功能性十足。
3、客卫做了三分离,干区台盆也可以用于餐前洗手,更贴合生活动线。
Chapter 1
Chapter 1
客厅
LIVINGROOM
初见客厅空间,奶油色系艺术漆满涂整墙,人字拼木地板通铺全屋,散发着浓浓的轻复古气息。客厅采用无主灯设计,结合了局部吊顶,简洁风符合整体调性。墙面没做多余的软装布置,适度的留白更能突出空间要表达的重点。
沙发背景墙后连接主卧空间,空间重新规划后,主卧的门与沙发背景墙融为一体。于是设计师脑洞大开,让主卧门不仅是一扇门,更是整个客厅空间出彩的点。(关于此门,下文中继续重点介绍)
吊顶处做了石膏线点缀,客厅选用简约的现代风家具,让复古与现代融合,打造时尚耐看的轻复古调调。
靠近阳台的角落,随意摆放奶油白懒人沙发,伴随着落地窗与白纱帘的迷人光影,居家氛围感与舒适度都到位了。无论什么时间,靠在这里享受自己的静谧时光想必都是极为愉悦的。
从餐厅看客厅,一派温馨柔美的色调,整屋被笼上一层幸福的光晕。家就是让我们放松与充电的地方。
整个客厅的温馨氛围由很多小细节构成,必须提到的是软装搭配时设计师选择的这盏草裙灯。关灯时,它还是绝美的装饰品。暖黄灯光洒在墙上,艺术漆的质感被再次升华,呈现出高级又浪漫复古韵味。
不论是一个造型独特的茶几还是线条感丰富的地毯,都是氛围感加分项,设计师与屋主之间的审美高度契合,也成就了这样优雅的落地效果。
简洁无多余的墙面设计,主要是来衬托出这两扇半弧形拱门,使之成为空间焦点,串联起客餐区域,以浪漫的手法完成了空间上的呼应。
这个家无疑是有气质的,淡雅却高级,高冷又温馨,拱门的开合之间全是优雅。
Chapter
2 Chapter
2餐厨
KITCHEN/DININGROOM
餐厅是客厅复古氛围的延续,法式气息在空间弥漫。 通过这扇法式双开移门即可进入厨房,胡桃木搭配独特的双拱形设计,再加上最具复古质感的黄铜把手。 墙边打造纯白橱柜,中西分厨又能充当餐边柜,餐厨区域有颜有实力,功能性与便捷度全部实现。
从玄关看餐厅,就连穿衣镜都和这个优雅的家完美适配,不规则的椭圆呼应餐桌形状,没有直来直去的线条,柔美的曲线彰显家的温柔。
白色岩板餐桌搭配藤编餐椅,藤编元素的加入给了屋主最初期望的法式复古风的慵懒感;小巧经典的款式提升了整体精致感。客厅的氛围灯则是来源于这个圆饼状吊灯,与客厅的草裙灯呼应,均是迷人的暖黄灯光,给人无比舒适的家居体验,让家里洋溢着浪漫的味道。
两扇半拱门之间的装饰画也是点睛之笔的存在,恰到好处的点缀,色彩恬静质感高级,不仅装扮了用餐环境,更是全屋的灵魂一笔。
厨房空间虽然不大,但功能齐全,使用感极佳。U 型台面考虑到使用感做了高低设计,白色地柜搭配深色吊柜,连厨房都散发一丝丝精致感。
Chapter
3
卧室
BEDROOM
介绍卧室之前,先来看看本案的高光之一:复古半拱门。与另一边的开放式半拱对立而生,独特的造型成为家居视觉中心。
屋主想要的复古风可以没有壁炉以及墙面繁杂的线条,但高踢脚线是不可或缺的,与双拱门相伴,将法式风刻进 DNA 里。
当初设计这扇门的初衷是为了让其融入沙发背景墙,使空间整体性更强,但是当时次卧做了隐形门,主卧不想再做一个。最后我们就采用了这样的弧形设计,既美观又不影响整体性。
推开卧室门,抬高的地台伴随着灯带映入眼帘,本就温馨的奶咖色卧室,舒适感更上一层楼。地台上的床榻,像是被捧在手心的宝贝,比榻榻米更具风情。
卧室吊顶与客厅一致,一盏精致吊灯点亮温馨氛围。床头小巧壁灯充当氛围灯,伴随入眠。床尾空间也相当充足,摆放梳妆台绰绰有余,便捷舒适。
屋主想要的优雅而慵懒感在卧室也体现得淋漓尽致。奶咖色床头背景墙搭配奶白色棉麻材质窗帘,高级的轻复古感在这个家中从未缺席,这大概就是梦中情卧了吧。
入门另一侧则是步入式衣帽间与主卫区域。顶天立地式纯白衣柜,搭配黄铜金属把手,以及柜门的线条感,法式风情处处都在。伴随着柔美的射灯光源,每一个夜晚都无比温馨。
为了不破坏电视背景墙的整体性,次卧选择了隐形门设计。一门到顶的样式,别致的造型与流畅简约的设计更增添了些许艺术感。
为了实现极简无踢脚线的效果,以银色不锈钢包裹一圈,再以与墙面一致的艺术漆满涂,隐形门配隐形踢脚线,铸就了高级的艺术感。
次卧空间简洁而舒适,边几代替床头柜,不锈钢加玻璃材质配以一盏小巧而精致的台灯,小小空间瞬间镀上高级气质。
Chapter 4
Chapter 4
卫生间 WASHROOM
主卫洗漱台是十分精简的款式,不锈钢线条搭配奶白大理石,个性十足。浴室镜尽显优雅复古风,一旁的壁龛承担起主要收纳重任,上方搭配藤编柜门,质感丰富又具有透气功效,实力与颜值双存。
透过开放式半拱门进入客卫空间,干湿分离的干区洗漱台以及嵌入式洗烘设备完美隐藏于此。解放了传统做法中兼顾晾晒功能的阳台,提升了空间利用率,更符合屋主的日常生活习惯。
家之于屋主不仅是单一的空间,更多承载着情感层面的需求。对于风格的追求不必用太多元素展示,以做减法的原则、留白的设计手法以及克制地用造型点亮空间,提升空间的包容性。
唯美的居家空间给予外人的体验更多是视觉感受。然而,真正生活在这个家的屋主才能深刻感受到好的设计带给自己的绝佳居住体验。
C o n t a c t u s
W e b:www.shinevdesign.com
A d d:南京市秦淮区悦动新门西 15 栋南侧(瑞幸咖啡隔壁)
T e l & 微 信:1865190985117705179826
咨 询 请 加 微 信
往 期 精 彩
《菲霖》置换空间打造横厅布局,极简主义定格幸福关键帧
《馥雅》解放空间,看常规户型如何演绎轻复古的优雅浪漫
《倚江而居》
居江水之畔,
看江水流转,
享受令人向往的诗意生活
《若有光》
完善空间布局,
让阳光的温度围绕整个家
《田橙》之心之所往的家,就是贴合心理上的一切向往。
《无垠》黑白极简空间中找寻那一隅宁静致远
《韶光》
向往的生活是:一屋两人,三餐四季。
《
未
央
》
160㎡
复
式
格
局
未
变,
老
房
依
然
优
雅
蜕
变
《舒颜》ZERO 客厅,我用 4 米长中央岛台,定义自己的生活
《南风》
99 平米文艺范儿,为了追光,我们将客厅卧室乾坤大挪移。
《不繁》爆改精装房,从猪肝红到未来极简风。
《织巢》
两个人和五只猫的侘寂生活
《象限》在局限中捕捉到功能无限
《霁月》重构边界,随光与空气舒展空间
客服
消息
收藏
下载
最近













































