查看完整案例

收藏

下载
SHINEVDESIGN
专业定制设计 + 精细化施工管理 + 高品质家装服务
寻找心中的家
穹顶之下
UNDER THE DOME
项目地址/南京·紫金未来城
项目面积/140㎡
设计+施工机构/熹维设计
摄影 /INGALLERY
这是一个三口之家的新居,女主人是一位对艺术氛围感要求高的音乐老师,前期沟通中了解到她对于生活品质要求比较高,希望把新家设计成一个多元化的自由开放的空间,可以是孩子自由玩耍的空间,也可以是她在家办公的工作室,更是一家人宅家互动的空间。全屋希望继续延续黑白灰永恒的配色搭配,作为居住空间而言不想过时也是最佳的搭配方式。
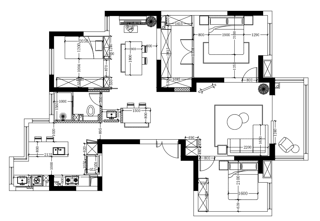
#原始户型图
中规中矩的四房两卫的格局对于日常三口之家来说空间相对宽裕。考虑到业主的在家办公的需求,计划舍弃一间卧室成为专门的工作间。女业主希望拥有一个步入式衣帽间,给予女儿一个兼备学习和休息的套间。餐厅位于入门处,空间有限,无法满足业主对西厨岛台的需求。朝南阳台希望并入客厅空间成为休闲阳台,无法满足日常晾晒功能。
# 改造后户型图
将北侧两个卧室组成一个套间,既是孩子的学习练琴区域也是卧室;以玻璃门分隔,可静可动,同时改变了房门位置也规避了卫生间干区正对卧室门的问题。
舍弃主卧卫生间,改变主卧房门位置,既把卧室空间得以充分利用使之成为步入式衣帽间,又用隐形门让整个电视背景墙部分更具整体性。
把朝北阳台扩入厨房空间,岛台也可以日常用餐区域,原餐厅位置也放置了四人位的餐桌。
客厅与阳台连通为整体,打造休闲阳台,引入更多自然光线;将朝北阳台的拐角作为生活阳台,用洗衣机烘干机的组合取代传统晾晒区。
#01
客厅
livingroom
从入户门进入,黑白灰的极简风格营造了干净纯粹的氛围感。从点线面的形式设计到调性、功能的配色考虑,材质和颜色的比例拿捏得奇妙而精准,空间通透轻盈,绵延出自然舒适的气氛。
打通阳台,用弧形吊顶来点亮空间的设计感,以浅灰色微水泥满涂看起来柔和有质感。弧形往往能够带来一种独特的、百看不腻的美感,应用在公共空间的设计中营造出丰富艺术感,内嵌式灯带增加了氛围感。
舍弃了传统的电视背景墙,用可移动的画镜电视来实现日常观影功能,主卧隐形门使得整个墙面更具整体性。
柔软的 muuto 模块沙发无论是色彩还是材质都恰到好处的融入其中,united strangers 圆几与 verdon 单人藤编沙发都是以木色为主,带给全屋多一份温暖与厚实。
弧形设计更具延伸感,从视觉上让层高更高,同时在有突兀的横梁和承重墙时弱化存在感。无主灯设计不仅仅是迎合整体风格,更重要的是营造光线的层次感,让屋主在不同时段可选择想要的光线强度。
在夜幕降临之时打开沙发旁的装饰吊灯,柔和的光线洒落在沙发上,给冷色系的家带来温暖。
抬高阳台暗藏灯带,悬浮地台设计让阳台成为休闲区,可以喝茶、瑜伽,随心所欲切换生活模式。网红梦幻帘给室内引入柔和的光线,也更好的保护业主的隐私。
united strangers 的布艺单人沙发椅与绿色植物的组合更好说明了休闲区属性。
沙发背景墙后是女业主的在家办公区域。白色定义全屋的清爽通透的主基调,透亮的玻璃砖与之相呼应,让整屋更为通透敞亮。玻璃砖墙是沙发背景墙的补充,也是作为艺术隔断的存在。
墙体结合柜体做了收纳,严丝合缝不仔细看以为只是一堵墙而已。黑色的无火雾化壁炉让白色墙壁不再单调,大面积留白通过局部块面以黑色无火雾化壁炉分割处理,使这个入户空间更加精致且富有细节感。
#02 厨房&餐厅
k i t c h e n & d i n i n g r o o m
从推拉门进入厨房空间,将原本朝北的阳台拓进来,给予足够空间综合了中西厨以及家政间的功能。不仅使得采光很好,也更容易通风散味。整个空间延续黑白配色,既实现了开放式厨房的想法,又有推拉门将油烟阻隔在厨房空间之外。
厨房体现一个家的女主人的品味,彰显对生活品质的追求。精致的极简白的橱柜让所有必备厨房电器都严丝合缝的嵌入柜体,没有一丝的浪费,符合动线设计。岛台除了是日常操作台面,也是一家三口就餐的区域,不需要移步厨房外的餐桌。
厨房外的公共区域也放置了 HAY 的餐桌椅,偶尔家人来访也可以有围坐在一起就餐。
#03
主卧 masterbed room
主卧延续了公共区域的白加浅灰的配色,墙角使用了弧形转角内嵌灯带,弱化了空间棱角的尖锐感。软装方面选择了极简布艺床,简约的块状设计,去繁存简,符合整屋调性。
从主卧衣帽间看向卧室,整个主卧色调偏浅,摒弃多余的装饰,回归最质朴最本真的需求,静谧舒适就是卧室该有的氛围。
主卧一角。
#04
儿童房
kid‘s room
儿童房用玻璃门作为隔断,将原本的两个房间做成一个专属于孩子的套房,兼顾日常学习和休息的功能,是妈妈精心为家中小可爱打造的小天地。
玻璃门日常可以拉开作为开放式空间,必要的时候拉起不受外面的干扰。
充分利用了墙面,做了一侧乐高墙,一侧则是开放式书架,既装饰了墙面又满足了实用需求,让孩子学习娱乐两不误。
近距离看看开放式书架,卧室门洞则是做了半拱形设计,让光线引入外面的空间,以弥补外部空间仅有一扇小窗户而导致的采光不足的问题。同时兼顾了童趣的儿童房设计,让一切都变得生动可爱起来。
小朋友最喜欢的纯实木冰棍床搭配了妈妈用心挑选的童心满满的床单和床围,床上的玩偶在安静陪伴着小主人的成长。
#0
5
工作间
studio
从客厅通过这个用玻璃砖墙砌起来的门洞进入,便是一个专属于身为音乐老师的女主人的空间。
通过门洞可以看见日常练琴教学的区域,因为是透明的玻璃砖让室内外的光线流动,使得整个空间更为通透敞亮。
不锈钢门隐藏在墙后,上课练琴时可以拉上门以确保互不干扰,换一个角度感受玻璃砖墙的美感。
不锈钢门的动态展示
复古造型的机器人收纳柜和可爱的小主人
#0
6
卫生间
washroom
干湿区分离的卫生间从实用主义出发,无论是一体台盆还是壁挂马桶都把方便清洁放在首位,兼顾了美观与实用。高品质的生活从细节出发,更舒适更好打理。
这是一个自由开放的家,每一个空间都连通流动;这也是一个属于孩子的家,给予孩子最大的活动空间;这更是一个混合式起居的家,客厅、书房、工作室、书房共存,一家三口的彼此共享与陪伴是这个家最珍贵的。空间的功能性设计为生活而来,在设计上凸显社交空间的理念,打破空间之间的阻隔,每个区域之间彼此融合,让空间更开阔,让心更贴近。
Add:南京市秦淮区悦动新门西 15 栋南侧(瑞幸咖啡隔壁)17705179826
往期精彩
《菲霖》置换空间打造横厅布局,极简主义定格幸福关键帧
《兰芷》从布局上打开空间,让 123㎡拥有大平层的即视感
《倚江而居》
居江水之畔,看江水流转,享受令人向往的诗意生活
《若有光》完善空间布局,让阳光的温度围绕整个家
《田橙》心之所往的家就是贴合心理上的一切向往
《无垠》黑白极简空间中找寻那一隅宁静致远
《韶光》向往的生活是一屋两人三餐四季
《未央》160㎡复式格局未变,老房依然优雅蜕变
《舒颜》ZERO 客厅,我用 4 米长中央岛台,定义自己的生活
《南风》99 平米文艺范儿,为了追光,我们将客厅卧室乾坤大挪移~
《不繁》爆改精装房,从猪肝红到未来极简风
《织巢》两个人和五只猫的侘寂生活
《象限》在局限中捕捉到功能无限
《
霁月》
重构边界,随光与空气舒展空间
《
空格》从单调到纯粹的迁跃,仿若月色来
喜欢这个家,不妨点个再看哦↓
客服
消息
收藏
下载
最近













































