查看完整案例

收藏

下载
SHINEVDESIGN
专业定制设计 + 精细化施工管理 + 高品质家装服务
寻找心中的家
开合之间
Adjustable
项目地址/南京·中交锦致
项目面积/110㎡
设计+施工机构/熹维设计
摄影 /INGALLERY
这是一个三口之家的幸福小屋,业主对于原本的三个房间有自己的想法,因为常住只有夫妇俩和小朋友。设计师采用了升级版的 LDK(即厨房+餐厅+客厅+多功能区),在确保主卧和儿童房以外,将面向阳台的一个卧室改造成多功能厅,拉上玻璃门是独立空间,即作为书房或是客房使用;打开玻璃门便打破空间壁垒,创造出更为开放明亮的功能空间,模糊了内外界限,保证功能性同时保证了生活动线的流畅性,动静皆宜。客厅与多功能房一体化串联双阳台,空间得以最大化利用同时自然采光也得到了充分释放。
让我们一起看看吧!
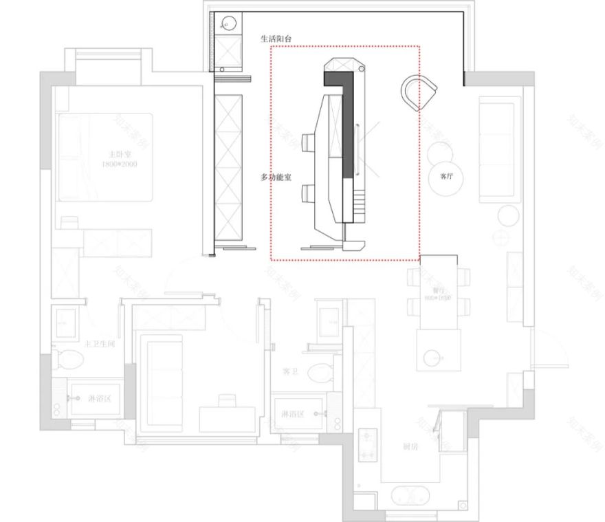
#户型图#
#改造前#
#改造后#
#空间呈现
#
01客厅/Livingroom
黑白灰主色调简洁大方,LDK 一体设计通透又敞亮
入户角度看客厅。整体以黑白灰为主色调,以整面收纳柜作为电视背景墙,既能把电视机嵌入其中又能增加储物空间。灰色石材结合格栅造型做成隔断,与白色烤漆板完美结合,又与地面的哑光灰色地砖相呼应,整体色调一致,低调奢华。
沙发背景墙整面运用浅色木饰面营造温润感,体现了空间层次感。客餐厅连通一体,真皮沙发与餐桌椅材质颜色一致,让客餐厅在一个空间内和谐统一。
简约的石膏板吊顶结合无主灯设计看似平平无奇却是提升颜值的小细节,简洁的内嵌式磁吸灯在保证室内光线的同时,提升了整个空间的氛围感与设计感。
浅木色与深棕色的色彩搭配,木质与真皮的质感碰撞,木饰面与沙发的搭配无论从色彩还是质感既有呼应又有对比。墙面上的黑色灯带是氛围组担当之一,在木饰面上打出暖暖的光线,提升氛围感。
入户玄关处做了柜体保证衣服鞋帽的收纳空间,一侧整体柜作为入户收纳空间,另一侧矮柜作为换鞋凳以及鞋柜补充,充分增加储物空间。
02 阳台/Balcony
阳台与客厅连通使得整屋豁然开朗,光线无障碍进入
从餐厅视角看过去,将客厅和休闲阳台打通,营造更为通透的空间感,将地砖通铺形成一个整体,视觉上显得客厅更宽阔敞亮,也更利于清洁,卫生无死角。
入户门视角看向阳台,垂直百叶窗让户外的光线更为柔和进入到屋内,呈现出一种岁月静好的静谧感。
结合业主的生活习惯采用了洗衣机烘干机叠放,配以一组生活用品收纳柜与台盆,节省了阳台的晾晒空间,让阳台完全成为了另一个休闲空间。
入户门方向望向阳台,阳台的光线柔和的照进客厅,绿植点缀了纯净的阳台空间。
03 厨餐厅&Dining room&Kitchen
中厨解决油烟问题,西厨满足社交和烹饪需求。
餐厅采用了岛台和餐桌一体的设计,打破了传统餐桌的形式,爵士白岩板与温润的木材,不同材质之间的碰撞让整体和谐又高级。岛台配以水池与收纳,与整排高柜形成一个完整的西厨区域。将烤箱与各种小家电安置在这里,补充了无油烟的操作功能,让整个厨房在视觉上更有层次感,避免沉闷。白色岩板的纹路质感搭配黑色水槽的岛台设计提升生活品质的同时也提高了烹饪效率。
厨房选用了窄边框玻璃门来阻隔中厨的油烟,同时又不影响客餐厅的采光,让这个南北通透的户型采光发挥到极致。
基于厨房的最佳动线的考虑,厨房采用了 u 型设计。在确保了整体操作空间的前提下,在有限空间中嵌入了双开门冰箱,完美利用了每一块空间,丝毫不浪费。
餐厅一角
0
4
卧室/Bedroom
舒适沉稳的主卧与生动有趣的儿童房,是家最纯真的样子
主卧以灰绿色乳胶漆作为墙面色彩,看似简洁的卧室设计其实蕴含了很多小心思。衣柜的木饰面腰线连接了女主人想要的小梳妆台乃至整个床铺靠背,处处有呼应。梳妆台上方做了置物架可以摆放喜欢的物件,增加生活小情调。
主卧的小心思还在于灯光的设计,顶面无主灯设计既有保证亮度的条形射灯,木饰面靠背又有充满氛围感的灯带设计,配以不对称的床头灯,简单却美好。
浅灰色窗帘与床品色调一致,让人安心又沉静,给足了想要的安全感。
目前小朋友还没在与父母共用一个房间,儿童房则打造成一个充满童趣活动空间,墨绿色的衣柜与敞开式收纳柜整体定制,分别放置衣物、书籍和玩具。待日后小朋友独立使用卧室,增加合适的床即可,满足了现在以及未来的需求。
05 多功能厅/Multi-functionalRoom
多功能厅集合书房、客房、收纳多重功能。
多功能室运用双侧玻璃门与客厅阳台形成完整回形动线,拉上门便是独立空间。异形桌面与柜体置物架的设计让简洁的空间生动了许多,作为书房使用。墙另一侧的通顶柜体,采用哑光烤漆板与墙面看似一个整体,隐藏收纳空间,增加家庭储物空间,必要时也可以拉下墨菲床作为客房使用,可以说集合了多种功能又充分利用了每一寸空间,却没有一丝局促感。
06卫生间/
Bathroom
干湿分离提升空间使用率,功能齐全满足生活需求。
干湿分离的客用卫生间提高了空间使用率,因为在多功能厅对面,这里运用了长虹玻璃隔断做了视觉上的遮挡,却保证了空间的通透度。
主卧卫生间摒弃了传统的独立淋浴房,而是选用玻璃做半开放式的隔断,墙面做了壁龛作为常用洗漱用品的收纳,实用美观,不担心潮湿生锈。小空间完美分配,功能齐全又美观。
家是一家人共同生活和成长的地方,所以我们希望这个家也能够以“动态”的形式陪伴着家人一起见证每一次生活的际遇与经历。设计的价值就在于功能与美观的平衡,带领业主找寻内心深处最渴望的生活方式。家的品味,不在于纷繁复杂的造型,不在于昂贵的材料堆砌,每一点一滴的用心设计让家与家人一同前行,不跟随流行,不局限风格,只围绕生活与成长,找寻安全感和舒适感,一切都是只是需要而已。
家,本就该如此。
▼Add:南京市秦淮区悦动新门西 15 栋南侧(瑞幸咖啡隔壁)17705179826
▼往期精彩
《无垠》黑白极简空间中找寻那一隅宁静致远
《韶光》向往的生活是一屋两人三餐四季
《未央》160㎡复式格局未变,老房依然优雅蜕变
《舒颜》ZERO 客厅,我用 4 米长中央岛台,定义自己的生活
《南风》99 平米文艺范儿,为了追光,我们将客厅卧室乾坤大挪移~
《不繁》爆改精装房,从猪肝红到未来极简风
《织巢》两个人和五只猫的侘寂生活
《象限》在局限中捕捉到功能无限
《
霁月》
重构边界,随光与空气舒展空间
《借风探触》色与质的交织,嵌于空间的可触针脚
《
空格》从单调到纯粹的迁跃,仿若月色来
《慵野》藏在宏观之下的细腻伏笔
客服
消息
收藏
下载
最近








































