查看完整案例

收藏

下载
泓澈 LIMPID 项目地址/南京·星雨华府 项目面积/89㎡ 设计+施工机构/熹维设计 摄影/INGALLERY 时至今日,越来越多的人都更青睐极简风,比起其他花哨混搭的设计,极简风让生活趋于平淡,有着返璞归真的美好。本案业主是一对程序员夫妻,他们理性对待生活,认为大都市的繁扰已经让身心俱疲,希望归家可以放松下来。对于空间设计,业主更青睐简约干练、去除冗杂的设计,让空间归于平静;除此之外,对全屋智能甚是偏爱,能给生活提供极大便利性,这也是业主十分向往的生活。
#原始户型图
整体空间割裂严重,无法打造极简的通透大气的风格。
入户闭塞狭窄,采光不好。
餐厨之间相隔较远,生活动线不完美。
主卧附带的赠送面积不规则。
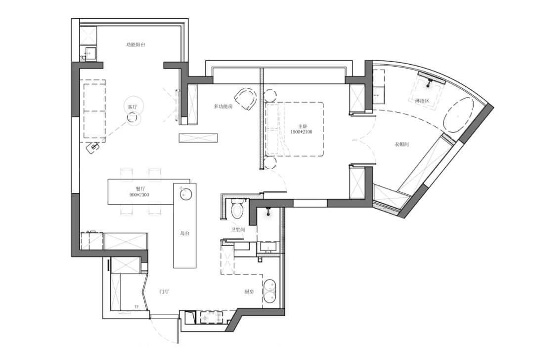
#改造后户型图
空间拆除多余墙体,打造开阔空间,方便业主二人沟通交流。
打开原厨房空间,增设岛台与客厅相联系,动线更流畅。
客卫面积缩小,餐厨区域扩大,增设西厨空间,生活幸福感更强。
不规则空间充分利用弧形定制专属衣帽间+卫生间的组合,空间更特别、更好用。
01客厅
livingroom
入户便被眼前通透、简约的空间所治愈,奶油色的墙面与咖色木地板相互交织,温柔又纯粹。左侧隐藏步入式鞋帽区,将繁尘与纯净空间隔开,空间更显静谧、纯洁意味。
大胆拆除墙体,选用 LDK 一体化设计,让空间更通透自如,小户型彰显出大宅的开阔气质。通铺木地板,墙面选用同色系艺术涂料,空间仿佛披上一层温柔外衣,让人安心。
将客厅阳台连通,将丰富的采光引入室内,客厅更显开阔大气。简约沙发在不同光线呈现不同姿态,一旁的 United strangers 亚克力边几增添空间的透气感,成为室内的特别一角,让进入客厅的第一眼便落入此处。考虑到生活场景的需求,利用阳台下水管道定制洗手池,连洗烘机全部嵌入阳台柜,空间不凌乱,也规避了很多卫生死角。
以留白手法打造电视背景墙,营造极简气质。背后就是多功能室,转角处的特别设计,是猫主子的专属玩乐空间。
猫主子活泼好动,这里特意预留空间满足小宠物随意穿梭的小爱好,左侧则用透明玻璃打造,空间里外都十分通透,有创意还很有趣。
黑白线条的穿插,空间更显纯净高级,嵌入式线形灯,延展空间,增添立体感与灵动意味,同时也是空间科技感的展现。配合男业主自主实现的全屋智能,提升整个空间的科技感与高级感,让极简风格增添了些许炫酷意味。02 餐厅 diningroom
餐厅坐落在入户区,选用岛台和餐桌的设计串联起客餐厅,使得 LDK 模式更显空间的联系感、通透感。
背后设置加高储物柜,纯白色无把手柜门与墙面融为一体,既满足了储物需求,又不会形成视觉负担。将冰箱安置在此处,不论是客厅还是餐厅拿取都十分方便。
超大的中岛岛台与餐桌融为一体,餐厨区与客厅之间形成洄游动线。顶面的 LED 吊灯集创意与实用与一体,三色灯光将局部氛围点亮,享受与爱人的用餐时光。
岛台靠餐桌一侧预留轨道式插座,轻松使用各类小家电,解锁各种生活场景。岛台的设置解放了中厨空间,以便顺理成章的将中厨改造成开放式,延伸了台面。03 kitchen
将厨房与小阳台打通,厨房面积外扩,入户区变得十分宽敞开阔。开放式的设计非常适合两人的居住空间,可以一边烹饪,一边聊天,话语伴随着炒菜声,交织出幸福的旋律。
岛台右侧看似是扎实的墙体,实则暗藏玄机,一张隐形门背后是客卫空间,蓝绿色的墙体标注出空间重心。
岛台除了增加料理区,下面也做了丰富的储物柜,充当橱柜功能,餐厨较重的电器、生活用品,方便拿取,安全也安心。
04卧室
bedroom
穿过走廊到达主卧,延续留白设计,墙面、吊顶处理的干净利落。内嵌灯带增加空间的层次感与灵动意味,让空间不单调。奶黄色的床品既能保持简约干练的空间,同时也不缺失温馨感。
另一件卧室改成多功能室,United strangers 单人沙发安置在角落,让空间归结于宁静,在这里可以看书、可以与猫主子玩耍,是难得的独处休闲空间。考虑到未来家庭成员的增多或是朋友留宿的需求,在柜体内隐藏墨菲床,需要时下拉这里便是睡眠空间,让空间具备多重可能性。05 卫生间 washroom。
通过主卧折叠门进入主卧卫生间,长虹玻璃挡人不挡光,为空间增添仪式感的同时也多了些复古韵味。
巧妙运用弧形不规则附赠面积改造成衣帽间+卫生间,顶地墙三面使用微水泥打造高级大气的主卫空间,奶油色调中带着些许优雅,充分诠释了极简与优雅巧妙结合,不仅解决了空间利用的问题,还满足了女主人的少女心。
极简作为当下年轻人最为追捧的一种设计风格,其实更多的也代表了一种生活态度和状态,把时间和空间留给家人。
然而,极简的设计并不是想象中的简单,要求设计师对空间有着极高的理解能力。配合业主作为技术宅大神的专业技能,DIY 实现全屋智能,打造“智能科技”与“极简原生”相结合的现代空间,一比一实现业主梦想的归家乐园。
C
o
n
t
a
c
t
u
s
W
e
b
:
w
w
w.
s
h
i
n
e
v
d
e
s
i
g
n.
c
o
m
A
d
d
:
南
京
市
秦
淮
区
悦
动
新
门
西
1
5
栋
南
侧
(
瑞
幸
咖
啡
隔
壁
)
T
e
l
&
微
信
:
1
8
6
5
1
9
0
9
8
5
1
1
7
7
0
5
1
7
9
8
2
6
▼咨
询
请
加
微
信
往
期
精
彩
《菲霖》置换空间打造横厅布局,极简主义定格幸福关键帧
《馥雅》
解放空间,看常规户型如何演绎轻复古的优雅浪漫
《 兰 芷 》 从布局上打开空间,让 123㎡拥有大平层的即视感。
《倚江而居》
居江水之畔,看江水流转,享受令人向往的诗意生活。
《若有光》完善空间布局,让阳光的温度围绕整个家
《田橙》心之所往的家就是贴合心理上的一切向往
《无垠》
黑白极简空间中找寻那一隅宁静致远
《韶光》
向往的生活是一屋两人三餐四季。
《
未
央
》
160㎡
复
式
格
局
未
变,
老
房
依
然
优
雅
蜕
变
《舒颜》 ZERO 客厅,我用 4 米长中央岛台,定义自己的生活
《
南
风
》
99 平
米
文
艺
范
儿,
为
了
追
光,
我
们
将
客
厅
卧
室
乾
坤
大
挪
移
《不繁》爆改精装房,从猪肝红到未来极简风
《织巢》
两个人和五只猫的侘寂生活
《象
限》在局限中捕捉到功能无限
《
霁
月
》重构边界,随光与空气舒展空间
《空格》从单调到纯粹的迁跃,仿若月色来。
客服
消息
收藏
下载
最近










































