查看完整案例

收藏

下载
SHINEV DESIGN
专 业 定 制 设 计 + 精 细 化 施 工 管 理 +高 品 质 家 装 服 务
寻 找 心 中 的 家
南风
Souther
项目地址 /南京.锦绣华府
项目面积 / 99㎡
设计施工机构 / 熹维设计
摄影 / INGALLERY
主要材料 / 艺术涂料 地板砖
本案业主是一对年轻夫妇,对居家环境的要求是简单、明亮、自由、要有一些艺术气息。我们除了从结构上对户型进行优化外,也用到了一些比较有“文艺范儿”的装饰材料,去呈现业主想要的家的感觉。
室外有些寒冷,推门进来,一下子就不觉得冷了,是因为家里开了暖气的缘故,也是因为,家是让人心生温暖的地方。这些暖意,还来自于色彩、木头,柜子里摆的是你喜欢的小物件,每只盛饭的碗也是精心挑选的。
守得岁月,守得几人,守得心静。
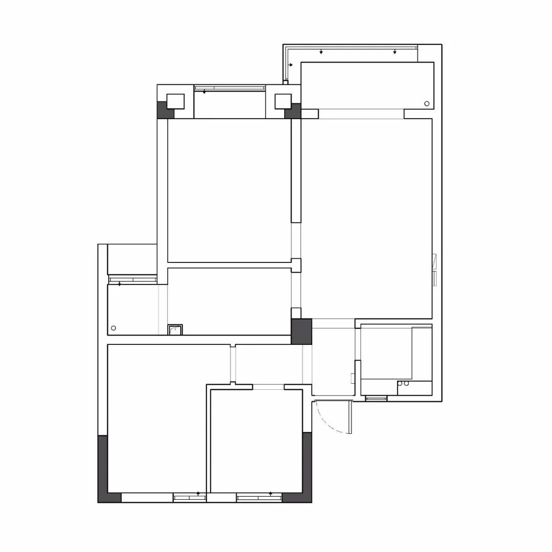
#户型改造#
#改造前#
①
原户型南侧光线较好,北面因为建筑结构没有直接采光,窗外都是连廊,所以整个户型北侧采光都不太理想。
②
厨房略显狭小,三间尺寸紧凑的卧室,客餐厅也比较常规紧凑,入户过道狭窄昏暗。
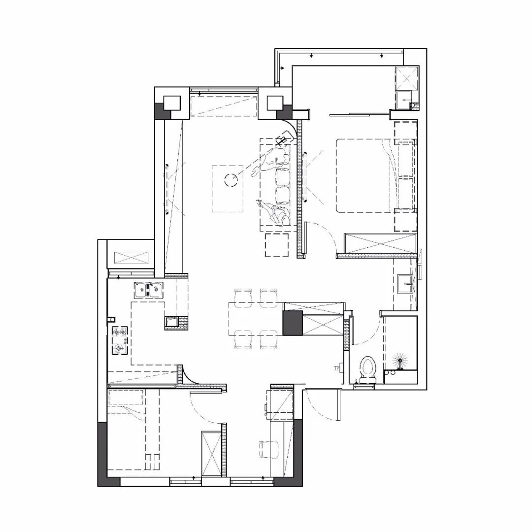
#改造后#
①
将客厅和主卧进行空间置换,拆除掉多余墙体,将南边的阳光最大程度引入北侧,再次梳理空间排布和动线。
②
厨房外拓,借用部分原次卧空间,沿承重柱设置餐厅位置,进门口增加鞋帽柜。
③
厨房尺寸紧凑,为了争取更多的操作台面,我们将冰箱外置,放在旁边的开放式书房一侧,拿取食物也很便利。
④
主卧室空间相对宽裕,划分一部分给到卫生间,规划出了更实用的干湿分离。
#空间呈现
#
01
玄关/Entrance
空间线条化直为曲,让家柔和温暖
原户型入户区域没有足够的空间换鞋收纳,户型改造后,增加了一组到顶的入户鞋帽柜,一个质朴的树桩作为换鞋凳。弧形门洞柔化了空间棱角,让人不由得放松下来,感受家的温暖。
02
客厅/Living room
为了追光,我们将客厅和卧室乾坤大挪移
良好的通风采光是舒适住宅的首要条件,接下来考虑空间动线的合理规划。现在的客厅空间是原来的主卧室,这样做的目的在于让整个空间打开,最大限度的引入南侧光线进入整个室内。
皮质复古的棕黄色沙发,大地色系的艺术涂料,浅木色纹理的地板砖,极具线条感的艺术吊灯,整个空间自然文艺。
客厅背景墙的设计手法非常多样化,这缘于业主的喜好,对外展示需求及卫生整洁考虑,此案的业主有很多喜欢的摆件书籍需要收藏,所以我们做 了一个通长的“大书柜”作为背景墙,电视是其中需要挂放的一件物品。
充足的收纳空间,任意摆放上自己喜欢的书籍或其他,有时间就随手翻翻,打发美好时光。
原来的飘窗我们砸掉之后多了一块内凹空间,为了不影响光线没做抬高处理,沿窗高定制了一个古朴的成品柜,作为客厅的收纳补充,也让整个空间的艺术氛围更加浓郁。
03
餐厅/
Dinning room
大地色艺术涂料+原木家具+弧形曲线,文艺十足
在本案中我们用到了很多圆弧的设计手法,它的穿插是为了隐藏房屋原有的梁柱结构,并在此基础上做空间的线条柔化。
从餐厅望向入户-开放式书房-客卧,书房的窗外即是建筑连廊,光线很弱,这个区域也是急需光线的地方,经过改造,采光有了很大提升。
从餐厅向客厅-主卧一瞥。
黑色原木餐桌,原木藤编休闲椅,陶瓷小白碗,精心挑选的复古小勺,岁月,也要有层次分明的肌理感,才觉得没有亏待。
室内设计中,柜体的设计非常重要,不仅仅要考虑不同空间实际的收纳需求及未来扩展量,也要兼顾到美观及整体设计风格的协调统一,柜体的外露面是设计元素的一部分,因为其面积较大,也直接影响着居室风格的走向。
置换后的主卧空间较为宽裕,所以借用了部分空间给到卫生间,实现了干湿分离。从装饰风格上,墙面依然选用艺术涂料和浅木色系柜体,自然过渡客餐厅及卧室。
原餐厅上方有一道较为生硬的直角横梁,为弱化梁柱结构,呼应玄关顶部的圆弧造型,我们将横梁由直角改成了弧形,增添空间柔和感。
原来的厨房只有一个二次采光的小窗,空间也较为狭长,经过改造后,我们设计了实用的U字形厨房,为了保证有足够的操作台面,将冰箱放在了紧邻厨房的书房一侧,拿取物品也十分方便。
04
厨房/Kitchen
U型厨房,白色柜体台,黄铜把手,简洁干净
白色柜体搭配乳白色石英石台面,金色小巧的把手,空间干净整洁。
细心的话就会发现,左边台面上隐藏了一个通往次卧的“条窗”哦~连廊的采光实在不行,所以我们通过厨房“借光”过去。
05
卧室/
Badroom
浅色系衣柜搭配木色床体,优雅宁静
带阳台的主卧朝南,能在第一时间沐浴到阳光。移门隔开了卧室与阳台,阳光透过窗帘打在室内,温柔色系的床上用品,让人的内心趋于平静。
白色的衣柜搭配精致小巧的黄铜把手,精致高级。圆柱形“树墩”与弧形的顶面遥相呼应,非常贴合女主人的文艺气息。
♬♫
♩
♪
设计到底有价值吗?
答案似乎是确定的:设计是有价值的。
房子,作为每个家庭的居所,更需要精心设计。通过户型改造,改善通风采光条件;通过柜体设计,帮助保持家的整洁;通过不同材质的色彩搭配,让每个人回到家都是开心的,整个家庭甚至会因此开启一种全新的生活方式。
建筑最终会和在里面的每一个个体产生某种精神链接。环境总是以它的方式,无时无刻,不在改造着我们。家,亦是如此。
▼
Add:南京市秦淮区悦动新门西
15栋南侧(瑞幸咖啡隔壁)
17705179826
▼
咨询请加客户经理
往期精彩
《不繁》爆改精装房,从猪肝红到未来极简风
《
织巢》两个人和五只猫的侘寂生活
《
象限》在局限中捕捉到功能无限
《
霁月》
重构边界,随光与空气舒展空间
《
借风探触》色与质的交织,嵌于空间的可触针脚
《
空格》从单调到纯粹的迁跃,仿若月色来
《
慵野》藏在宏观之下的细腻伏笔
《
悦己》咖啡豆混合烟草也是生活必须的法则
《
风物诗》
在午后巴萨诺瓦的慵懒中,想和你虚度时光
客服
消息
收藏
下载
最近
































