查看完整案例

收藏

下载
多重生活 随心切换
Multiple lives switch at will
薄小飞 | 采访撰文
私宅别墅 | 项目类型
采访地点 | 中投国际 ANGSTUDIO
李斌 | 设计师
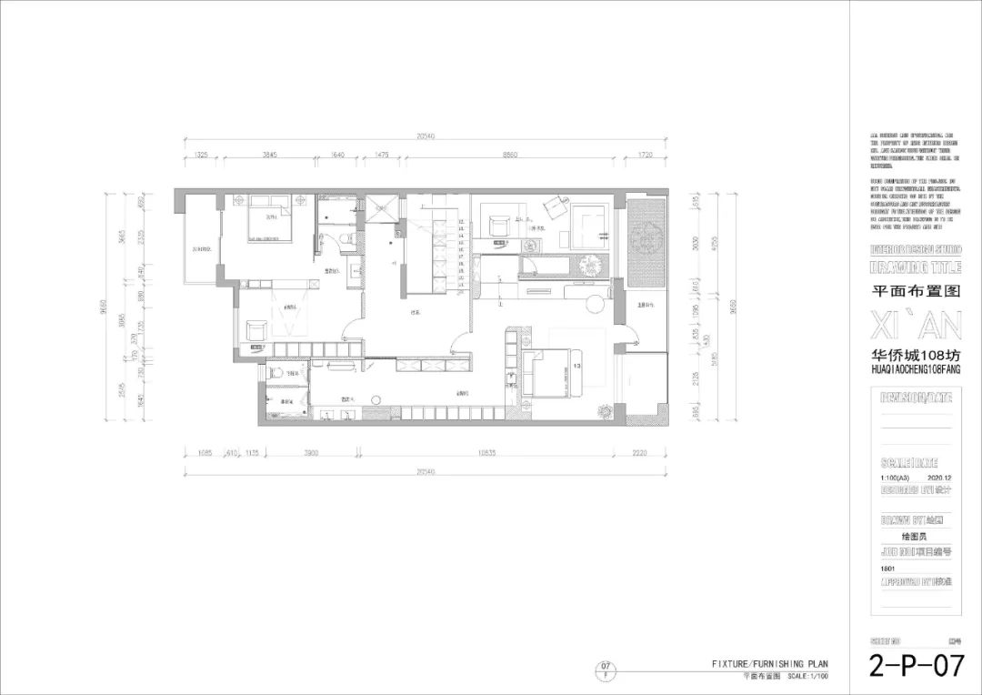
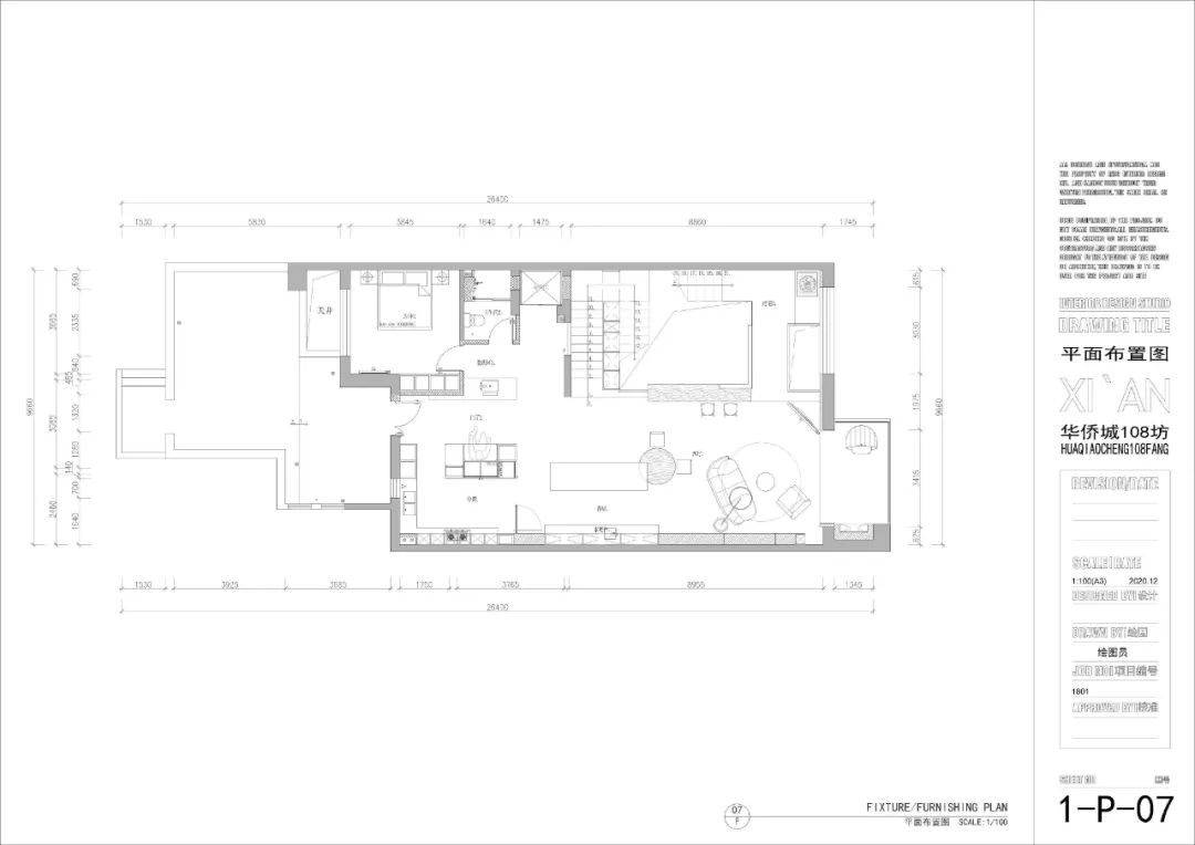
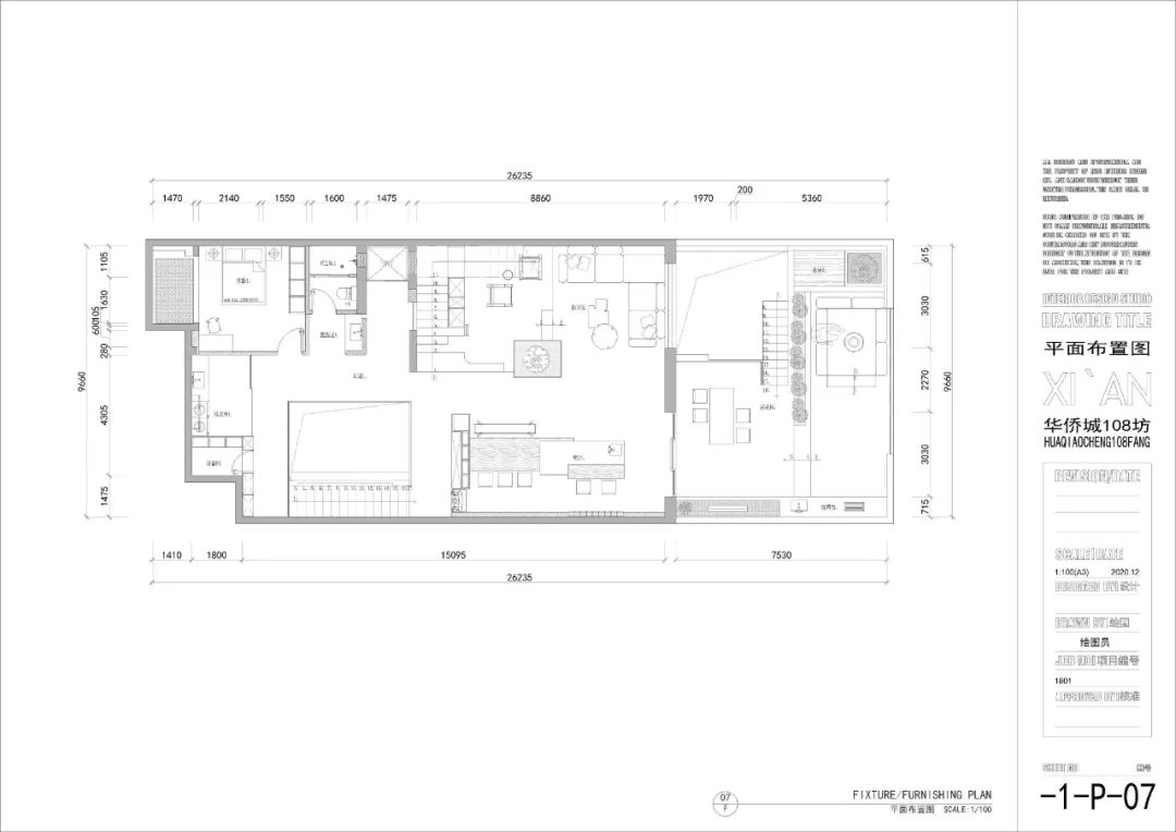
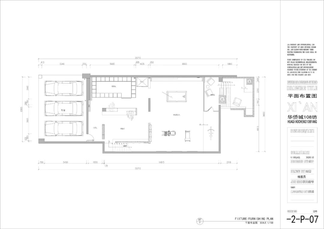
▼平面布局图 FLOOR PLAN
?2F 平面布局图
?1F 平面布局图
?-1F 平面布局图
?-2F 平面布局图
屋舍院落,暖居几间,
一半享庭院,一半迎自然,
我与清风皆过客,你与星河共余晖,
烟波别墅醉,花月后门归。
本案,华侨城 108 坊,600 平方米别墅空间,90 后的屋主毕业于宾夕法尼亚建筑系,与设计师李斌的设计思维碰撞让人期待,通过对空间的有效改造和建筑规划,室内的“主线”穿插,将四层空间纵横贯穿,每一层都拥有明显的独立的“人设”,所有的客厅、卧室、餐厅都规划朝南,视野无遮挡,绿化景观一览眼底,开阔又私密。
当有个建筑师梦想的屋主遇上细节控的设计师,一切一拍即合,以建筑的手法结合细节的控制展开了空间的“创造”。
| △ 空间 SU
|
//
START READING
负一层空间 |-1FLOOL
发掘,多样生活方式
Discovery
diversity of lifestyle
希望发掘更多样的生活方式
Hoping to explore a more diverse lifestyle
将原始空荡的一楼空间,设计师定位其功能为储藏+娱乐,公共区域主要安置于此,下沉主客厅和北面花园,内外建筑的改造结合,庭院以错层的方式关照室内空间,负一层和负二层间做出挑空空间,进行有效的结构改造,空间有了主视觉和主通道,入户留有“视口”,空间的功能和明暗关系交错,挑空的开放让采光大面积进入,每一层都有了建筑的纵向感,不分主次,只分功能。
书架&楼梯,在空间穿针引线
Bookshelves & stairs
that thread the needle in the space
流转的形态 是婉转的心思
The form of circulation is a graceful mind
作为宾夕法尼亚建筑系毕业的屋主,对于建筑是有自己的思量的,而设计师亦玩转空间的结构细节,因此,在本案的设计中,他们不仅仅是甲乙方的关系,更是设计合作的“搭档”。
楼梯是整栋建筑的动线主线,在空间纵横里“穿针引线”,为了增加空间的建筑感,微水泥拟态清水混凝土的质感,体现建筑的精神元素,希望在上下楼梯的过程中,每个阶段都有生活的情节和故事发生,楼梯仿佛是生活中的栈道,可以随时看到家庭成员的动态,产生无形的互动。
依着楼梯的造型,地通顶的书架“切入”每层,多面关照让空间有了不同的视觉角度,综合了硬朗,增添了空间的文艺氛围。
负二层空间 |-2LOOL
关照,让空间有机再生
Care
let the space organic regeneration
一半有趣,一半有机
Half fun, half organic
生活的节奏慢下来,每个细节都拥有了满满的仪式感,负一层休闲功能也是一处多用,茶区、派对区、冷餐区统统都满足,亦满足庭院的水吧功能关照,清雅不清淡,生活变得“有机再生”。
松弛,是惬意驰骋
Relax
is comfortable gallop
都是生活场景方式的“主角”
Are the "protagonists" of life scenes and ways
负二层的空间虽然更多的是储纳,但设计师希望为屋主引导式的赋予更多的生活可能,好的设计不仅规划空间,更要帮居住者营造“人设”——雪板、露营装备等等,娱乐项目的背后是鲜活的生活态度;建筑结构的穿插都是精心的计算,将负二原始的部分室内空间让给室外,拥有了一个景观露台,并挖开原来的小天井外扩空间,成为负二层的庭院,室内外均有了交通动线,模糊掉室内外的边界感,舒适度绝佳,于是,这里不再是单一的储纳空间了,和楼上空间有了同等的“地位”。
一层空间 |1FLOOL
趣味,是随心随意
Fun is what it looks like
所思何事 自由自在
Be free to think what you want
建筑的改造无处不在,原始的天井被充分利用,改造成为电梯空间,上下有了挑空的公共关系,空间开始叠加成为丝丝入扣的整体,一层的空间更多的是屋主的休闲空间,设计去客厅化,没有刻意的电视墙,结合屋主的留学经历,希望将家庭的趣味感和随意的松弛感放大,更多的多场景和无障碍空间。
更趋向于屋主的内在休闲需求,中西厨房满足不同的使用功能,但是又没有明显的设计界限,设计师希望屋主在空间的使用上,怎么舒服怎么来,预留了长辈房,虽然不常住,但是也需要面面俱到的考虑。
刻意,“复杂化”动线
Deliberately
complicate the moving line
所想何物 来日方长 趣味新鲜
What you think will grow and be interesting and fresh
设计刻意地让空间的动线“复杂化”,即使空间很大,也不是空荡无趣,而是趣味化,李斌:“就像转公园,通过不同的设计视口去观赏和感受空间,在家里寻求更多的节奏感,因为空间有电梯的便捷,所以更多的有趣小心思在上下楼梯的过程中变得不再单一”;
几何立体,建筑概念在楼梯四面玩转,自然光、拟态光、灯光有效结合,不同的视觉停顿点结合“一步一景”的设计概念,每一处仿佛都随心境发生不同的故事,景色与楼梯互动,人的参与感和空间的接触感变得强烈。
二层空间 |2FLOOL
四季与你,独一无二
Four seasons and you, unique
四时佳兴可与人同
Four good xing can be with people
二楼作为家庭成员的睡卧区域,主卧和未来的孩子房都被安置于本层。主卧的空间非常宽敞,于是将主空间分为两个大区域,睡眠主卧区域&生活配套享受区。南边对外有景观,于是为主卧床的侧面营造景观叠加的效果,规划了日式的浴缸,拟态私人汤池的舒适感,折页型材门,开关随心,室内外随意切换。
卧室兼容办公区,女主人现在读博士,需要一个比较方便的办公学习空间,因此,延展的办公区域和室内气质保持一致,亦可以和室内互动。
草木萌动,嫩芽初露,夏望繁星,秋赏满月,冬会初雪,望你在此看尽四季轮回!
ABOUT PROJECT
项目名称 / Name | 华侨城 -108 坊
项目类型 / Type | 别墅私宅
项目位置 / Location | 中国·西安
项目面积 / Area | 600㎡
完工时间 / Time | 2023 年 3 月
主创设计师 / Design | 李斌
设计团队 / Team | 王渊博、李珊
项目摄影 / Photo | 见筑 · 任东
ABOUT DESIGNER
主案设计师 | 李 斌
ANGSTUDIO 联合创始人&设计总监
—— 李 斌 ——
部分作品推荐阅读
Li Bin
Some works are recommended
▽
△筑客首发 | 李斌 × ANGSTUDIO / 龙湖天钜 生活“画像”
△
筑客首发|李斌 × ANGSTUDIO /彩虹郦城随兴起意
△
筑客首发|李斌 × ANGSTUDIO / 近水楼台“仙得粤”
关注筑客西安
投稿
对话框回复“投稿”
咨询&找设计师
对话框回复“咨询”
对话框回复“咨询”
客服
消息
收藏
下载
最近


















































