查看完整案例

收藏

下载

翻译
ÍÅÎÊÎÌ: new working spaceÔîòîãðàôèÿ © Ìàêñèì Ìàêñèìîâ / ïðåäîñòàâëåíà Enter-ra Design StudioÍÅÎÊÎÌ: new working spaceèíôîðìàöèÿ:ñòàòóñïðîåêòäàòû05.2020/
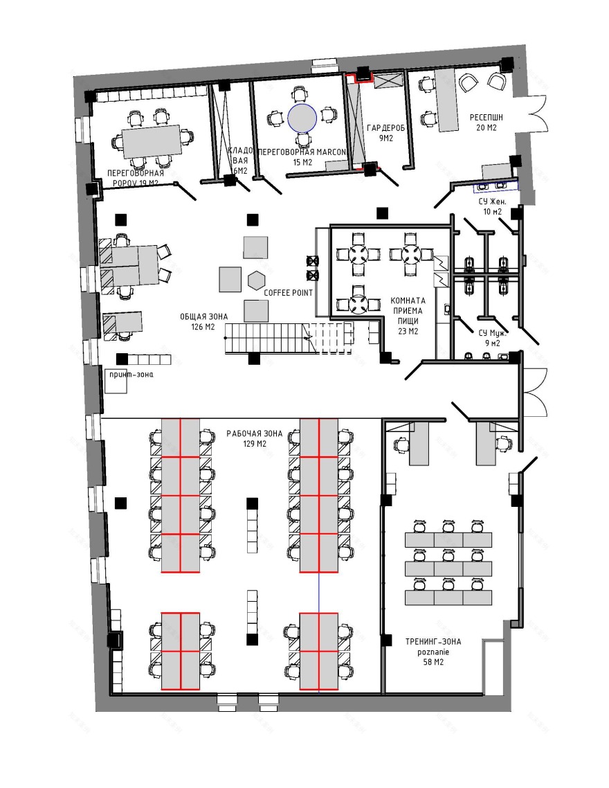
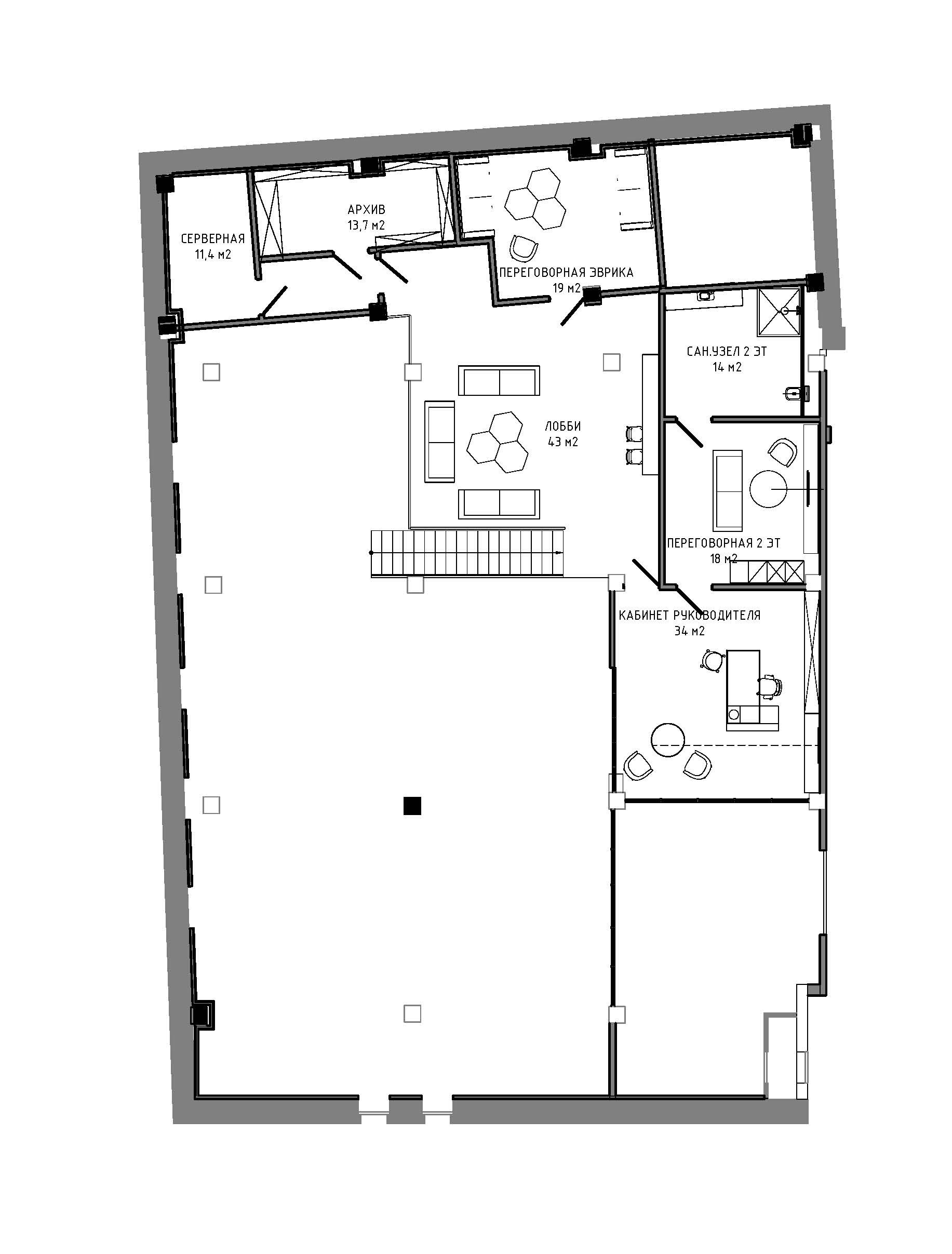
09.2020 03.2021ìåñòîÐîññèÿ,Ñàíêò-Ïåòåðáóðãóë. Ìàðøàëà Ãîâîðîâà, 52ôóíêöèÿÀäìèíèñòðàòèâíî-îôèñíûé/èíòåðüåð îôèñàòåãèsend.projectîáùàÿ ïëîùàäü583 ì2íàãðàäû:Íîìèíàíòîì ïðåìèè Best Office Award 2021 è Architect.TodayÍÅÎÊÎÌ: new working spaceÔîòîãðàôèÿ © Ìàêñèì Ìàêñèìîâ / ïðåäîñòàâëåíà Enter-ra Design StudioÀðõè.ðó îá ýòîì îáúåêòå:22.06.2021Àë¸íà Êóçíåöîâà. Êàê ðàáîòàòü âåñåëååÐàññìàòðèâàåì òðè îóïåí-ñïåéñà, ãäå ôóíêöèîíàëüíûå ðàáî÷èå ìåñòà äîïîëíÿþò ÿðêèå ðåêðåàöèîííûå ïðîñòðàíñòâà.Ðàçðàáàòûâàÿ èíòåðüåðû è ïëàíèðîâêè ñîâðåìåííûõ îôèñîâ, àðõèòåêòîðû ðåøàþò ðÿä ñïåöèôè÷åñêèõ âîïðîñîâ. ×åëîâåê ïðîâîäèò íà ðàáî÷åì ìåñòå çíà÷èòåëüíóþ ÷àñòü ñâîåé æèçíè, èíîãäà áîëüøå, ÷åì â ñîáñòâåííîì äîìå èëè â ãîðîäå, ïîýòîìó âàæíî íàäåëèòü åãî íå...÷èòàòü äàëüøåÍÅÎÊÎÌ: new working spaceÔîòîãðàôèÿ © Ìàêñèì Ìàêñèìîâ / ïðåäîñòàâëåíà Enter-ra Design Studioîïèñàíèå:Òðàäèöèè ïðèáîðîñòðîåíèÿ, çàëîæåííûå â èñõîäíîé ôóíêöèè çäàíèÿ, ïðîäîëæèë íîâûé îôèñ êîìïàíèè «Íåîêîì», çàíèìàþùåéñÿ ïðîèçâîäñòâîì ñèñòåì ðàäèîñâÿçè. ïîìåùåíèè, èçíà÷àëüíî ïðèîáðåòåííîì ïîä ñêëàäñêèå ôóíêöèè, áûë ðàçðàáîòàí îôèñíûé áëîê îáùåé ïëîùàäüþ 583 ì2 äëÿ 35-40 ñîòðóäíèêîâ êîìïàíèè.  ðåçóëüòàòå ïðîåêòíîé ðàáîòû óäàëîñü óâåëè÷èòü ïëîùàäü íà 160 ì2 è ïîëíîñòüþ ðåêîíñòðóèðîâàòü ïðîñòðàíñòâî – ñ äåìîíòàæîì àíòðåñîëüíûõ êîíñòðóêöèé, âíóòðåííèõ ïåðåãîðîäîê, óñèëåíèåì ñóùåñòâóþùèõ íåñóùèõ êîëîíí è ðàçäåëåíèåì ïîìåùåíèÿ íà äâà óðîâíÿ. Ïîñêîëüêó âûñîòó ïîòîëêà 5800 íå çàíèæàëè äîïîëíèòåëüíûìè êîíñòðóêöèÿìè, à îñòàâèëè ñóùåñòâóþùèå ïîïåðå÷íûå áàëêè è îáðàçîâàííûå èìè êåññîíû, ÷àñòü ïîìåùåíèÿ íà îòìåòêå 2600 ðàçáèëè íà äâà óðîâíÿ è îðãàíèçîâàëè äîïîëíèòåëüíî çîíó îòäûõà, òåõíè÷åñêèé è äèðåêòîðñêèé áëîê. Íà ïåðâîì óðîâíå, ïîìèìî âõîäíîé çîíû, ãàðäåðîáà, êëàäîâîé, ñàíóçëîâ è ðàáî÷åãî ïðîñòðàíñòâà â ôîðìàòå open-space, ïîëó÷èëîñü òàêæå îðãàíèçîâàòü äâå ïåðåãîâîðíûå, êîìíàòó äëÿ òðåíèíãîâ, êóõíþ è êîôå-ïîèíò ïîä áàëêîíîì âòîðîãî ýòàæà. ðåçóëüòàòå ðàññìîòðåíèÿ ìíîãî÷èñëåííûõ âàðèàíòîâ ïî ðàñïðåäåëåíèþ îòäåëîâ â ñâîáîäíîì ïðîñòðàíñòâå ðàáî÷åãî áëîêà, áûëî ïðèíÿòî ðåøåíèÿ îðãàíèçîâàòü ðàáî÷åå êðûëî ñ áåí÷àìè íà 4 è 8 ìåñò, îòäåëÿåìûìè ìåæäó ñîáîé àêóñòè÷åñêèìè ïåðåãîðîäêàìè, ñ èíäèâèäóàëüíûì îñâåùåíèåì è áëîêîì ðîçåòîê. Âñÿ ðàáî÷àÿ çîíà àêöåíòèðîâàíà öâåòîì – íàñûùåííûì îðàíæåâûì, ÿâëÿþùèìñÿ ÷àñòüþ ôèðìåííîãî ñòèëÿ êîìïàíèè. Äëÿ äîïîëíèòåëüíîãî àêóñòè÷åñêîãî êîìôîðòà â ðàáî÷åé çîíå èñïîëüçóåòñÿ êîâðîâàÿ ïëèòêà è íàñòåííûå àêóñòè÷åñêèå ïàíåëè. Òàêæå àêóñòè÷åñêèå ïàíåëè èñïîëüçóþòñÿ â ïîäâåñíîì âàðèàíòå, îòäåëÿÿ çîíàëüíî ëåñòíèöó íà 2 óðîâåíü.  îñòàëüíîé çîíå, çà èñêëþ÷åíèåì ïåðåãîâîðíûõ êîìíàò, èñïîëüçîâàí øèðîêîôîðìàòíûé êåðàìîãðàíèò êàê áîëåå èçíîñîñòîéêîå ïîêðûòèå.Àðõèòåêòóðíûå ðåøåíèÿ:3-õ ýòàæíîå çäàíèå, ïîñòðîåííîå â êîíöå 1970-õ ãã. êàê çäàíèå êîíñòðóêòîðñêîãî áþðî ÍÈÈ ïðèáîðîñòðîåíèÿ, îáðàçóåò ñîáîé çàìêíóòûé êîíòóð ñ âíóòðåííåé òåððèòîðèåé è ôëàíêèðóåòñÿ 11-ýòàæíîé áàøíåé. ÑÊÁ àíàëèòè÷åñêîãî ïðèáîðîñòðîåíèÿ - èçâåñòíàÿ â ÑÑÑÐ îðãàíèçàöèÿ, êîòîðàÿ ðàçðàáàòûâàëà è ïðîèçâîäèëà óíèêàëüíûå ïðèáîðû è îáîðóäîâàíèå äëÿ íàó÷íûõ èññëåäîâàíèé. Ïîìåùåíèå íàõîäèëîñü â çàïóùåííûì ñîñòîÿíèè è íóæäàëîñü â ïîëíîé ðåêîíñòðóêöèè.Îñíîâíûì çàïðîñîì çàêàç÷èêà, â ïåðâóþ î÷åðåäü, ñòàëî èññëåäîâàíèå ïîìåùåíèÿ è ðàññìîòðåíèå âîçìîæíîñòåé åãî ôóíêöèîíàëüíîãî èñïîëüçîâàíèÿ. Áûëè ïðåäëîæåíû ðàçëè÷íûå ñöåíàðèè ðàñïðåäåëåíèÿ ðàáî÷èõ è âòîðîñòåïåííûõ çîí ñ ðàñïðåäåëåíèåì îòäåëîâ. Ïîñëå ñîãëàñîâàíèÿ âûáðàííîãî âàðèàíòà çîíèðîâàíèÿ ïðîñòðàíñòâà áûëà îïåðàòèâíî ðàçðàáîòàíà ïðîåêòíàÿ äîêóìåíòàöèÿ äëÿ ñîãëàñîâàíèÿ ïåðåïëàíèðîâêè çäàíèÿ è ðàáîòû ñìåæíûõ èíæåíåðíûõ îðãàíèçàöèé, à òàêæå îïðåäåëåíû áàçîâûå ìàòåðèàëû îòäåëêè.Íàðåçêà íà áëîêè îôèñíîé çîíû ïîñëå îñóùåñòâëåíèÿ äåìîíòàæíûõ ðàáîò îòêðûëà êðàñèâîå ñâåòëîå ïðîñòðàíñòâî, êîòîðîå áîëüøå íå çàõîòåëîñü ðàçäåëÿòü êàáèíåòíûìè ïåðåãîðîäêàìè. Ïîÿâèëñÿ îáúåì è âîçäóõ. Âòîðîé óðîâåíü ðåøèëè ñäåëàòü íåáîëüøîé ïëîùàäüþ íàä âõîäíîé çîíîé è áëîêîì ñàíóçëîâ, íî ïîñëå ðàçðàáîòêè ïðîñòðàíñòâåííûõ ðåøåíèé, ðàñøèðèëè îòäåëüíûì äèðåêòîðñêèì áëîêîì, òåì ñàìûì óâåëè÷èâ åãî ïëîùàäü ñ ïðåäïîëàãàåìîãî êàáèíåòà â 15ì2 äî 34 ì2 ñ äîïîëíèòåëüíîé ïåðåãîâîðíîé íà 18 ì2 è ëè÷íûì ñàíóçëîì. Íà ïåðâîì ýòàæå ïîÿâèëàñü ïåðåãîâîðíàÿ ñ îêíîì, âûäåëèëîñü ìåñòî äëÿ íåáîëüøîãî ëàóíäæà â öåíòðàëüíîì ÿäðå ïîìåùåíèÿ äëÿ êîôå-áðåéêà, êîòîðûé õîòåëîñü ñäåëàòü óþòíûì è ðàñïîëàãàþùèì ê îáùåíèþ.Äåêîðàòèâíûå ðåøåíèÿ:Íåñìîòðÿ íà ñëîæíûå àðõèòåêòóðíî-êîíñòðóêòèâíûå ðåøåíèÿ è áåðåæíîå âîññòàíîâëåíèå àðõèòåêòóðíûõ ñóùåñòâóþùèõ îñîáåííîñòåé çäàíèÿ, áîëüøîå âíèìàíèå òàêæå óäåëåíî äåêîðàòèâíîìó îôîðìëåíèþ ïîìåùåíèÿ è êîëîðèñòèêå ïðîñòðàíñòâà.Ïðîàíàëèçèðîâàâ ñôåðó äåÿòåëüíîñòè êîìïàíèè, áûë ïðîâåäåí àññîöèàòèâíûé ðÿä, ñîçäàâøèé íàáîð ñèìâîëîâ è äèçàéí-ïðèåìîâ. Îñíîâíûì ìîòèâîì ñòàëè, êîíå÷íî, îáðàçû äåòàëåé ïðèáîðîâ è ðàäèîâîëí, öâåòîâûìè àêöåíòàìè öâåòà êîìïàíèè ñèíèé è îðàíæåâûé, äîáàâèëèñü ìåòàëëèêè, îòðàæàþùèå îñîáåííîñòü ðàáîòû êîìïàíèè.Èñòîðè÷åñêèå êîðíè çäàíèÿ - áûâøåãî ÍÈÈ Ïðèáîðîñòðîåíèÿ ñ ïðîèçâîäñòâåííûìè ïîìåùåíèÿìè – âäîõíîâèëè ïîääåðæàòü ýñòåòèêó èíäóñòðèàëüíîãî ëîôòà ñ õàðàêòåðíûìè îñîáåííîñòÿìè ïðîñòðàíñòâà – áåòîííûìè ïîëàìè è ïîòîëêàìè, îòêðûòûìè êîíñòðóêöèÿìè, ÷óãóííûìè êîëîííàìè, íàïîìèíàþùèìè ãàå÷íûå êëþ÷è. ×òîáû ïîä÷åðêíóòü îñîáåííîñòè ïðîìûøëåííîãî çäàíèÿ, íåñóùèå êîëîííû âûêðàñèëè òåìíûì ãðàôèòîâûì öâåòîì, íàïîìèíàþùèì ÷óãóííûå ïðîòîòèïû èíäóñòðèàëüíîãî ñòèëÿ; âîññòàíîâèëè ïîòîëî÷íûå áàëêè è êåññîíû, â îòêðûòîì âèäå ïðîâåëè èíæåíåðíûå êîììóíèêàöèè, íåêîòîðûå èç êîòîðûõ ñòàëè öâåòîâûìè àêöåíòàìè.ßðêèì è çàïîìèíàþùèìñÿ îáðàçîì ñòàëà âõîäíàÿ çîíà, ñî÷åòàþùàÿ â îòäåëêå ãðàôèò, î÷èùåííûé êèðïè÷ è ìåäíûå ëèñòû ïàòàëè. Ïàòàëüþ òàêæå îòäåëàí ðåñåïøí ïî àâòîðñêèì ÷åðòåæàì è äåêîðèðîâàíà ñòåíà îäíîé èç ïåðåãîâîðíûõ êîìíàò.Òåìà ìåäè çäåñü íåñëó÷àéíà – ìåòàëë ÷àñòî èñïîëüçóåòñÿ â ïðèáîðîñòðîåíèè. Ýòó èäåþ ðàçâèëè â îòäåëüíûé õóäîæåñòâåííûé ôîòîïðîåêò, ðåçóëüòàòîì êîòîðîãî ñòàëè áîëüøèå ïàííî â íåñêîëüêèõ ïîìåùåíèÿõ, íà êîòîðûõ íàíåñåíû ñíèìêè Àííû Ãîôìàí. Ìåòàëëè÷åñêèå ñåòêè, ìåäíûå è ñòàëüíûå ïðîâîëêè çàïå÷àòëåíû â õóäîæåñòâåííîé ñúåìêå, ñòàâøåé ÷àñòüþ äåêîðàòèâíîãî îôîðìëåíèÿ îôèñà.  îñíîâå ñþæåòà ñúåìêè ëåæèò îáðàç ñâÿçè, âçàèìîäåéñòâèÿ êàê îñíîâû ðàáîòû è ñóòè ñôåðû äåÿòåëüíîñòè êîìïàíèè. Ïðîâîäà, òðîñû è ñåòêè â ðàçíîé ïëàñòè÷åñêîé ñòðóêòóðå ñîçäàþò íåêèå êèíåòè÷åñêèå ñêóëüïòóðû, çàñòûâøèå âî âðåìåíè. Îíè ïîäñâå÷åíû ïîä ðàçíûì óãëîì è îáðàçóþò êîìïîçèöèè, îôîðìèâøèå ïðîñòðàíñòâà âõîäíîé çîíû, ïåðåãîâîðíîé, êàáèíåòà ðóêîâîäèòåëÿ è êóõíè.  ïîñëåäíåì ïîìåùåíèè äëèííàÿ ãîðèçîíòàëüíàÿ ïàíîðàìà ñîçäàåò ýôôåêò áåñêîíå÷íîñòè è ïîääåðæèâàåòñÿ æèâûìè èíñòàëëÿöèÿìè èõ ìåòàëëè÷åñêîé ñåòêè íàä êàæäûì ñòîëîì.Ñèìâîëèêà âçàèìîäåéñòâèÿ ïðîäîëæàåòñÿ â õóäîæåñòâåííîé ðîñïèñè ïðîñòðàíñòâà. Òàê, êðîìå îôîðìëåíèÿ ìåäíîé ñòåíû, õóäîæíèêîì Îëüãîé Îâ÷èííèêîâîé áûëè îôîðìëåíû ðîñïèñü áîëåå 20 ïîãîííûõ ìåòðîâ ñòåí ñ ãðàôè÷åñêèì ïðåîáðàçîâàíèåì ìèêðîñõåì, èäóùèõ îò ãðàôè÷íîãî ïàííî èç àêóñòè÷åñêèõ ïàíåëåé.  ñòèëèñòè÷åñêîì ðåøåíèè ïåðâîãî ýòàæà â êà÷åñòâå ãëàâíîãî öâåòîâîãî àêöåíòà âçÿò îðàíæåâûé öâåò – âàæíûé ýëåìåíò ôèðìåííîãî ñòèëÿ êîìïàíèè.Ñîâìåñòíî ñ ãðàôè÷åñêèì äèçàéíåðîì Åëåíîé Çóáêîâîé ðàçðàáîòàíû ðèñóíêè èíôîãðàôèêè, øðèôòîâûå íàäïèñè ïîìåùåíèé, äåêîðàòèâíûå ðåøåíèÿ ïëåíîê íà ñòåêëÿííûõ ïåðåãîðîäêàõ.  ïåðåãîâîðíîé ïîÿâèëñÿ îáðàç ðóññêîãî ôèçèêà è èçîáðåòàòåëÿ ðàäèîñâÿçè Àëåêñàíäðà Ïîïîâà, íà êóõíå – ðàäèîâîëíû, â ó÷åòíîé êîìíàòå – ïèêñåëüíûé ãðàäèåíò. Êîìíàòû ïðèîáðåëè ñâîè íàçâàíèÿ, à ïåðåãîâîðíûå íàçâàëèñü èìåíàìè âåëèêèõ èçîáðåòàòåëåé Ïîïîâà è Ìàðêîíè. ïðîåêòå èñïîëüçîâàíî ìíîãî çàêàçíûõ èçäåëèé, à òàêæå ïðîäóêöèè ðîññèéñêèõ ïðîèçâîäèòåëåé – ïëèòêè Kerama Marazzi, äâåðåé Profil Doors, ñâåòèëüíèêîâ îò ïîñòàâùèêà îñâåòèòåëüíîãî îáîðóäîâàíèÿ Bright Buro, ìåáåëè èç Ðîññèè Fabrix, Zebrano, GBD, DEFO, Archpole, êóõíè îò áåëîðóññêîé ôàáðèêè GEOS, òî÷å÷íî èñïîëüçîâàíû èòàëüÿíñêàÿ ìåáåëü Calligaris è øâåäñêàÿ Kinnarps è Ikea.ÍÅÎÊÎÌ: new working spaceÔîòîãðàôèÿ © Ìàêñèì Ìàêñèìîâ / ïðåäîñòàâëåíà Enter-ra Design StudioÍÅÎÊÎÌ: new working spaceÔîòîãðàôèÿ © Ìàêñèì Ìàêñèìîâ / ïðåäîñòàâëåíà Enter-ra Design StudioÍÅÎÊÎÌ: new working spaceÔîòîãðàôèÿ © Ìàêñèì Ìàêñèìîâ / ïðåäîñòàâëåíà Enter-ra Design StudioÍÅÎÊÎÌ: new working spaceÔîòîãðàôèÿ © Ìàêñèì Ìàêñèìîâ / ïðåäîñòàâëåíà Enter-ra Design StudioÍÅÎÊÎÌ: new working spaceÔîòîãðàôèÿ © Ìàêñèì Ìàêñèìîâ / ïðåäîñòàâëåíà Enter-ra Design StudioÍÅÎÊÎÌ: new working spaceÔîòîãðàôèÿ © Ìàêñèì Ìàêñèìîâ / ïðåäîñòàâëåíà Enter-ra Design StudioÍÅÎÊÎÌ: new working spaceÔîòîãðàôèÿ © Ìàêñèì Ìàêñèìîâ / ïðåäîñòàâëåíà Enter-ra Design StudioÍÅÎÊÎÌ: new working spaceÔîòîãðàôèÿ © Ìàêñèì Ìàêñèìîâ / ïðåäîñòàâëåíà Enter-ra Design StudioÍÅÎÊÎÌ: new working spaceÔîòîãðàôèÿ © Ìàêñèì Ìàêñèìîâ / ïðåäîñòàâëåíà Enter-ra Design StudioÍÅÎÊÎÌ: new working spaceÔîòîãðàôèÿ © Ìàêñèì Ìàêñèìîâ / ïðåäîñòàâëåíà Enter-ra Design StudioÍÅÎÊÎÌ: new working spaceÔîòîãðàôèÿ © Ìàêñèì Ìàêñèìîâ / ïðåäîñòàâëåíà Enter-ra Design StudioÍÅÎÊÎÌ: new working spaceÔîòîãðàôèÿ © Ìàêñèì Ìàêñèìîâ / ïðåäîñòàâëåíà Enter-ra Design StudioÍÅÎÊÎÌ: new working spaceÔîòîãðàôèÿ © Ìàêñèì Ìàêñèìîâ / ïðåäîñòàâëåíà Enter-ra Design StudioÍÅÎÊÎÌ: new working spaceÔîòîãðàôèÿ © Ìàêñèì Ìàêñèìîâ / ïðåäîñòàâëåíà Enter-ra Design StudioÍÅÎÊÎÌ: new working spaceÔîòîãðàôèÿ © Ìàêñèì Ìàêñèìîâ / ïðåäîñòàâëåíà Enter-ra Design StudioÍÅÎÊÎÌ: new working spaceÔîòîãðàôèÿ © Ìàêñèì Ìàêñèìîâ / ïðåäîñòàâëåíà Enter-ra Design StudioÍÅÎÊÎÌ: new working spaceÔîòîãðàôèÿ © Ìàêñèì Ìàêñèìîâ / ïðåäîñòàâëåíà Enter-ra Design Studio
客服
消息
收藏
下载
最近






















