查看完整案例

收藏

下载

翻译
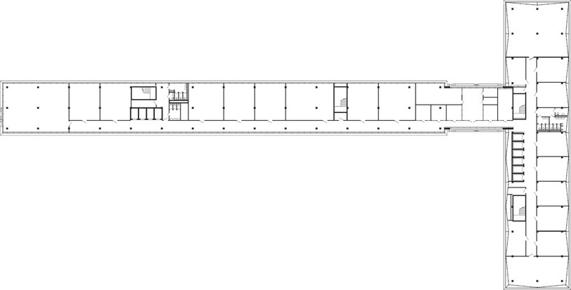
Ïðîåêò ôàñàäîâ è èíòåðüåðîâ ìíîãîôóíêöèîíàëüíîãî êîìïëåêñà ÅÕÅ© Ò+Ò ArchitectsÏðîåêò ôàñàäîâ è èíòåðüåðîâ ìíîãîôóíêöèîíàëüíîãî êîìïëåêñà ÅÕÅèíôîðìàöèÿ:ñòàòóñïðîåêòäàòû2018ìåñòîÐîññèÿ,×åëÿáèíñêóë. Òðóäà 186ôóíêöèÿÀäìèíèñòðàòèâíî-îôèñíûé/èíòåðüåð îôèñàîáùàÿ ïëîùàäü50 121 ì2Ïðîåêò ôàñàäîâ è èíòåðüåðîâ ìíîãîôóíêöèîíàëüíîãî êîìïëåêñà ÅÕÅ© Ò+Ò ArchitectsÏðîåêò ôàñàäîâ è èíòåðüåðîâ ìíîãîôóíêöèîíàëüíîãî êîìïëåêñà ÅÕÅ© Ò+Ò ArchitectsÏðîåêò ôàñàäîâ è èíòåðüåðîâ ìíîãîôóíêöèîíàëüíîãî êîìïëåêñà ÅÕÅ© Ò+Ò ArchitectsÏðîåêò ôàñàäîâ è èíòåðüåðîâ ìíîãîôóíêöèîíàëüíîãî êîìïëåêñà ÅÕÅ© Ò+Ò ArchitectsÏðîåêò ôàñàäîâ è èíòåðüåðîâ ìíîãîôóíêöèîíàëüíîãî êîìïëåêñà ÅÕÅ© Ò+Ò ArchitectsÏðîåêò ôàñàäîâ è èíòåðüåðîâ ìíîãîôóíêöèîíàëüíîãî êîìïëåêñà ÅÕÅ© Ò+Ò ArchitectsÏðîåêò ôàñàäîâ è èíòåðüåðîâ ìíîãîôóíêöèîíàëüíîãî êîìïëåêñà ÅÕÅ© Ò+Ò ArchitectsÏðîåêò ôàñàäîâ è èíòåðüåðîâ ìíîãîôóíêöèîíàëüíîãî êîìïëåêñà ÅÕÅ© Ò+Ò ArchitectsÏðîåêò ôàñàäîâ è èíòåðüåðîâ ìíîãîôóíêöèîíàëüíîãî êîìïëåêñà ÅÕÅ© Ò+Ò ArchitectsÏðîåêò ôàñàäîâ è èíòåðüåðîâ ìíîãîôóíêöèîíàëüíîãî êîìïëåêñà ÅÕÅ© Ò+Ò ArchitectsÏðîåêò ôàñàäîâ è èíòåðüåðîâ ìíîãîôóíêöèîíàëüíîãî êîìïëåêñà ÅÕÅ© Ò+Ò ArchitectsÏðîåêò ôàñàäîâ è èíòåðüåðîâ ìíîãîôóíêöèîíàëüíîãî êîìïëåêñà ÅÕÅ© Ò+Ò ArchitectsÏðîåêò ôàñàäîâ è èíòåðüåðîâ ìíîãîôóíêöèîíàëüíîãî êîìïëåêñà ÅÕÅ© Ò+Ò Architects
客服
消息
收藏
下载
最近
















