查看完整案例

收藏

下载

翻译
Ôàñàä àäìèíèñòðàòèâíîãî çäàíèÿ êîðïóñà «À» ñ óë. Ìåäóíèöèíñêàÿ ïîñëå ðåíîâàöèè © ÀðòÑèòèÀäìèíèñòðàòèâíî-îôèñíîå çäàíèå íà Ïîøåõîíñêîì øîññå. Êîðïóñ Àèíôîðìàöèÿ:ñòàòóñïðîåêòäàòû2017ìåñòîÐîññèÿ,ÂîëîãäàÏîøåõîíñêîå øîññå, 18ôóíêöèÿÀäìèíèñòðàòèâíî-îôèñíûé/àäìèíèñòðàòèâíî-îôèñíîå çäàíèåòåãèsend.projectîáùàÿ ïëîùàäü2801,0 ì2ýòàæíîñòü5ñòðîèòåëüíûé îáúåì10684,0 ì3Ôàñàäû çäàíèé Êîðïóñîâ «À
D» ñ óë. Ìåäóíèöèíñêàÿ ïîñëå ðåíîâàöèè © ÀðòÑèòèÀðõè.ðó îá ýòîì îáúåêòå:08.08.2018Àë¸íà Êóçíåöîâà. ÏåðåîäåâàíèåÏðîåêò ðåíîâàöèè ïðîìçîíû â Âîëîãäå, ïðåäëîæåííûé àðõèòåêòîðàìè ÀðòÑèòè, ñîõðàíÿåò êîíñòðóêòèâ è äàæå ñòåíû, íî äîâîëüíî ðàäèêàëüíî îñâåæàåò âíåøíîñòü. Êðîìå òîãî ìåæäó êîðïóñàìè äîëæíû ïîÿâèòüñÿ ïåðåõîäû è, êîíå÷íî æå, îáùåñòâåííûå ïðîñòðàíñòâà.Ïðîìçîíà ðàñïîëîæåíà íà þæíîé îêðàèíå Âîëîãäû, ñðåäè òèïîâûõ ìèêðîðàéîíîâ, ó ïåðåêðåñòêà ßðîñëàâñêîé óëèöû è Ïîøåõîíñêîãî øîññå. Ïëîùàäü íåñêîëüêî ìåíüøå 100 ãà, ðàçíîìàñòíûå ñêëàäñêèå êîðïóñà íåêàçèñòûõ ïðîïîðöèé íå ôóíêöèîíèðóþò è ðîçäàíû ìíîæåñòâ...÷èòàòü äàëüøåÔàñàäû çäàíèé Êîðïóñîâ «Â
À» ñ óë. Ìåäóíèöèíñêàÿ ïîñëå ðåíîâàöèè © ÀðòÑèòèîïèñàíèå:Íà þãå îò öåíòðà ãîðîäà Âîëîãäà â ñïàëüíîì ðàéîíå íàõîäèòñÿ ó÷àñòîê, ðàíåå èñïîëüçîâàâøèéñÿ â êà÷åñòâå ïðîìûøëåííîé çîíû. Ïðåäïðèÿòèÿ ïðåêðàòèëè ñâîè ïðîèçâîäñòâà, íî òåððèòîðèÿ ñ êîðïóñàìè íå ïðåòåðïåëà íèêàêèõ èçìåíåíèé. Çäàíèÿ ïî êîíñòðóêòèâó áûëè àáñîëþòíî ðàçíûìè: ïðèñóòñòâîâàëè çäàíèÿ ìåòàëëîêàðêàñíûå, æ/á êàðêàñíûå, èç ñèëèêàòíîãî è êåðàìè÷åñêîãî êèðïè÷à. Ïî çàäàíèþ çàêàç÷èêà áûëî íåîáõîäèìî âûïîëíèòü ðåêîíñòðóêöèþ âñåõ çäàíèé áåç äåìîíòàæà, ëèøü ìåíÿÿ ôóíêöèþ ïîìåùåíèé ñ èçìåíåíèåì ôàñàäîâ.Ïî íàøåìó ïðåäëîæåíèþ âåñü êîìïëåêñ çäàíèé íåîáõîäèìî áûëî îáúåäèíèòü åäèíûìè ïåøåõîäíûìè âåðòèêàëüíûìè è ãîðèçîíòàëüíûìè ñâÿçÿìè ñ îáðàçîâàíèåì ìíîæåñòâà óíèâåðñàëüíûõ îáùåñòâåííûõ ïðîñòðàíñòâ, êîòîðûå ñ ïîìîùüþ ïåðåõîäîâ ìåæäó çäàíèÿìè, ïðåäîñòàâëÿþò âîçìîæíîñòü óäîáíîãî ïåðåìåùåíèÿ íà çàïðîåêòèðîâàííûå àíòðåñîëüíûå ýòàæè è ýêñïëóàòèðóåìûå êðîâëè.Êîðïóñ «À» èçíà÷àëüíî áûë îôèñíûì. Ïðîåêòîì ïðåäóñìîòðåíà íàäñòðîéêà 5-ãî ýòàæà, ïåðåïëàíèðîâêà è ïåðåóñòðîéñòâî âíóòðåííèõ ïîìåùåíèé ñ èçìåíåíèÿìè ôàñàäíûõ ðåøåíèé çäàíèÿ ñ ñèëèêàòíîãî êèðïè÷à íà ñîâðåìåííûå âåíòôàñàäû ñ âèòðàæíûì îñòåêëåíèåì. Âî äâîðå çàïðîåêòèðîâàíà êðûòàÿ ïàðêîâêà ñ óñòðîéñòâîì íà íåé îáùåñòâåííîãî ïðîñòðàíñòâà.Îáùåñòâåííîå ïðîñòðàíñòâî ìåæäó Êîðïóñîì À è D © ÀðòÑèòèÂèä ñâåðõó íà îáùåñòâåííîå ïðîñòðàíñòâî ìåæäó êîðïóñîì À è D © ÀðòÑèòèÂèä ñâåðõó íà òåððèòîðèþ ðåíîâàöèè ïðîìçîíû © ÀðòÑèòèÂèä ñâåðõó íà òåððèòîðèþ ðåíîâàöèè ïðîìçîíû © ÀðòÑèòèÀäìèíèñòðàòèâíî-îôèñíîå çäàíèå íà Ïîøåõîíñêîì øîññå. Ñóùåñòâóþùåå ïîëîæåíèå © ÀðòÑèòèÀäìèíèñòðàòèâíî-îôèñíîå çäàíèå íà Ïîøåõîíñêîì øîññå. Ñóùåñòâóþùåå ïîëîæåíèå© ÀðòÑèòèÔàñàä àäìèíèñòðàòèâíîãî çäàíèÿ êîðïóñà «À» ñ óë. Ìåäóíèöèíñêàÿ äî ðåíîâàöèè
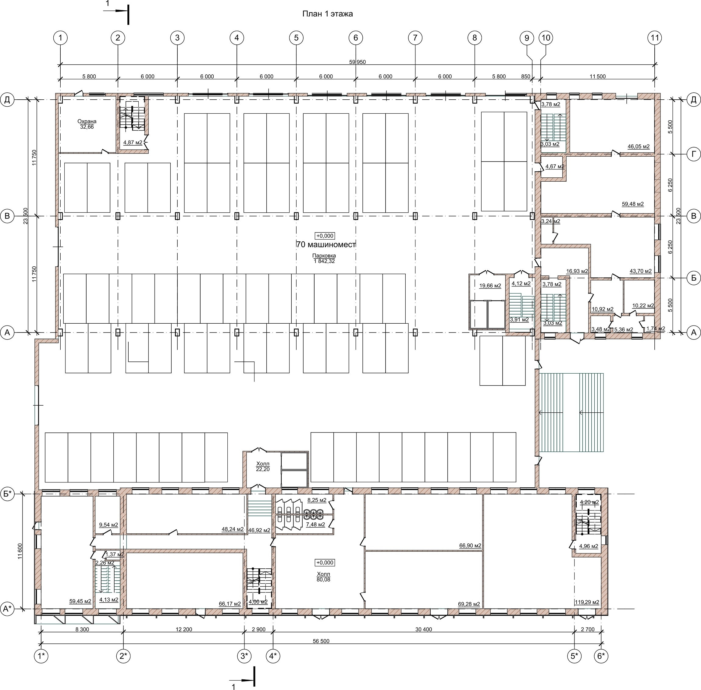
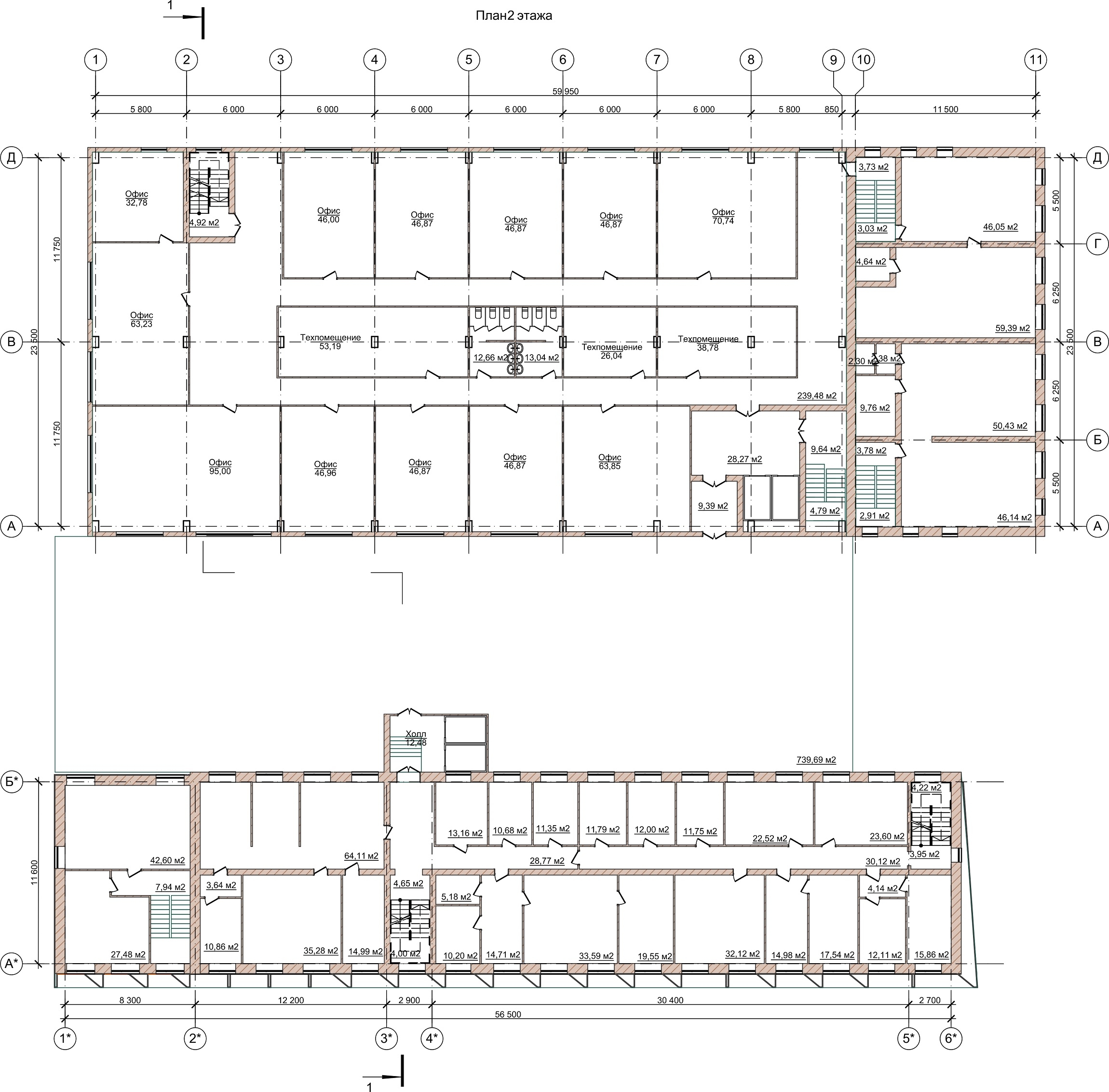
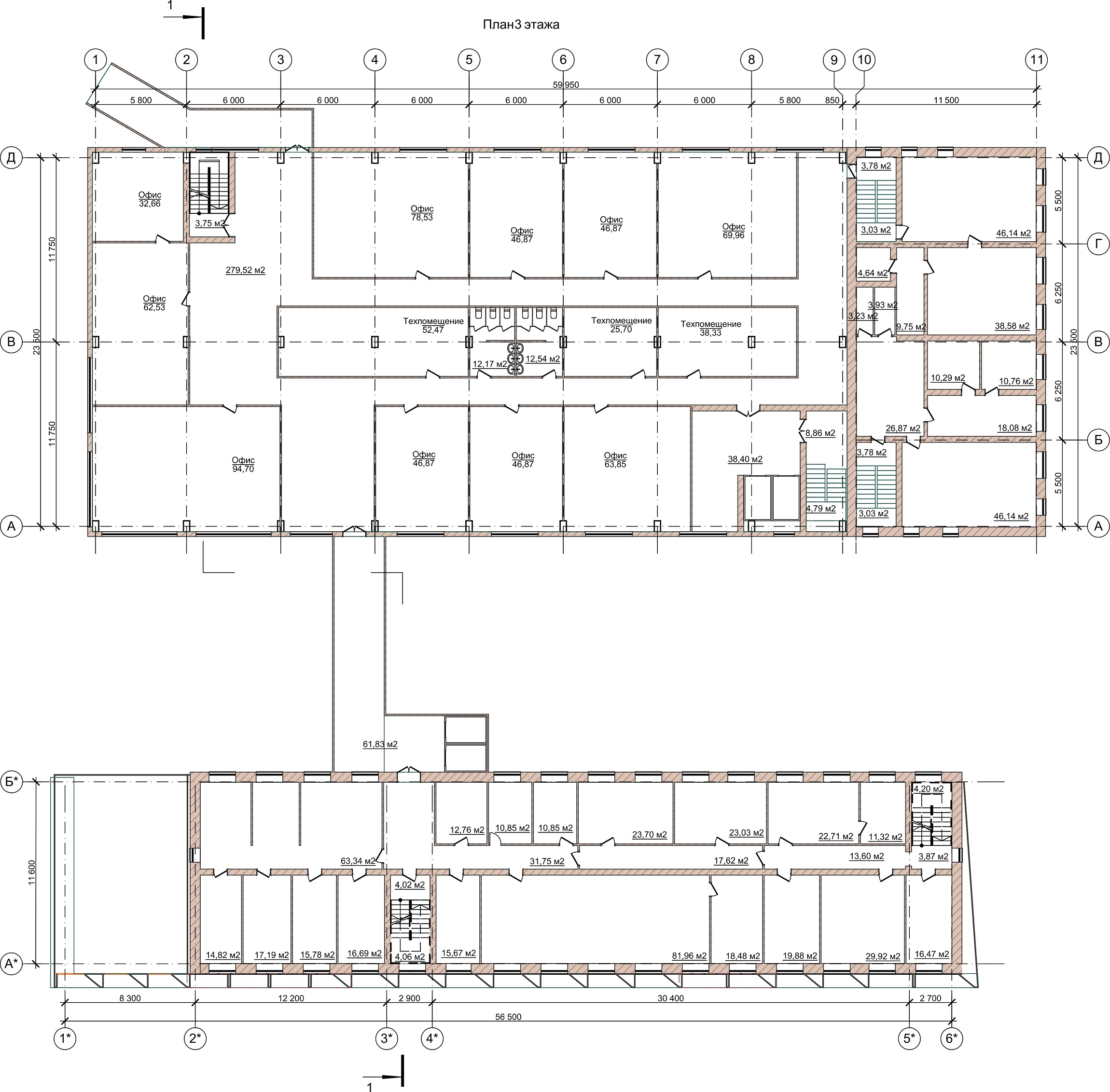
© ÀðòÑèòèÎáúåìíî-ïðîñòðàíñòâåííîå ðåøåíèå ôàñàäîâ êîðïóñà À © ÀðòÑèòèÎáúåìíî-ïðîñòðàíñòâåííîå ðåøåíèå ôàñàäîâ êîðïóñà À © ÀðòÑèòèÎáúåìíî-ïðîñòðàíñòâåííîå ðåøåíèå ôàñàäîâ êîðïóñà À © ÀðòÑèòèÎáúåìíî-ïðîñòðàíñòâåííîå ðåøåíèå ôàñàäîâ êîðïóñà À © ÀðòÑèòèÎáúåìíî-ïðîñòðàíñòâåííîå ðåøåíèå ôàñàäîâ êîðïóñà À © ÀðòÑèòèÎáúåìíî-ïðîñòðàíñòâåííîå ðåøåíèå ôàñàäîâ êîðïóñà À © ÀðòÑèòèÎáúåìíî-ïðîñòðàíñòâåííîå ðåøåíèå ôàñàäîâ êîðïóñà À © ÀðòÑèòèÎáúåìíî-ïðîñòðàíñòâåííîå ðåøåíèå ôàñàäîâ êîðïóñà À © ÀðòÑèòèÎáúåìíî-ïðîñòðàíñòâåííîå ðåøåíèå ôàñàäîâ êîðïóñà À © ÀðòÑèòèÎáúåìíî-ïðîñòðàíñòâåííîå ðåøåíèå ôàñàäîâ êîðïóñà À © ÀðòÑèòèÎáúåìíî-ïðîñòðàíñòâåííîå ðåøåíèå ôàñàäîâ êîðïóñà À © ÀðòÑèòèÎáúåìíî-ïðîñòðàíñòâåííîå ðåøåíèå ôàñàäîâ êîðïóñà À © ÀðòÑèòèÎáúåìíî-ïðîñòðàíñòâåííîå ðåøåíèå ôàñàäîâ êîðïóñà À © ÀðòÑèòèÀäìèíèñòðàòèâíî-îôèñíîå çäàíèå íà Ïîøåõîíñêîì øîññå. Ôàñàä 10-1 © ÀðòÑèòèÀäìèíèñòðàòèâíî-îôèñíîå çäàíèå íà Ïîøåõîíñêîì øîññå. Ôàñàä 1-10 © ÀðòÑèòèÀäìèíèñòðàòèâíî-îôèñíîå çäàíèå íà Ïîøåõîíñêîì øîññå. Ðàçðåç 1-1 © ÀðòÑèòèÀäìèíèñòðàòèâíî-îôèñíîå çäàíèå íà Ïîøåõîíñêîì øîññå. Ôàñàä B-A © ÀðòÑèòèÀäìèíèñòðàòèâíî-îôèñíîå çäàíèå íà Ïîøåõîíñêîì øîññå. Ôàñàäû À-D © ÀðòÑèòèÀäìèíèñòðàòèâíî-îôèñíîå çäàíèå íà Ïîøåõîíñêîì øîññå. Ïëàí 1 ýòàæà © ÀðòÑèòèÀäìèíèñòðàòèâíî-îôèñíîå çäàíèå íà Ïîøåõîíñêîì øîññå. Ïëàí 2 ýòàæà © ÀðòÑèòèÀäìèíèñòðàòèâíî-îôèñíîå çäàíèå íà Ïîøåõîíñêîì øîññå. Ïëàí 3 ýòàæà © ÀðòÑèòèÀäìèíèñòðàòèâíî-îôèñíîå çäàíèå íà Ïîøåõîíñêîì øîññå. Ïëàí 4 ýòàæà © ÀðòÑèòèÀäìèíèñòðàòèâíî-îôèñíîå çäàíèå íà Ïîøåõîíñêîì øîññå. Ïëàí 5 ýòàæà © ÀðòÑèòèÀäìèíèñòðàòèâíî-îôèñíîå çäàíèå íà Ïîøåõîíñêîì øîññå. Ïëàí êðûëüöà © ÀðòÑèòèÃðàíèöû ðåíîâàöèè ñ íàèìåíîâàíèåì êîðïóñîâ © ÀðòÑèòèÀäìèíèñòðàòèâíî-îôèñíîå çäàíèå íà Ïîøåõîíñêîì øîññå. Ñèòóàöèîííûé ïëàí © ÀðòÑèòèÀäìèíèñòðàòèâíî-îôèñíîå çäàíèå íà Ïîøåõîíñêîì øîññå. Ãåíïëàí © ÀðòÑèòè
客服
消息
收藏
下载
最近







































