查看完整案例

收藏

下载

翻译
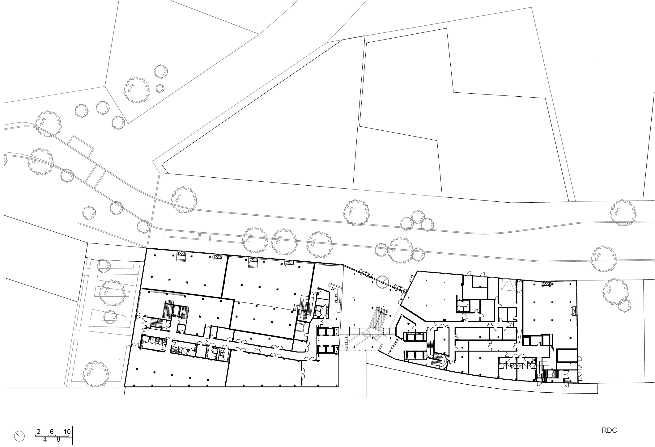
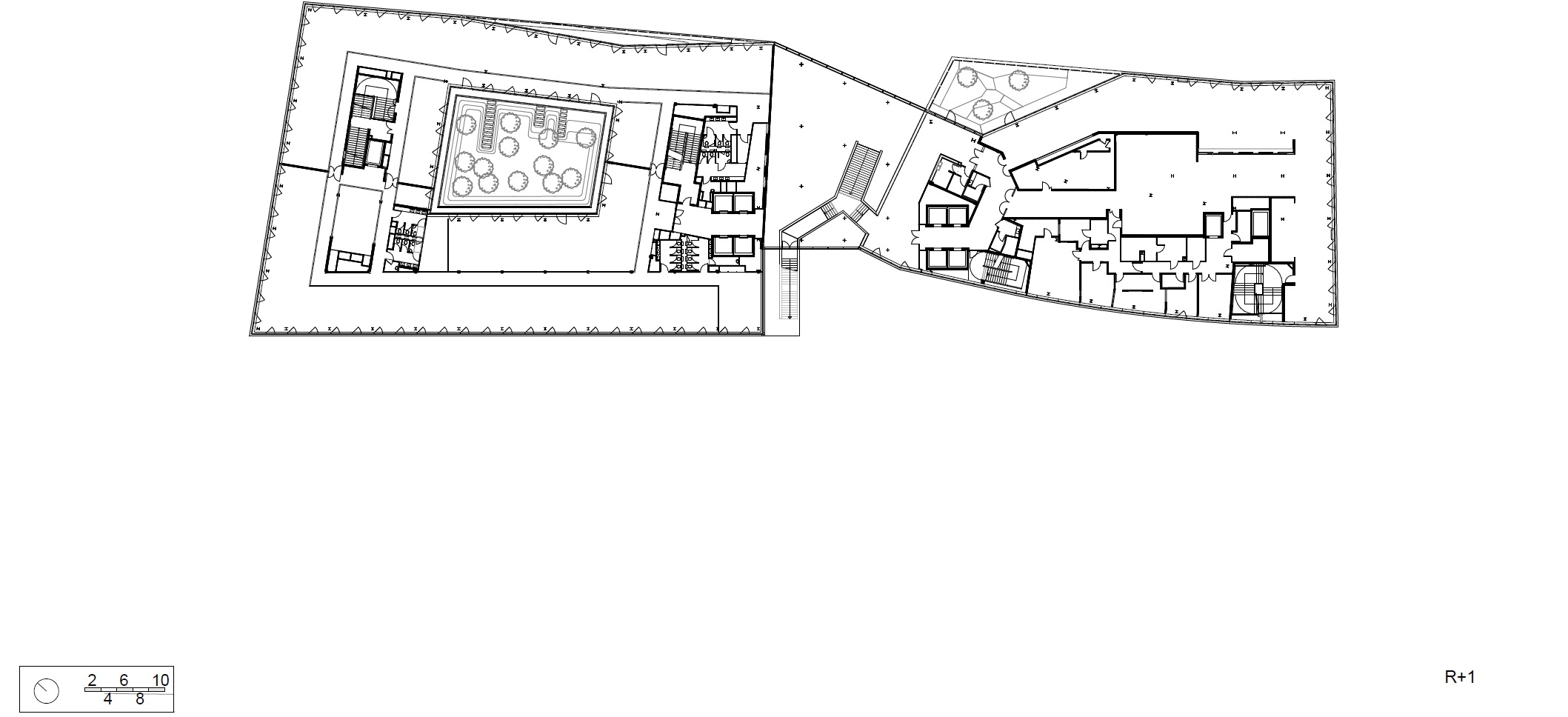
Îôèñíîå çäàíèå Lot 7 © Sergio GraziaÎôèñíîå çäàíèå Lot 7/ Lot 7 office buildingèíôîðìàöèÿ:ñòàòóñðåàëèçîâàíîäàòû2013/
2017ìåñòîÔðàíöèÿ,ÏàðèæôóíêöèÿÀäìèíèñòðàòèâíî-îôèñíûé/îôèñíîå çäàíèåòåãèÊåðàìèêà,Ëåñòíèöà,Òåððàñà,Ôàñàäîáùàÿ ïëîùàäü24 200 ì2Îôèñíîå çäàíèå Lot 7 © Sergio GraziaÀðõè.ðó îá ýòîì îáúåêòå:08.02.2018Íèíà Ôðîëîâà. Íà óëèöå Ìñòèñëàâà Ðîñòðîïîâè÷àÎôèñíîå çäàíèå ïî ïðîåêòó ChartierDalix è Brenac & Gonzalez & Associés íà ñåâåðî-çàïàäå Ïàðèæà îòêëèêàåòñÿ ðèñóíêîì ôàñàäîâ íà æåëåçíîäîðîæíûå ïóòè, ñ êîòîðûìè ãðàíè÷èò.÷èòàòü äàëüøåÎôèñíîå çäàíèå Lot 7 © Sergio GraziaÎôèñíîå çäàíèå Lot 7 © Sergio GraziaÎôèñíîå çäàíèå Lot 7 © Takuji ShimmuraÎôèñíîå çäàíèå Lot 7 © Takuji ShimmuraÎôèñíîå çäàíèå Lot 7 © Stefan TuchilaÎôèñíîå çäàíèå Lot 7 © Sergio GraziaÎôèñíîå çäàíèå Lot 7 © Takuji ShimmuraÎôèñíîå çäàíèå Lot 7 © Takuji ShimmuraÎôèñíîå çäàíèå Lot 7 © Takuji ShimmuraÎôèñíîå çäàíèå Lot 7 © Takuji ShimmuraÎôèñíîå çäàíèå Lot 7 © Takuji ShimmuraÎôèñíîå çäàíèå Lot 7 © Sergio GraziaÎôèñíîå çäàíèå Lot 7 © Stefan TuchilaÎôèñíîå çäàíèå Lot 7 © Stefan TuchilaÎôèñíîå çäàíèå Lot 7 © Stefan TuchilaÎôèñíîå çäàíèå Lot 7 © Stefan TuchilaÎôèñíîå çäàíèå Lot 7 © Takuji ShimmuraÎôèñíîå çäàíèå Lot 7 © Stefan TuchilaÎôèñíîå çäàíèå Lot 7 © Sergio GraziaÎôèñíîå çäàíèå Lot 7 © Sergio GraziaÎôèñíîå çäàíèå Lot 7 © Sergio GraziaÎôèñíîå çäàíèå Lot 7 © Sergio GraziaÎôèñíîå çäàíèå Lot 7 © Takuji ShimmuraÎôèñíîå çäàíèå Lot 7 © Takuji ShimmuraÎôèñíîå çäàíèå Lot 7 © Sergio GraziaÎôèñíîå çäàíèå Lot 7 © Stefan TuchilaÎôèñíîå çäàíèå Lot 7 © Stefan TuchilaÎôèñíîå çäàíèå Lot 7 © Stefan TuchilaÎôèñíîå çäàíèå Lot 7 © Takuji ShimmuraÎôèñíîå çäàíèå Lot 7 © Stefan TuchilaÎôèñíîå çäàíèå Lot 7 © Stefan TuchilaÎôèñíîå çäàíèå Lot 7 © Sergio GraziaÎôèñíîå çäàíèå Lot 7 © Takuji ShimmuraÎôèñíîå çäàíèå Lot 7 © Sergio GraziaÎôèñíîå çäàíèå Lot 7 © Stefan TuchilaÎôèñíîå çäàíèå Lot 7 © Stefan TuchilaÎôèñíîå çäàíèå Lot 7 © Stefan TuchilaÎôèñíîå çäàíèå Lot 7 © Sergio GraziaÎôèñíîå çäàíèå Lot 7 © ChartierDalix è Brenac & Gonzalez & AssociésÎôèñíîå çäàíèå Lot 7 © ChartierDalix è Brenac & Gonzalez & AssociésÎôèñíîå çäàíèå Lot 7 © ChartierDalix è Brenac & Gonzalez & AssociésÎôèñíîå çäàíèå Lot 7 © ChartierDalix è Brenac & Gonzalez & AssociésÎôèñíîå çäàíèå Lot 7 © ChartierDalix è Brenac & Gonzalez & AssociésÎôèñíîå çäàíèå Lot 7 © ChartierDalix è Brenac & Gonzalez & AssociésÎôèñíîå çäàíèå Lot 7 © ChartierDalix è Brenac & Gonzalez & AssociésÎôèñíîå çäàíèå Lot 7 © ChartierDalix è Brenac & Gonzalez & AssociésÎôèñíîå çäàíèå Lot 7 © ChartierDalix è Brenac & Gonzalez & AssociésÎôèñíîå çäàíèå Lot 7 © ChartierDalix è Brenac & Gonzalez & AssociésÎôèñíîå çäàíèå Lot 7 © ChartierDalix è Brenac & Gonzalez & AssociésÎôèñíîå çäàíèå Lot 7 © ChartierDalix è Brenac & Gonzalez & AssociésÎôèñíîå çäàíèå Lot 7 © ChartierDalix è Brenac & Gonzalez & AssociésÎôèñíîå çäàíèå Lot 7 © ChartierDalix è Brenac & Gonzalez & AssociésÎôèñíîå çäàíèå Lot 7 © ChartierDalix è Brenac & Gonzalez & AssociésÎôèñíîå çäàíèå Lot 7 © ChartierDalix è Brenac & Gonzalez & AssociésÎôèñíîå çäàíèå Lot 7 © ChartierDalix è Brenac & Gonzalez & AssociésÎôèñíîå çäàíèå Lot 7 © ChartierDalix è Brenac & Gonzalez & AssociésÎôèñíîå çäàíèå Lot 7 © ChartierDalix è Brenac & Gonzalez & AssociésÎôèñíîå çäàíèå Lot 7 © ChartierDalix è Brenac & Gonzalez & AssociésÎôèñíîå çäàíèå Lot 7 © ChartierDalix è Brenac & Gonzalez & AssociésÎôèñíîå çäàíèå Lot 7 © ChartierDalix è Brenac & Gonzalez & AssociésÎôèñíîå çäàíèå Lot 7 © ChartierDalix è Brenac & Gonzalez & AssociésÎôèñíîå çäàíèå Lot 7 © ChartierDalix è Brenac & Gonzalez & AssociésÎôèñíîå çäàíèå Lot 7 © ChartierDalix è Brenac & Gonzalez & AssociésÎôèñíîå çäàíèå Lot 7 © ChartierDalix è Brenac & Gonzalez & AssociésÎôèñíîå çäàíèå Lot 7 © ChartierDalix è Brenac & Gonzalez & AssociésÎôèñíîå çäàíèå Lot 7 © ChartierDalix è Brenac & Gonzalez & AssociésÎôèñíîå çäàíèå Lot 7 © ChartierDalix è Brenac & Gonzalez & AssociésÎôèñíîå çäàíèå Lot 7 © ChartierDalix è Brenac & Gonzalez & AssociésÎôèñíîå çäàíèå Lot 7 © ChartierDalix è Brenac & Gonzalez & AssociésÎôèñíîå çäàíèå Lot 7 © ChartierDalix è Brenac & Gonzalez & Associés
客服
消息
收藏
下载
最近







































































