查看完整案例

收藏

下载

翻译
Äåëîâîé öåíòð íà óëèöå Êðàñèíà; âèä íà äâîðîâûé ôàñàä ñ þãî-çàïàäà. Ôîòîãðàôèÿ © Àëåêñåé Íàðîäèöêèé, 2016Äåëîâîé öåíòð íà óëèöå Êðàñèíàèíôîðìàöèÿ:ñòàòóñðåàëèçîâàíîäàòû20132014/20142016ìåñòîÐîññèÿ,Ìîñêâàóëèöà Êðàñèíà ä. 3 ñòð. 1, 3, 4, 6, 7ôóíêöèÿÀäìèíèñòðàòèâíî-îôèñíûé/äåëîâîé öåíòðïëîùàäü ó÷àñòêà0,43 ãàîáùàÿ ïëîùàäü111 825 ì2Äåëîâîé öåíòð íà óëèöå Êðàñèíà; âèä ñ ïðîòèâîïîëîæíîé ñòîðîíû Ñàäîâîãî êîëüöà. ÒÏÎ «Ðåçåðâ», ðåàëèçàöèÿ, 2016. Ôîòîãðàôèÿ © Þëèÿ Òàðàáàðèíà, Àðõè.ðóÀðõè.ðó îá ýòîì îáúåêòå:30.11.2016Þëèÿ Òàðàáàðèíà. Ïîä óãëîì 8°Íîâîå çäàíèå íà óëèöå Êðàñèíà ëåãêî è ÿñíî îðãàíèçóåò êàê ñàìîãî ñåáÿ, òàê è ïðîñòðàíñòâî âîêðóã, íåïðèíóæä¸ííî èãðàÿ ñ óãëàìè è îòðàæåíèÿìè.Îôèñíîå çäàíèå íà óëèöå Êðàñèíà âèäíî èç ìàøèíû, åäóùåé ïî âíåøíåé ñòîðîíå Ñàäîâîãî êîëüöà íàïðîòèâ Ïàòðèàðøèõ: ãðàôè÷íàÿ ðåø¸òêà ôàñàäà õîðîøî, õîòÿ ìèìîë¸òíî, ÷èòàåòñÿ â ñòâîðå óëèöû. Åãî ïîÿâëåíèþ ïðåäøåñòâîâàë ïðîâåä¸ííûé çàêàç÷èêîì çàêðûòûé êîí...÷èòàòü äàëüøåÄåëîâîé öåíòð íà óëèöå Êðàñèíà; âèä ñî ñòîðîíû Çîîëîãè÷åñêîé óëèöû âå÷åðîì. Ôîòîãðàôèÿ © Àëåêñåé Íàðîäèöêèé, 2016îïèñàíèå:Ó÷àñòîê ïðîåêòèðóåìîãî îôèñíîãî çäàíèÿ íàõîäèòñÿ â íåïîñðåäñòâåííîé áëèçîñòè îò Ñàäîâîãî êîëüöà. Çäàíèå ñòîèò íà èçëîìå óëèöû Êðàñèíà è çàìûêàåò å¸ ïåðñïåêòèâó ïðè âçãëÿäå ñî ñòîðîíû Áîëüøîé Ñàäîâîé óë. Ãðàäîñòðîèòåëüíàÿ çíà÷èìîñòü ìåñòà ïðîåêòèðîâàíèÿ ïîâëèÿëà íà âíåøíèé âèä çäàíèÿ: âñå ïðåäñòàâëåííûå íà êîíêóðñå âàðèàíòû îáëàäàþò ýôôåêòíûìè ôàñàäàìè, ðàññ÷èòàííûìè íà âîñïðèÿòèå ñ ýòîãî ðàêóðñà. Îäíèì èç âûçîâîâ, ñ êîòîðûì ðàáîòàëà êîìàíäà àðõèòåêòîðîâ áûëà çàäà÷à ýôôåêòèâíîãî èñïîëüçîâàíèÿ ó÷àñòêà ñëîæíîé êîíôèãóðàöèè ñ ìíîãî÷èñëåííûìè îãðàíè÷åíèÿìè, ñôîðìèðîâàííûìè êàê áëèçêî ðàñïîëîæåííîé îêðóæàþùåé çàñòðîéêîé, òàê è ãðàäîñòðîèòåëüíûì ðåãóëèðîâàíèåì.Äåëîâîé öåíòð íà óëèöå Êðàñèíà; âèä ñî ñòîðîíû Ñàäîâîãî êîëüöà. ÒÏÎ «Ðåçåðâ», ðåàëèçàöèÿ, 2016. Ôîòîãðàôèÿ © Þëèÿ Òàðàáàðèíà, Àðõè.ðóïðåññà:31.05.2017Àðòåì Äåæóðêî.
10 çäàíèé, êîòîðûå äàþò ïîíÿòü, ÷òî ñëó÷èëîñü ñ àðõèòåêòóðîé ïîñëå Ëóæêîâà
// Àôèøà
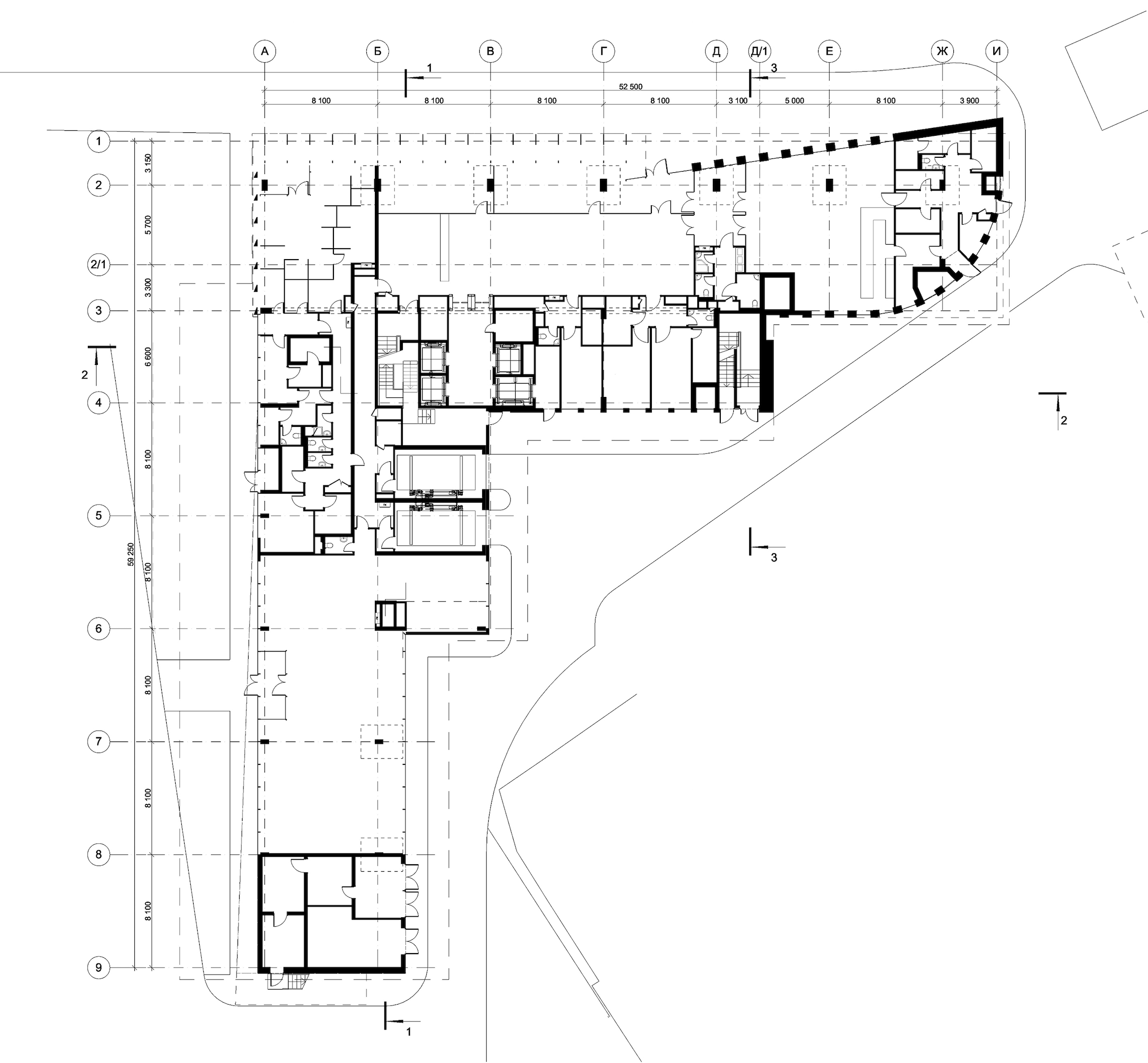
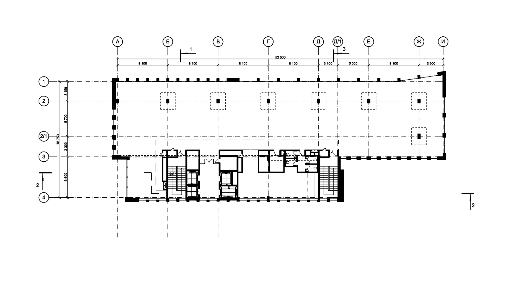
, 31.05.2017Äåëîâîé öåíòð íà óëèöå Êðàñèíà; âèä ñî ñòîðîíû Ñàäîâîãî êîëüöà. Ôîòîãðàôèÿ © Àëåêñåé Íàðîäèöêèé, 2016Äåëîâîé öåíòð íà óëèöå Êðàñèíà; âèä ñ ïðîòèâîïîëîæíîé ñòîðîíû óëèöû. Ôîòîãðàôèÿ © Àëåêñåé Íàðîäèöêèé, 2016Äåëîâîé öåíòð íà óëèöå Êðàñèíà; âèä ñ ïðîòèâîïîëîæíîé ñòîðîíû Ñàäîâîãî êîëüöà. Ôîòîãðàôèÿ © Àëåêñåé Íàðîäèöêèé, 2016Äåëîâîé öåíòð íà óëèöå Êðàñèíà; âèä ñ Ìàëîé Áðîííîé. Ôîòîãðàôèÿ © Àëåêñåé Íàðîäèöêèé, 2016Äåëîâîé öåíòð íà óëèöå Êðàñèíà; âèä ñ ïðîòèâîïîëîæíîé ñòîðîíû óëèöû. Ôîòîãðàôèÿ © Àëåêñåé Íàðîäèöêèé, 2016Äåëîâîé öåíòð íà óëèöå Êðàñèíà; âèä ñî ñòîðîíû Çîîëîãè÷åñêîé óëèöû. ÒÏÎ «Ðåçåðâ», ðåàëèçàöèÿ, 2016. Ôîòîãðàôèÿ © Þëèÿ Òàðàáàðèíà, Àðõè.ðóÄåëîâîé öåíòð íà óëèöå Êðàñèíà. ÒÏÎ «Ðåçåðâ», ðåàëèçàöèÿ, 2016. Ôîòîãðàôèÿ © Þëèÿ Òàðàáàðèíà, Àðõè.ðóÄåëîâîé öåíòð íà óëèöå Êðàñèíà. ÒÏÎ «Ðåçåðâ», ðåàëèçàöèÿ, 2016. Ôîòîãðàôèÿ © Þëèÿ Òàðàáàðèíà, Àðõè.ðóÄåëîâîé öåíòð íà óëèöå Êðàñèíà; âõîä, âèä ñî ñòîðîíû Ñàäîâîãî êîëüöà. Ôîòîãðàôèÿ © Àëåêñåé Íàðîäèöêèé, 2016Äåëîâîé öåíòð íà óëèöå Êðàñèíà; ãàëåðåÿ è âõîä. Ôîòîãðàôèÿ © Àëåêñåé Íàðîäèöêèé, 2016Äåëîâîé öåíòð íà óëèöå Êðàñèíà; ãàëåðåÿ, âçãëÿä â ñòîðîíó Ñàäîâîãî êîëüöà. Ôîòîãðàôèÿ © Àëåêñåé Íàðîäèöêèé, 2016Äåëîâîé öåíòð íà óëèöå Êðàñèíà; òîðöåâîé ôàñàä è âûåçä. Ôîòîãðàôèÿ © Àëåêñåé Íàðîäèöêèé, 2016Äåëîâîé öåíòð íà óëèöå Êðàñèíà; äâîðîâûé ôàñàä è òðåõýòàæíûé êîðïóñ (ñëåâà). Ôîòîãðàôèÿ © Àëåêñåé Íàðîäèöêèé, 2016Äåëîâîé öåíòð íà óëèöå Êðàñèíà; ãàëåðåÿ, âçãëÿä â ñòîðîíó Çîîëîãèåñêîé óëèöû. Ôîòîãðàôèÿ © Àëåêñåé Íàðîäèöêèé, 2016Äåëîâîé öåíòð íà óëèöå Êðàñèíà; äâîðîâûé ôàñàä è âûåçä. Ôîòîãðàôèÿ © Àëåêñåé Íàðîäèöêèé, 2016Äåëîâîé öåíòð íà óëèöå Êðàñèíà. Ðåàëèçàöèÿ, 2016 © ÒÏÎ «Ðåçåðâ»Äåëîâîé öåíòð íà óëèöå Êðàñèíà. Ðåàëèçàöèÿ, 2016 © ÒÏÎ «Ðåçåðâ»Äåëîâîé öåíòð íà óëèöå Êðàñèíà. ÒÏÎ «Ðåçåðâ», ðåàëèçàöèÿ, 2016. Ôîòîãðàôèÿ © Þëèÿ Òàðàáàðèíà, Àðõè.ðóÄåëîâîé öåíòð íà óëèöå Êðàñèíà. ÒÏÎ «Ðåçåðâ», ðåàëèçàöèÿ, 2016. Ôîòîãðàôèÿ © Þëèÿ Òàðàáàðèíà, Àðõè.ðóÄåëîâîé öåíòð íà óëèöå Êðàñèíà. ÒÏÎ «Ðåçåðâ», ðåàëèçàöèÿ, 2016. Ôîòîãðàôèÿ © Þëèÿ Òàðàáàðèíà, Àðõè.ðóÄåëîâîé öåíòð íà óëèöå Êðàñèíà. ÒÏÎ «Ðåçåðâ», ðåàëèçàöèÿ, 2016. Ôîòîãðàôèÿ © Þëèÿ Òàðàáàðèíà, Àðõè.ðóÄåëîâîé öåíòð íà óëèöå Êðàñèíà; óëè÷íàÿ ãàëåðåÿ, âèä â ñòîðîíó Çîîëîãè÷åñêîé óëèöû. ÒÏÎ «Ðåçåðâ», ðåàëèçàöèÿ, 2016. Ôîòîãðàôèÿ © Þëèÿ Òàðàáàðèíà, Àðõè.ðóÄåëîâîé öåíòð íà óëèöå Êðàñèíà; óëè÷íàÿ ãàëåðåÿ, âèä â ñòîðîíó Ñàäîâîãî êîëüöà. ÒÏÎ «Ðåçåðâ», ðåàëèçàöèÿ, 2016. Ôîòîãðàôèÿ © Þëèÿ Òàðàáàðèíà, Àðõè.ðóÄåëîâîé öåíòð íà óëèöå Êðàñèíà; ïèëîíû ïåðåä âõîäîì. ÒÏÎ «Ðåçåðâ», ðåàëèçàöèÿ, 2016. Ôîòîãðàôèÿ © Þëèÿ Òàðàáàðèíà, Àðõè.ðóÄåëîâîé öåíòð íà óëèöå Êðàñèíà. ÒÏÎ «Ðåçåðâ», ðåàëèçàöèÿ, 2016. Ôîòîãðàôèÿ © Þëèÿ Òàðàáàðèíà, Àðõè.ðóÄåëîâîé öåíòð íà óëèöå Êðàñèíà. ÒÏÎ «Ðåçåðâ», ðåàëèçàöèÿ, 2016. Ôîòîãðàôèÿ © Þëèÿ Òàðàáàðèíà, Àðõè.ðóÄåëîâîé öåíòð íà óëèöå Êðàñèíà; âèä ñî ñòîðîíû Çîîëîãè÷åñêîé óëèöû. ÒÏÎ «Ðåçåðâ», ðåàëèçàöèÿ, 2016. Ôîòîãðàôèÿ © Þëèÿ Òàðàáàðèíà, Àðõè.ðóÄåëîâîé öåíòð íà óëèöå Êðàñèíà. ÒÏÎ «Ðåçåðâ», ðåàëèçàöèÿ, 2016. Ôîòîãðàôèÿ © Þëèÿ Òàðàáàðèíà, Àðõè.ðóÄåëîâîé öåíòð íà óëèöå Êðàñèíà; óãî-âîñòî÷íûé óãîë, îáðàùåííûé ê Ñàäîâîìó êîëüöó. ÒÏÎ «Ðåçåðâ», ðåàëèçàöèÿ, 2016. Ôîòîãðàôèÿ © Þëèÿ Òàðàáàðèíà, Àðõè.ðóÄåëîâîé öåíòð íà óëèöå Êðàñèíà. ÒÏÎ «Ðåçåðâ», ðåàëèçàöèÿ, 2016. Ôîòîãðàôèÿ © Þëèÿ Òàðàáàðèíà, Àðõè.ðóÄåëîâîé öåíòð íà óëèöå Êðàñèíà; âõîä è ôðàãìåíò êîíñîëè ïåðåä íèì. ÒÏÎ «Ðåçåðâ», ðåàëèçàöèÿ, 2016. Ôîòîãðàôèÿ © Þëèÿ Òàðàáàðèíà, Àðõè.ðóÄåëîâîé öåíòð íà óëèöå Êðàñèíà; äâîðîâûé ôàñàä. ÒÏÎ «Ðåçåðâ», ðåàëèçàöèÿ, 2016. Ôîòîãðàôèÿ © Þëèÿ Òàðàáàðèíà, Àðõè.ðóÄåëîâîé öåíòð íà óëèöå Êðàñèíà; äâîðîâûé ôàñàä. ÒÏÎ «Ðåçåðâ», ðåàëèçàöèÿ, 2016. Ôîòîãðàôèÿ © Þëèÿ Òàðàáàðèíà, Àðõè.ðóÄåëîâîé öåíòð íà óëèöå Êðàñèíà; äâîðîâûé ôàñàä. ÒÏÎ «Ðåçåðâ», ðåàëèçàöèÿ, 2016. Ôîòîãðàôèÿ © Þëèÿ Òàðàáàðèíà, Àðõè.ðóÄåëîâîé öåíòð íà óëèöå Êðàñèíà; âèä èç äâîðà íà çäàíèå Áèîìåäà çèìîé. ÒÏÎ «Ðåçåðâ», ðåàëèçàöèÿ, 2016. Ôîòîãðàôèÿ © Þëèÿ Òàðàáàðèíà, Àðõè.ðóÄåëîâîé öåíòð íà óëèöå Êðàñèíà; âèä èç äâîðà íà çäàíèå Áèîìåäà îñåíüþ. ÒÏÎ «Ðåçåðâ», ðåàëèçàöèÿ, 2016. Ôîòîãðàôèÿ © Þëèÿ Òàðàáàðèíà, Àðõè.ðóÄåëîâîé öåíòð íà óëèöå Êðàñèíà; òðåóãîëüíûå ïèëîíû äâîðîâîãî ôàñàäà. ÒÏÎ «Ðåçåðâ», ðåàëèçàöèÿ, 2016. Ôîòîãðàôèÿ © Þëèÿ Òàðàáàðèíà, Àðõè.ðóÄåëîâîé öåíòð íà óëèöå Êðàñèíà; òðåóãîëüíûå ïèëîíû äâîðîâîãî ôàñàäà. ÒÏÎ «Ðåçåðâ», ðåàëèçàöèÿ, 2016. Ôîòîãðàôèÿ © Þëèÿ Òàðàáàðèíà, Àðõè.ðóÄåëîâîé öåíòð íà óëèöå Êðàñèíà. Ïðîåêò, 2013-2014 © ÒÏÎ «Ðåçåðâ»Äåëîâîé öåíòð íà óëèöå Êðàñèíà. Ïðîåêò, 2013-2014 © ÒÏÎ «Ðåçåðâ»Äåëîâîé öåíòð íà óëèöå Êðàñèíà. Ïðîåêò, 2013-2014 © ÒÏÎ «Ðåçåðâ»Äåëîâîé öåíòð íà óëèöå Êðàñèíà. Ïðîåêò, 2013-2014 © ÒÏÎ «Ðåçåðâ»Äåëîâîé öåíòð íà óëèöå Êðàñèíà. Ãåíïëàí © ÒÏÎ «Ðåçåðâ»Äåëîâîé öåíòð íà óëèöå Êðàñèíà. Ãåíïëàí ñ àíàëèçîì ñèòóàöèè © ÒÏÎ «Ðåçåðâ»Äåëîâîé öåíòð íà óëèöå Êðàñèíà. Ïëàí -1 ýòàæà © ÒÏÎ «Ðåçåðâ»Äåëîâîé öåíòð íà óëèöå Êðàñèíà. Ïëàí 1 ýòàæà © ÒÏÎ «Ðåçåðâ»Äåëîâîé öåíòð íà óëèöå Êðàñèíà. Ïëàí 2 ýòàæà © ÒÏÎ «Ðåçåðâ»Äåëîâîé öåíòð íà óëèöå Êðàñèíà. Ïëàí 3 ýòàæà © ÒÏÎ «Ðåçåðâ»Äåëîâîé öåíòð íà óëèöå Êðàñèíà. Ïëàí 4 ýòàæà © ÒÏÎ «Ðåçåðâ»Äåëîâîé öåíòð íà óëèöå Êðàñèíà. Ïëàí 8 ýòàæà © ÒÏÎ «Ðåçåðâ»Äåëîâîé öåíòð íà óëèöå Êðàñèíà. Ïëàí êðîâëè © ÒÏÎ «Ðåçåðâ»Äåëîâîé öåíòð íà óëèöå Êðàñèíà. Ðàçðåç © ÒÏÎ «Ðåçåðâ»Äåëîâîé öåíòð íà óëèöå Êðàñèíà. Ðàçðåç © ÒÏÎ «Ðåçåðâ»Äåëîâîé öåíòð íà óëèöå Êðàñèíà. Ðàçðåç © ÒÏÎ «Ðåçåðâ»
客服
消息
收藏
下载
最近
























































