查看完整案例

收藏

下载

翻译
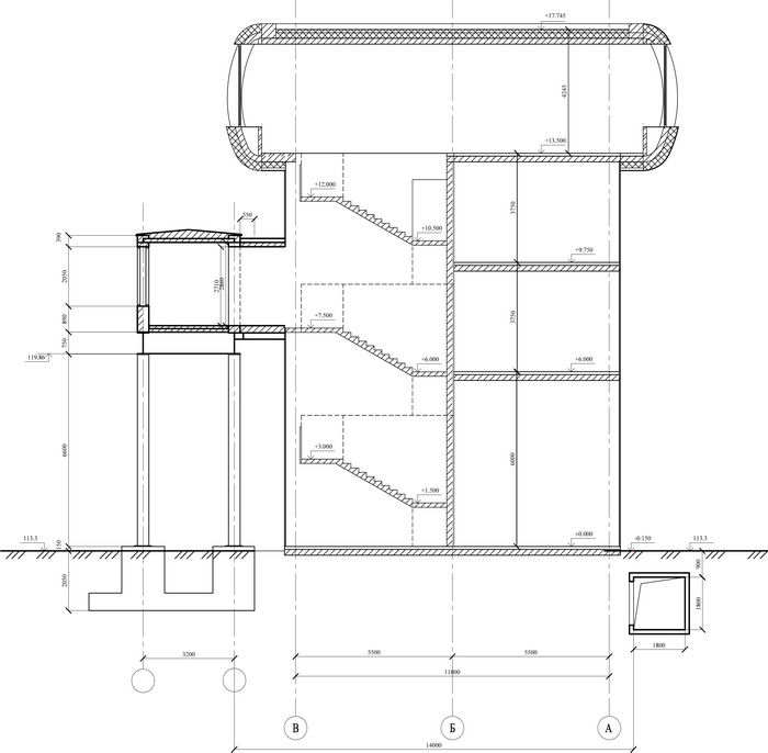
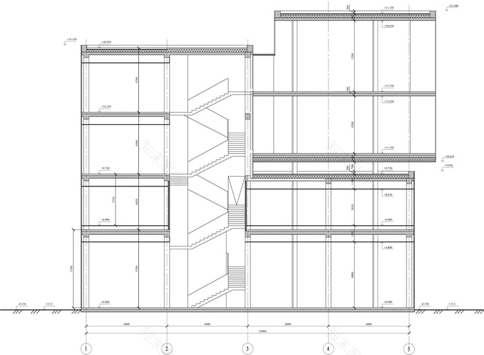
Ïðîåêò çäàíèÿ äèñïåò÷åðñêîãî öåíòðà â ã. Àêñó, Êàçàõñòàí © Arch groupÏðîåêò çäàíèÿ äèñïåò÷åðñêîãî öåíòðà â ã. Àêñó, Êàçàõñòàíèíôîðìàöèÿ:ñòàòóñïðîåêòäàòû20102010ìåñòîÊàçàõñòàíÀêñóôóíêöèÿÀäìèíèñòðàòèâíî-îôèñíûé/îôèñíîå çäàíèåîáùàÿ ïëîùàäü2 500 ì2ïàðòíåðû, çàêàç÷èêè, ñìåæíèêèEmerson Process Management PWSÏðîåêò çäàíèÿ äèñïåò÷åðñêîãî öåíòðà â ã. Àêñó, Êàçàõñòàí © Arch groupÏðîåêò çäàíèÿ äèñïåò÷åðñêîãî öåíòðà â ã. Àêñó, Êàçàõñòàí © Arch groupîïèñàíèå:Âàðèàíò 1Îñíîâíîå ïîæåëàíèå çàêàç÷èêà – çäàíèå äîëæíî îòâå÷àòü ñîâðåìåííûì òåíäåíöèÿì â àðõèòåêòóðå è èìåòü âûðàæåííûé èíäèâèäóàëüíûé îáëèê. äàííîé êîíöåïöèè àâòîðû ïðîåêòà ïðåäëàãàþò ïîäõîä ê àðõèòåêòóðíîìó ðåøåíèþ íå ñòîëüêî íà óðîâíå âûáîðà ìàòåðèàëà îòäåëêè ôàñàäà, ñêîëüêî íà îáúåêòíî-ñìûñëîâîì óðîâíå. Ýòî îçíà÷àåò, ÷òî àðõèòåêòîðû ìàêñèìàëüíî âûÿâëÿþò â àðõèòåêòóðå îñîáåííîñòè íàçíà÷åíèÿ çäàíèÿ. Îñíîâíûì ñìûñëîâûì ÿäðîì ÿâëÿþòñÿ äèñïåò÷åðñêèå ïîìåùåíèÿ, ïîýòîìó àðõèòåêòîðû õîòÿò âûäåëèòü èõ â ñàìîñòîÿòåëüíûé, âûðàçèòåëüíûé îáúåêò, êîòîðûé ñòàíåò ãëàâíûì óçíàâàåìûì ñèìâîëîì, ãëàâíûì àðõèòåêòóðíûì ýëåìåíòîì. Îíè îáúåäèíÿþò äâà äèñïåò÷åðñêèõ ïîìåùåíèÿ íà 3-ì è 4-ì ýòàæàõ â îäèí êóáè÷åñêèé ñòåêëÿííûé îáúåì è ñëåãêà ïîâîðà÷èâàþò åãî, ÷òîáû ñîçäàòü ýôôåêò åãî îòîðâàííîñòè îò îñíîâíîãî ôàñàäà è ñäåëàòü åãî õîðîøî âèäèìûì ïðè âçãëÿäå âäîëü ôàñàäà îò âõîäà.Îãðàæäàþùèå êîíñòðóêöèè êóáà – äâóõêàìåðíûå ñòåêëîïàêåòû èç òîíèðîâàííûõ ñòåêîë ñ ýíåðãîñáåðåãàþùèì ïîêðûòèåì. Îñòåêëåíèå áåçèìïîñòíîå, äëÿ ïðèäàíèÿ êóáó ýôôåêòà öåëüíîñòè. Çà ñòåêëàìè ïðèìåíÿþòñÿ ñîëíöåçàùèòíûå ñèñòåìû äâóõ òèïîâ: æàëþçè è áëîêèðóþùèå ñâåò ðîëë-øòîðû ñ äèñòàíöèîííûì óïðàâëåíèåì.  ïîêðûòèè äåëàåòñÿ ñâåòîâîé ôîíàðü ñ òåì æå ñòåêëîì, ÷òî íà ñòåíàõ.Âõîäíàÿ ãðóïïà, âñòðå÷àþùàÿ íàñ ïðè äâèæåíèè ê çäàíèþ, ðàñïîëîæåíà íà óãëó è ïðåäñòàâëÿåò ñîáîé òàêæå êóáè÷åñêèé ñòåêëÿííûé îáúåì, ïîâåðíóòûé íàâñòðå÷ó äâèæåíèþ. Ýòîò êóá ñäåëàí ïîëíîñòüþ èç ìàòîâîãî òðèïëåêñà è ÿâëÿåòñÿ õîëîäíûì, íåîòàïëèâàåìûì òàìáóðîì ïåðåä âõîäîì, îáîðóäîâàííûì ãðÿçåçàùèòíîé ðåøåòêîé. Åãî âûñîòà – îäèí ýòàæ.Îñíîâíîé ôàñàä ðåøåí öåëüíî, ãëàâíûé àðõèòåêòóðíûé ýëåìåíò – ñîëíöåçàùèòíàÿ ôàñàäíàÿ ñèñòåìà, êîòîðàÿ ïðåäñòàâëÿåò ñîáîé áîëüøèå àëþìèíèåâûå ëàìåëè øèðèíîé îêîëî 30 ñì. Çà íèìè – ôàñàä èç äâóõêàìåðíûõ ñòåêëîïàêåòîâ ñ ýíåðãîñáåðåãàþùèì ñòåêëîì.Òàêèì îáðàçîì, çäàíèå ñîñòîèò èç îñíîâíîãî ïðÿìîóãîëüíîãî îáúåìà, èç êîòîðîãî êàê áû âûðåçàëè äâà ñòåêëÿííûõ êóáà â äâóõ ïðîòèâîïîëîæíûõ óãëàõ. Îäèí êóá – âõîäíàÿ ãðóïïà, äðóãîé – äèñïåò÷åðñêèé áëîê. Îñíîâíîé îáúåì – íåéòðàëüíûé, ñïîêîéíûé, êóáû – îäèí ñâåòëûé, èç ìàòîâîãî ñòåêëà, äðóãîé òåìíûé, ïî÷òè ÷åðíûé. Ïîëó÷àåòñÿ ÷åòêàÿ, ïîíÿòíàÿ ñòðóêòóðà ñ óçíàâàåìûìè, âûðàçèòåëüíûìè ýëåìåíòàìè.Âàðèàíò 2 ýòîì âàðèàíòå àðõèòåêòîðû ïðåäëàãàþò ñäåëàòü çäàíèå ìàêñèìàëüíî ëåãêèì â âîñïðèÿòèè ñ óðîâíÿ çåìëè, äëÿ ÷åãî èñïîëüçóåì ïðèåì, êîòîðûé óæå èìååò ìåñòî íà äàííîì ó÷àñòêå: çäàíèå íà îïîðàõ. Íèæíÿÿ ÷àñòü çäàíèÿ ïðè ýòîì äåëàåòñÿ âèçóàëüíî ìàêñèìàëüíî ëåãêîé çà ñ÷åò ïðèìåíåíèÿ ñòåêëà è ñêðóãëåíèÿ óãëîâ, à îñíîâíîé ñìûñëîâîé, àðõèòåêòóðíûé îáúåì, âìåùàþùèé îáà äèñïåò÷åðñêèõ çàëà, çàâèñàåò íàä çåìëåé, ÷àñòè÷íî îïèðàÿñü íà îïîðû-íîãè. Òî åñòü çäàíèå â öåëîì âûãëÿäèò êàê ëåãêèé, àìîðôíûé, ñåðåáðèñòûé îáúåêò íà äëèííûõ, òîíêèõ íîãàõ, à îñíîâíàÿ ìàññà çäàíèÿ ñòàíîâèòñÿ âòîðè÷íîé, ôîíîâîé âñòàâêîé ìåæäó ýòèì îáúåêòîì è çåìëåé. Òàêîé ïðèåì õîðîøî ðàáîòàåò íà êîíòðàñòå ñ ñóùåñòâóþùåé ãðóáîé, ìàññèâíîé ïðîìûøëåííîé çàñòðîéêîé. Çäàíèå êàê áû ïàðèò íàä ó÷àñòêîì è ïðè ýòîì î÷åíü ãàðìîíè÷íî ñî÷åòàåòñÿ ñ ñóùåñòâóþùèì ïåðåõîäîì, êîòîðûé òîæå ÿâëÿåòñÿ ëåãêèì îáúåêòîì íà íîãàõ, íî ðåøåííûì â ñòèëèñòèêå îêðóæàþùåé çàñòðîéêè.Àìîðôíûé îáúåêò èìååò ôàñàä èç ëèñòîâîé îöèíêîâàííîé ñòàëè ïî ïðèíöèïó îáøèâêè êðîâåëü. Ýòîò ïðèåì î÷åíü øèðîêî ñòàë ïðèìåíÿòüñÿ â ìèðîâîé àðõèòåêòóðå â ñëó÷àÿõ, êîãäà íóæíî ñîçäàòü ñëîæíóþ òðåõìåðíóþ ïîâåðõíîñòü ïðè îïòèìàëüíîé ñòîèìîñòè. Îñòàëüíîé ôàñàä ïðåäñòàâëÿåò ñîáîé âèòðàæíóþ ñèñòåìó ñ ýíåðãîñáåðåãàþùèì ñòåêëîì è èìååò ñîëíöåçàùèòíûå ýëåìåíòû â âèäå ãîðèçîíòàëüíûõ äåðåâÿííûõ áðóñüåâ. Âõîä â çäàíèå ðàñïîëîæåí, êàê è â ïåðâîì âàðèàíòå, íà óãëó.Ïðîåêò çäàíèÿ äèñïåò÷åðñêîãî öåíòðà â ã. Àêñó, Êàçàõñòàí © Arch groupÏðîåêò çäàíèÿ äèñïåò÷åðñêîãî öåíòðà â ã. Àêñó, Êàçàõñòàí © Arch groupÏðîåêò çäàíèÿ äèñïåò÷åðñêîãî öåíòðà â ã. Àêñó, Êàçàõñòàí © Arch groupÏðîåêò çäàíèÿ äèñïåò÷åðñêîãî öåíòðà â ã. Àêñó, Êàçàõñòàí © Arch group
客服
消息
收藏
下载
最近









