查看完整案例

收藏

下载

翻译
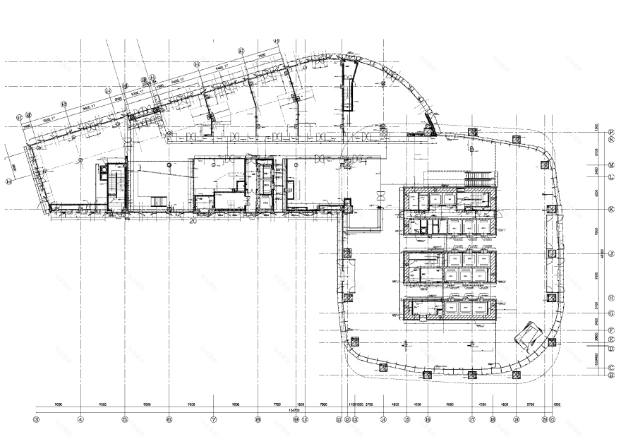
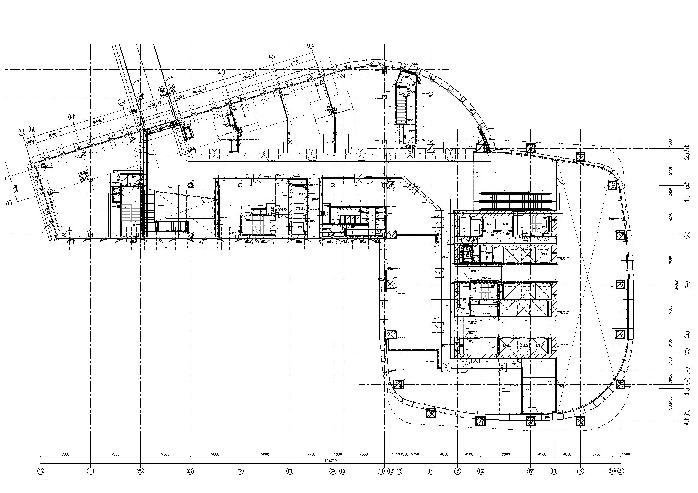
Îôèñíàÿ áàøíÿ Hongkou Soho © Jerry YinÎôèñíàÿ áàøíÿ Hongkou Soho/ Hongkou Sohoèíôîðìàöèÿ:ñòàòóñïðîåêòäàòû11.2011/201210.2015ìåñòîÊèòàé,ØàíõàéôóíêöèÿÀäìèíèñòðàòèâíî-îôèñíûé/îôèñíîå çäàíèåòåãèÏåðôîðèðîâàííûå ïàíåëè è ñåòêà,Âûñîòíîå ñòðîèòåëüñòâî,Àòðèóì,Ôàñàä,Ìåòàëëîáùàÿ ïëîùàäü95 000 ì2âûñîòà133,5ýòàæíîñòü29Îôèñíàÿ áàøíÿ Hongkou Soho © Jerry YinÀðõè.ðó îá ýòîì îáúåêòå:27.07.2016Àííà Ñòàðîñòèíà. Êîêåòëèâàÿ þá÷îíêà öåíòðå Øàíõàÿ çàâåðøåíî ñòðîèòåëüñòâî îôèñíîãî çäàíèÿ ïî ïðîåêòó Êåíãî Êóìû.÷èòàòü äàëüøåÎôèñíàÿ áàøíÿ Hongkou Soho © Jerry YinÎôèñíàÿ áàøíÿ Hongkou Soho © Jerry YinÎôèñíàÿ áàøíÿ Hongkou Soho © Jerry YinÎôèñíàÿ áàøíÿ Hongkou Soho © Jerry YinÎôèñíàÿ áàøíÿ Hongkou Soho © Jerry YinÎôèñíàÿ áàøíÿ Hongkou Soho © Jerry YinÎôèñíàÿ áàøíÿ Hongkou Soho © Jerry YinÎôèñíàÿ áàøíÿ Hongkou Soho © Jerry YinÎôèñíàÿ áàøíÿ Hongkou Soho © Jerry YinÎôèñíàÿ áàøíÿ Hongkou Soho © Jerry YinÎôèñíàÿ áàøíÿ Hongkou Soho © Jerry YinÎôèñíàÿ áàøíÿ Hongkou Soho © Jerry YinÎôèñíàÿ áàøíÿ Hongkou Soho © Jerry YinÎôèñíàÿ áàøíÿ Hongkou Soho © Jerry YinÎôèñíàÿ áàøíÿ Hongkou Soho © Jerry YinÎôèñíàÿ áàøíÿ Hongkou Soho © Jerry YinÎôèñíàÿ áàøíÿ Hongkou Soho © Jerry YinÎôèñíàÿ áàøíÿ Hongkou Soho © Jerry YinÎôèñíàÿ áàøíÿ Hongkou Soho © Jerry YinÎôèñíàÿ áàøíÿ Hongkou Soho © Jerry YinÎôèñíàÿ áàøíÿ Hongkou Soho © Jerry YinÎôèñíàÿ áàøíÿ Hongkou Soho © Jerry YinÎôèñíàÿ áàøíÿ Hongkou Soho © Jerry YinÎôèñíàÿ áàøíÿ Hongkou Soho © Jerry YinÎôèñíàÿ áàøíÿ Hongkou Soho © Jerry YinÎôèñíàÿ áàøíÿ Hongkou Soho © Jerry YinÎôèñíàÿ áàøíÿ Hongkou Soho © Jerry YinÎôèñíàÿ áàøíÿ Hongkou Soho © Jerry YinÎôèñíàÿ áàøíÿ Hongkou Soho © Jerry YinÎôèñíàÿ áàøíÿ Hongkou Soho © Jerry YinÎôèñíàÿ áàøíÿ Hongkou Soho © Jerry YinÎôèñíàÿ áàøíÿ Hongkou Soho © Jerry YinÎôèñíàÿ áàøíÿ Hongkou Soho © Jerry YinÎôèñíàÿ áàøíÿ Hongkou Soho © Jerry YinÎôèñíàÿ áàøíÿ Hongkou Soho © Jerry YinÎôèñíàÿ áàøíÿ Hongkou Soho © Jerry YinÎôèñíàÿ áàøíÿ Hongkou Soho © Jerry YinÎôèñíàÿ áàøíÿ Hongkou Soho © Jerry YinÎôèñíàÿ áàøíÿ Hongkou Soho © Jerry YinÎôèñíàÿ áàøíÿ Hongkou Soho © Jerry YinÎôèñíàÿ áàøíÿ Hongkou Soho © Jerry YinÎôèñíàÿ áàøíÿ Hongkou Soho © Jerry YinÎôèñíàÿ áàøíÿ Hongkou Soho © Jerry YinÎôèñíàÿ áàøíÿ Hongkou Soho © Jerry YinÎôèñíàÿ áàøíÿ Hongkou Soho © Jerry YinÎôèñíàÿ áàøíÿ Hongkou Soho © Jerry YinÎôèñíàÿ áàøíÿ Hongkou Soho © Jerry YinÎôèñíàÿ áàøíÿ Hongkou Soho © Jerry YinÎôèñíàÿ áàøíÿ Hongkou Soho © Jerry YinÎôèñíàÿ áàøíÿ Hongkou Soho © Jerry YinÎôèñíàÿ áàøíÿ Hongkou Soho © Jerry YinÎôèñíàÿ áàøíÿ Hongkou Soho © Jerry YinÎôèñíàÿ áàøíÿ Hongkou Soho © Jerry YinÎôèñíàÿ áàøíÿ Hongkou Soho © Jerry YinÎôèñíàÿ áàøíÿ Hongkou Soho © Jerry YinÎôèñíàÿ áàøíÿ Hongkou Soho © Jerry YinÎôèñíàÿ áàøíÿ Hongkou Soho © Jerry YinÎôèñíàÿ áàøíÿ Hongkou Soho © Jerry YinÎôèñíàÿ áàøíÿ Hongkou Soho © Jerry YinÎôèñíàÿ áàøíÿ Hongkou Soho © Jerry YinÎôèñíàÿ áàøíÿ Hongkou Soho © Jerry YinÎôèñíàÿ áàøíÿ Hongkou Soho © Jerry YinÎôèñíàÿ áàøíÿ Hongkou Soho © Jerry YinÎôèñíàÿ áàøíÿ Hongkou Soho © Kenta HasegawàÎôèñíàÿ áàøíÿ Hongkou Soho © Kenta HasegawàÎôèñíàÿ áàøíÿ Hongkou Soho © Kenta HasegawàÎôèñíàÿ áàøíÿ Hongkou Soho © Kenta HasegawàÎôèñíàÿ áàøíÿ Hongkou Soho © Kenta HasegawàÎôèñíàÿ áàøíÿ Hongkou Soho © Kenta HasegawàÎôèñíàÿ áàøíÿ Hongkou Soho © Kenta HasegawàÎôèñíàÿ áàøíÿ Hongkou Soho © Kenta HasegawàÎôèñíàÿ áàøíÿ Hongkou Soho © Kenta HasegawàÎôèñíàÿ áàøíÿ Hongkou Soho © Kengo Kuma & AssociatesÎôèñíàÿ áàøíÿ Hongkou Soho © Kengo Kuma & AssociatesÎôèñíàÿ áàøíÿ Hongkou Soho © Kengo Kuma & AssociatesÎôèñíàÿ áàøíÿ Hongkou Soho © Kengo Kuma & AssociatesÎôèñíàÿ áàøíÿ Hongkou Soho © Kengo Kuma & AssociatesÎôèñíàÿ áàøíÿ Hongkou Soho © Kengo Kuma & AssociatesÎôèñíàÿ áàøíÿ Hongkou Soho © Kengo Kuma & AssociatesÎôèñíàÿ áàøíÿ Hongkou Soho © Kengo Kuma & AssociatesÎôèñíàÿ áàøíÿ Hongkou Soho © Kengo Kuma & AssociatesÎôèñíàÿ áàøíÿ Hongkou Soho © Kengo Kuma & AssociatesÎôèñíàÿ áàøíÿ Hongkou Soho © Kengo Kuma & AssociatesÎôèñíàÿ áàøíÿ Hongkou Soho © Kengo Kuma & AssociatesÎôèñíàÿ áàøíÿ Hongkou Soho © Kengo Kuma & Associates
客服
消息
收藏
下载
最近

























































































