查看完整案例

收藏

下载

翻译
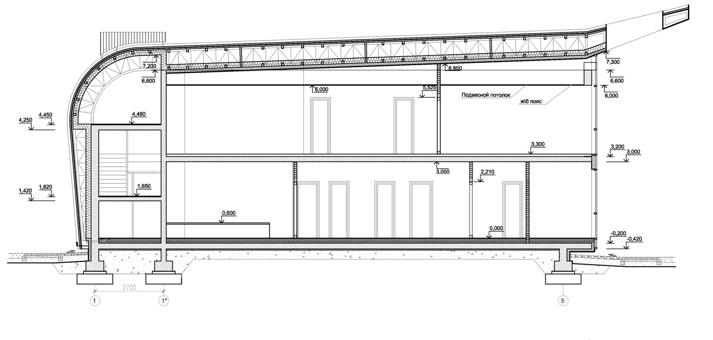
Çäàíèå ÊÏÏ â ïîñåëêå «Îëèìïèéñêàÿ äåðåâíÿ Íîâîãîðñê». Ïîñòðîéêà, 2013 © ÀðõèòåêòóðèóìÇäàíèå ÊÏÏ è ñëóæáû ýêñïëóàòàöèè ïîñåëêà «Îëèìïèéñêàÿ äåðåâíÿ Íîâîãîðñê»/ The checkpoint and operation service building of Novogorsk Olympic Villageèíôîðìàöèÿ:ñòàòóñðåàëèçîâàíîäàòû20122013ìåñòîÐîññèÿ,ÌîñêâàôóíêöèÿÀäìèíèñòðàòèâíî-îôèñíûé/àäìèíèñòðàòèâíûé êîìïëåêñÇäàíèå ÊÏÏ â ïîñåëêå «Îëèìïèéñêàÿ äåðåâíÿ Íîâîãîðñê». Ïîñòðîéêà, 2013 © ÀðõèòåêòóðèóìÀðõè.ðó îá ýòîì îáúåêòå:16.05.2016Ëèëèÿ Àðîíîâà. Âëàäèìèð Áèíäåìàí: «Öåëü óðáàíèñòà ïîçèòèâíî ïîâëèÿòü íà îáðàç æèçíè ëþäåé»Ðàçãîâîð ñ ðóêîâîäèòåëåì áþðî «Àðõèòåêòóðèóì» î ãðàäîñòðîèòåëüíîé ñèòóàöèè â Ïîäìîñêîâüå, ðåãèîíàëüíîé ñïåöèôèêå êâàðòàëüíîé ïëàíèðîâêè è ïîìîùè ïðèðîäû â äåëå ãóìàíèçàöèè çàãîðîäíîãî ñòðîèòåëüñòâà.Archi.ru: Ïî÷òè äâà ãîäà ïðîøëî ñ ìîìåíòà þáèëåéíîé âûñòàâêè, ïîñâÿùåííîé äåñÿòèëåòèþ Àðõèòåêòóðèóìà . Íàä ÷åì âû ðàáîòàåòå ñåé÷àñ? Âëàäèìèð Áèíäåìàí: Ñåãîäíÿ ìû çàíèìàåìñÿ ãëàâíûì îáðàçîì êîíöåïöèÿìè è äîñòðàèâàåì Íîâîãîðñêèé êëàñòåð.  ñâÿçè...÷èòàòü äàëüøåäðóãèå òåêñòû Àðõè.ðó:07.08.2013Àííà Ìàðòîâèöêàÿ. Äîì íà ïîâîðîòåÇäàíèå ÊÏÏ â ïîñåëêå «Îëèìïèéñêàÿ äåðåâíÿ Íîâîãîðñê». Ïîñòðîéêà, 2013 © ÀðõèòåêòóðèóìÇäàíèå ÊÏÏ â ïîñåëêå «Îëèìïèéñêàÿ äåðåâíÿ Íîâîãîðñê». Ïîñòðîéêà, 2013 © ÀðõèòåêòóðèóìÇäàíèå ÊÏÏ â ïîñåëêå «Îëèìïèéñêàÿ äåðåâíÿ Íîâîãîðñê». Ïîñòðîéêà, 2013 © ÀðõèòåêòóðèóìÇäàíèå ÊÏÏ â ïîñåëêå «Îëèìïèéñêàÿ äåðåâíÿ Íîâîãîðñê». Ïîñòðîéêà, 2013 © ÀðõèòåêòóðèóìÇäàíèå ÊÏÏ â ïîñåëêå «Îëèìïèéñêàÿ äåðåâíÿ Íîâîãîðñê». Ïîñòðîéêà, 2013 © ÀðõèòåêòóðèóìÇäàíèå ÊÏÏ â ïîñåëêå «Îëèìïèéñêàÿ äåðåâíÿ Íîâîãîðñê». Ïîñòðîéêà, 2013 © ÀðõèòåêòóðèóìÇäàíèå ÊÏÏ â ïîñåëêå «Îëèìïèéñêàÿ äåðåâíÿ Íîâîãîðñê». Ïîñòðîéêà, 2013 © ÀðõèòåêòóðèóìÇäàíèå ÊÏÏ â ïîñåëêå «Îëèìïèéñêàÿ äåðåâíÿ Íîâîãîðñê». Ïîñòðîéêà, 2013 © ÀðõèòåêòóðèóìÇäàíèå ÊÏÏ â ïîñåëêå «Îëèìïèéñêàÿ äåðåâíÿ Íîâîãîðñê». Ïîñòðîéêà, 2013 © ÀðõèòåêòóðèóìÇäàíèå ÊÏÏ â ïîñåëêå «Îëèìïèéñêàÿ äåðåâíÿ Íîâîãîðñê». Ïîñòðîéêà, 2013 © ÀðõèòåêòóðèóìÇäàíèå ÊÏÏ â ïîñåëêå «Îëèìïèéñêàÿ äåðåâíÿ Íîâîãîðñê». Ïëàí © ÀðõèòåêòóðèóìÇäàíèå ÊÏÏ â ïîñåëêå «Îëèìïèéñêàÿ äåðåâíÿ Íîâîãîðñê». Ïëàí © ÀðõèòåêòóðèóìÇäàíèå ÊÏÏ â ïîñåëêå «Îëèìïèéñêàÿ äåðåâíÿ Íîâîãîðñê». Ðàçðåç © Àðõèòåêòóðèóì
客服
消息
收藏
下载
最近

















