查看完整案例

收藏

下载

翻译
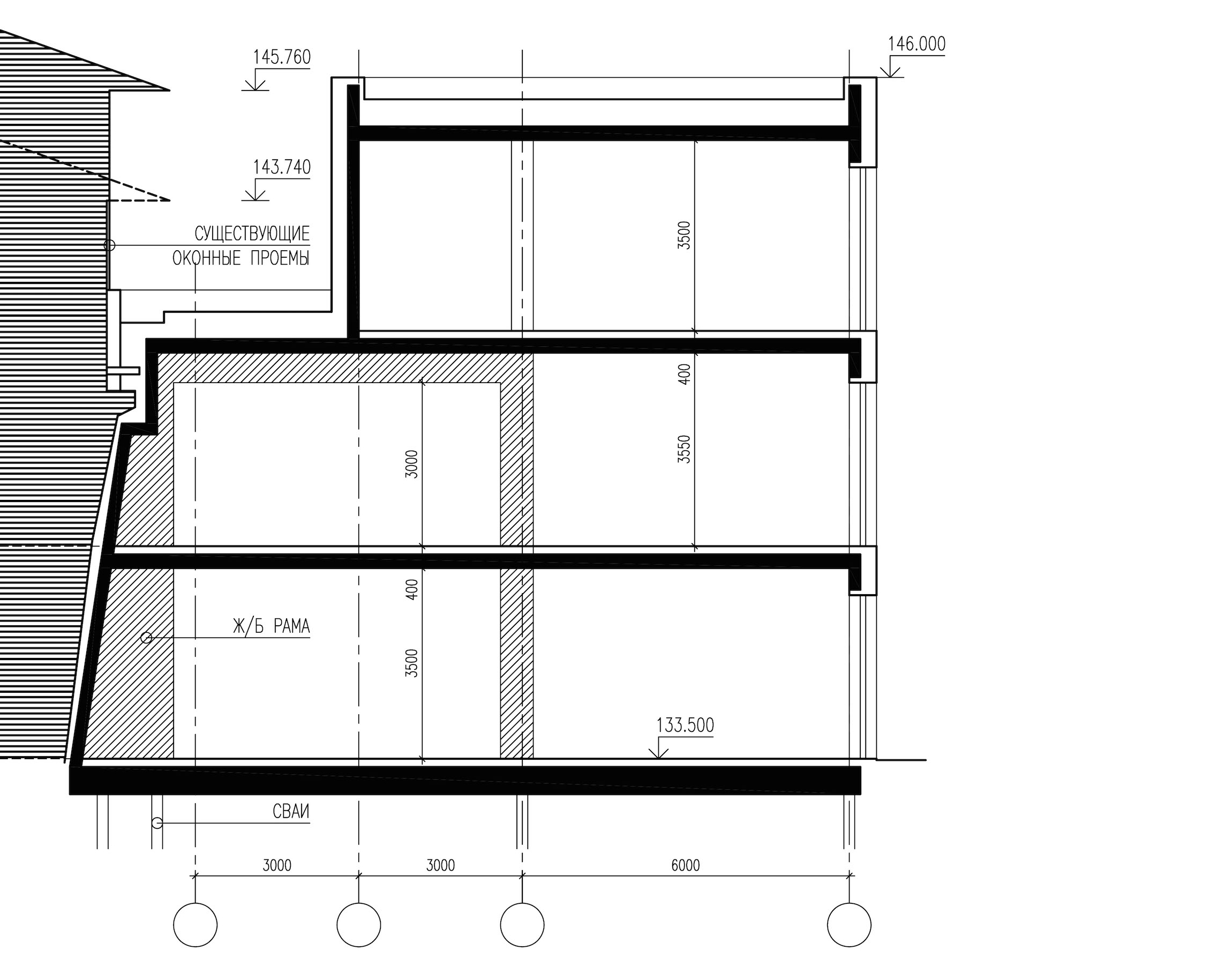
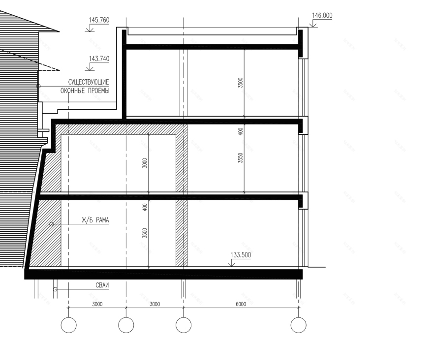
Àðìà: ãëàâíûé âúåçä. Âàðèàíò 1. Âèçóàëèçàöèÿ, 2015 © Ñåðãåé Êèñåëåâ è ÏàðòíåðûÀðìà: ãëàâíûé âúåçäèíôîðìàöèÿ:ñòàòóñïðîåêòäàòû2015ìåñòîÐîññèÿ,ÌîñêâàÍèæíèé Ñóñàëüíûé ïåðåóëîê, ä. 5ôóíêöèÿÀäìèíèñòðàòèâíî-îôèñíûé/îôèñíûé êîìïëåêñäðóãèå îáúåêòû2015Àðìà: ãåíåðàëüíûé ïëàí2015Àðìà: áëàãîóñòðîéñòâî òåððèòîðèè2015Àðìà: áëàãîóñòðîéñòâî ïåøåõîäíîé çîíû Íèæíåãî Ñóñàëüíîãî ïåðåóëêà2016Àðìà: êîðïóñà 1 è 22015Àðìà: êîðïóñ 32014Àðìà: êîðïóñà 4, 5, 5à2015Àðìà: êîðïóñ 62014Àðìà: êîðïóñ 7 (êîòåëüíàÿ)2015Àðìà: êîðïóñ 132013Àðìà: êîðïóñ 192015Àðìà: êîðïóñ 25Àðìà: ãëàâíûé âúåçä. Âàðèàíò 1. Âèçóàëèçàöèÿ, 2015 © Ñåðãåé Êèñåëåâ è ÏàðòíåðûÀðõè.ðó îá ýòîì îáúåêòå:08.04.2016Þëèÿ Òàðàáàðèíà. Àðìà: ðàñêðûòèå ïðîñòðàíñòâàÄåòàëüíî ðàññêàçûâàåì î òîì, ÷òî, êîãäà è êàê áûëî ñäåëàíî â íîâîì êðåàòèâíîì êëàñòåðå «Àðìà».Àêòèâíàÿ ñòàäèÿ ïðåâðàùåíèÿ çàâîäà Àðìà â ðàéîíå Êóðñêîãî âîêçàëà â êðåàòèâíûé êëàñòåð íà÷àëàñü â 2011 ãîäó, õîòÿ ðåìîíòû è ïðèâåäåíèå òåððèòîðèè â ïîðÿäîê ñòàðòîâàëè ñ ïðèõîäîì ïåðâûõ àðåíäàòîðîâ, â 2000-å ãîäû. Ñåé÷àñ òåððèòîðèÿ îòêðûòà ÷åðå...÷èòàòü äàëüøåÀðìà: ãëàâíûé âúåçä. Âàðèàíò 2. Âèçóàëèçàöèÿ, 2015 © Ñåðãåé Êèñåëåâ è ÏàðòíåðûÀðìà: ãëàâíûé âúåçä. Âàðèàíò 3. Âèçóàëèçàöèÿ, 2015 © Ñåðãåé Êèñåëåâ è ÏàðòíåðûÀðìà: ãëàâíûé âúåçä. Âàðèàíò 1. Âèçóàëèçàöèÿ, 2015 © Ñåðãåé Êèñåëåâ è ÏàðòíåðûÀðìà: ãëàâíûé âúåçä. Âàðèàíò 2. Âèçóàëèçàöèÿ, 2015 © Ñåðãåé Êèñåëåâ è ÏàðòíåðûÀðìà: ãëàâíûé âúåçä. Âèä ñ âûñîòû ïòè÷üåãî ïîëåòà. Âèçóàëèçàöèÿ, 2015 © Ñåðãåé Êèñåëåâ è ÏàðòíåðûÀðìà: ãëàâíûé âúåçä. Ôàñàä. Âèçóàëèçàöèÿ, 2015 © Ñåðãåé Êèñåëåâ è ÏàðòíåðûÀðìà: ãëàâíûé âúåçä. Ôàñàä © Ñåðãåé Êèñåëåâ è ÏàðòíåðûÀðìà: ãëàâíûé âúåçä. Ïëàí © Ñåðãåé Êèñåëåâ è ÏàðòíåðûÀðìà: ãëàâíûé âúåçä. Ïëàí © Ñåðãåé Êèñåëåâ è ÏàðòíåðûÀðìà: ãëàâíûé âúåçä. Ðàçðåç © Ñåðãåé Êèñåëåâ è ÏàðòíåðûÀðìà: ãëàâíûé âúåçä. Ðàçðåç © Ñåðãåé Êèñåëåâ è ÏàðòíåðûÀðìà: ãëàâíûé âúåçä. Ñèòóàöèîííûé ïëàí © Ñåðãåé Êèñåëåâ è Ïàðòíåðû
客服
消息
收藏
下载
最近
















