查看完整案例

收藏

下载

翻译
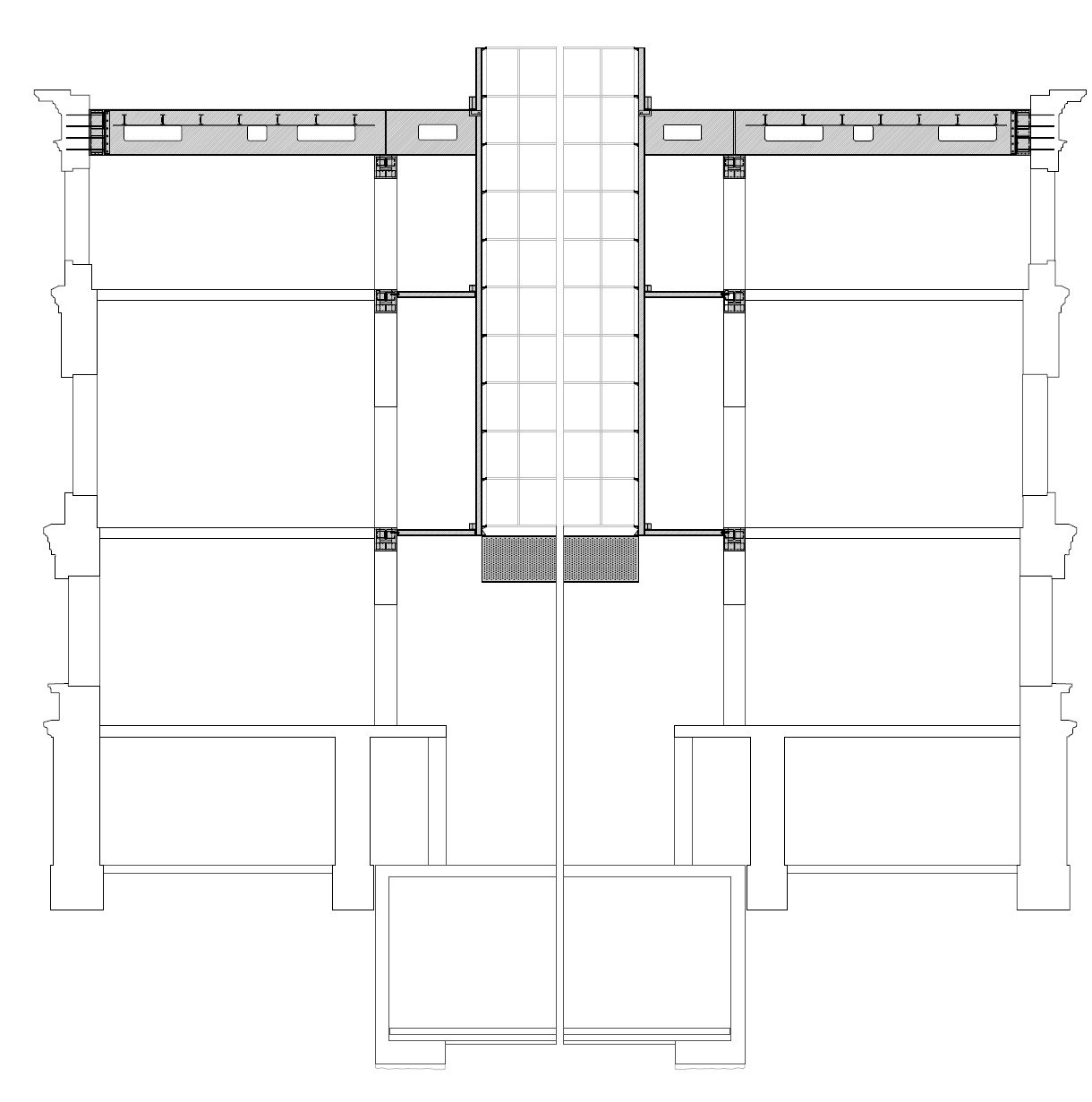
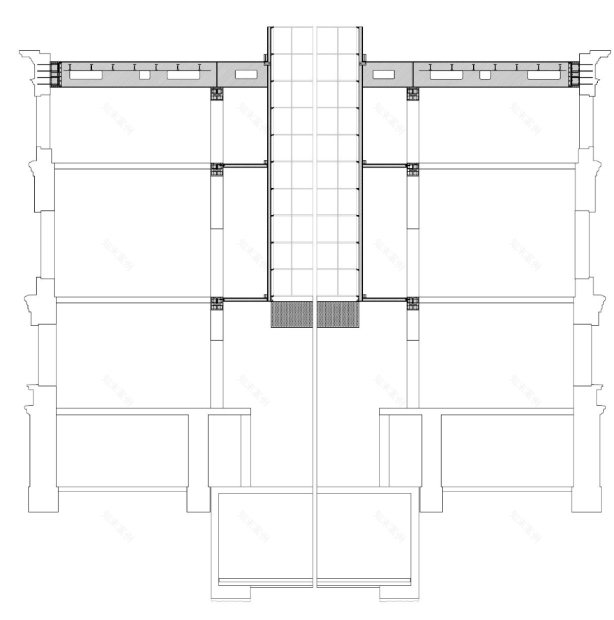
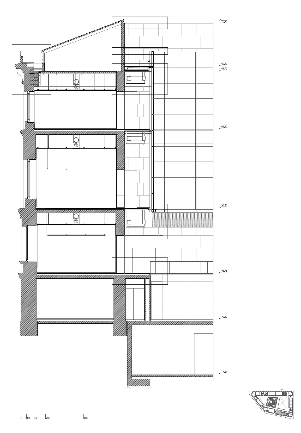
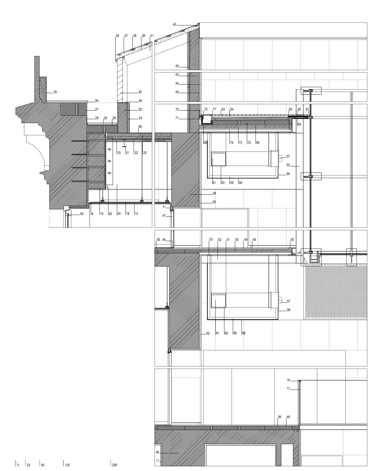
Ïàðëàìåíò ïðîâèíöèè Íàâàððà © José Manuel CutillasÏàðëàìåíò ïðîâèíöèè Íàâàððà/ Navarra Parliamentèíôîðìàöèÿ:ñòàòóñðåàëèçîâàíîäàòû2012ìåñòîÈñïàíèÿ,ÏàìïëîíàôóíêöèÿÀäìèíèñòðàòèâíî-îôèñíûé/àäìèíèñòðàòèâíûé êîìïëåêñòåãèÐåêîíñòðóêöèÿ è ðåñòàâðàöèÿ,Ñòåêëî,Áåòîí,Ïåðôîðèðîâàííûå ïàíåëè è ñåòêà,Ïîäçåìíûå ïðîñòðàíñòâà,Âíóòðåííèé äâîðîáùàÿ ïëîùàäü11062 ì2Ïàðëàìåíò ïðîâèíöèè Íàâàððà © José Manuel CutillasÀðõè.ðó îá ýòîì îáúåêòå:16.05.2013Ïàðëàìåíò â ñóäåOtxotorena Arquitectos çàâåðøèëè áîëåå ÷åì 10-ëåòíþþ ðàáîòó íàä çäàíèåì Ïàðëàìåíòà ïðîâèíöèè Íàâàððà â èñïàíñêîé Ïàìïëîíå.÷èòàòü äàëüøåÏàðëàìåíò ïðîâèíöèè Íàâàððà © José Manuel CutillasÏàðëàìåíò ïðîâèíöèè Íàâàððà © José Manuel CutillasÏàðëàìåíò ïðîâèíöèè Íàâàððà © José Manuel CutillasÏàðëàìåíò ïðîâèíöèè Íàâàððà © José Manuel CutillasÏàðëàìåíò ïðîâèíöèè Íàâàððà © José Manuel CutillasÏàðëàìåíò ïðîâèíöèè Íàâàððà © José Manuel CutillasÏàðëàìåíò ïðîâèíöèè Íàâàððà © José Manuel CutillasÏàðëàìåíò ïðîâèíöèè Íàâàððà © José Manuel CutillasÏàðëàìåíò ïðîâèíöèè Íàâàððà © José Manuel CutillasÏàðëàìåíò ïðîâèíöèè Íàâàððà © José Manuel CutillasÏàðëàìåíò ïðîâèíöèè Íàâàððà © José Manuel CutillasÏàðëàìåíò ïðîâèíöèè Íàâàððà © José Manuel CutillasÏàðëàìåíò ïðîâèíöèè Íàâàððà © José Manuel CutillasÏàðëàìåíò ïðîâèíöèè Íàâàððà © José Manuel CutillasÏàðëàìåíò ïðîâèíöèè Íàâàððà © José Manuel CutillasÏàðëàìåíò ïðîâèíöèè Íàâàððà © José Manuel CutillasÏàðëàìåíò ïðîâèíöèè Íàâàððà © José Manuel CutillasÏàðëàìåíò ïðîâèíöèè Íàâàððà © José Manuel CutillasÏàðëàìåíò ïðîâèíöèè Íàâàððà © Otxotorena ArquitectosÏàðëàìåíò ïðîâèíöèè Íàâàððà © Otxotorena ArquitectosÏàðëàìåíò ïðîâèíöèè Íàâàððà © Otxotorena ArquitectosÏàðëàìåíò ïðîâèíöèè Íàâàððà © Otxotorena ArquitectosÏàðëàìåíò ïðîâèíöèè Íàâàððà © Otxotorena ArquitectosÏàðëàìåíò ïðîâèíöèè Íàâàððà © Otxotorena ArquitectosÏàðëàìåíò ïðîâèíöèè Íàâàððà © Otxotorena ArquitectosÏàðëàìåíò ïðîâèíöèè Íàâàððà © Otxotorena ArquitectosÏàðëàìåíò ïðîâèíöèè Íàâàððà © Otxotorena ArquitectosÏàðëàìåíò ïðîâèíöèè Íàâàððà © Otxotorena ArquitectosÏàðëàìåíò ïðîâèíöèè Íàâàððà © Otxotorena ArquitectosÏàðëàìåíò ïðîâèíöèè Íàâàððà © Otxotorena ArquitectosÏàðëàìåíò ïðîâèíöèè Íàâàððà © Otxotorena ArquitectosÏàðëàìåíò ïðîâèíöèè Íàâàððà © Otxotorena ArquitectosÏàðëàìåíò ïðîâèíöèè Íàâàððà © Otxotorena ArquitectosÏàðëàìåíò ïðîâèíöèè Íàâàððà © Otxotorena ArquitectosÏàðëàìåíò ïðîâèíöèè Íàâàððà © Otxotorena ArquitectosÏàðëàìåíò ïðîâèíöèè Íàâàððà © Otxotorena ArquitectosÏàðëàìåíò ïðîâèíöèè Íàâàððà © Otxotorena ArquitectosÏàðëàìåíò ïðîâèíöèè Íàâàððà © Otxotorena ArquitectosÏàðëàìåíò ïðîâèíöèè Íàâàððà © Otxotorena Arquitectos
客服
消息
收藏
下载
最近

































