查看完整案例

收藏

下载

翻译
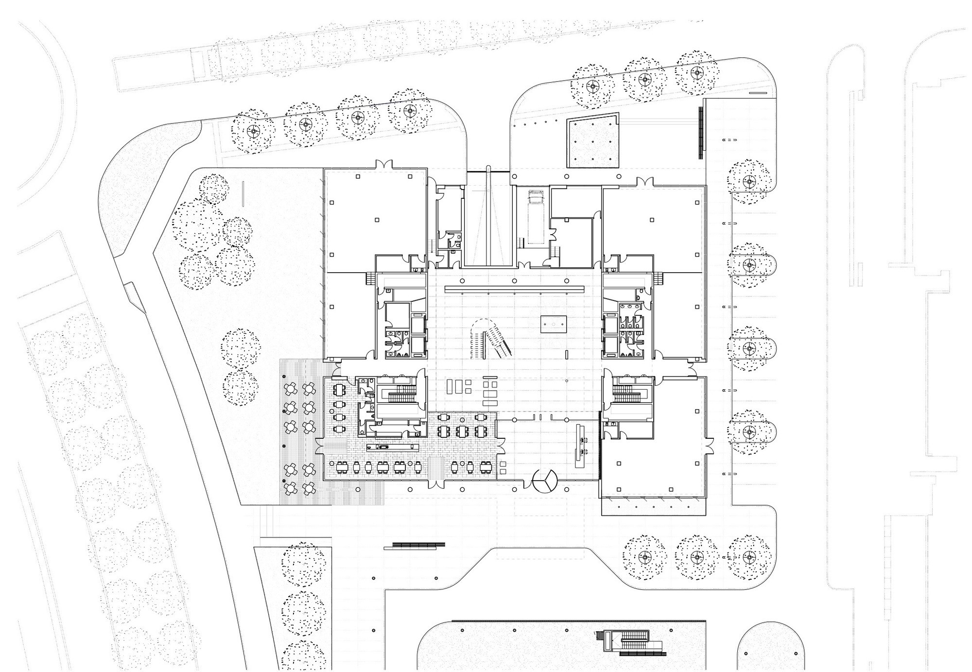
Îôèñíîå çäàíèå City Green Court © Roland HalbeÎôèñíîå çäàíèå City Green Court/ City Green Courtèíôîðìàöèÿ:ñòàòóñðåàëèçîâàíîäàòû09.20102012ìåñòî×åõèÿ,ÏðàãàôóíêöèÿÀäìèíèñòðàòèâíî-îôèñíûé/îôèñíîå çäàíèåÎôèñíîå çäàíèå City Green Court © Roland HalbeÀðõè.ðó îá ýòîì îáúåêòå:21.02.2013«Ñèòè»: ïðàæñêèé âàðèàíòÐè÷àðä Ìàéåð ïîñòðîèë â ñòîëèöå ×åõèè îôèñíîå çäàíèå City Green Court.÷èòàòü äàëüøåÎôèñíîå çäàíèå City Green Court © Roland HalbeÎôèñíîå çäàíèå City Green Court © Guillermo MurciaÎôèñíîå çäàíèå City Green Court © Roland HalbeÎôèñíîå çäàíèå City Green Court © Roland HalbeÎôèñíîå çäàíèå City Green Court © Roland HalbeÎôèñíîå çäàíèå City Green Court © Roland HalbeÎôèñíîå çäàíèå City Green Court © Roland HalbeÎôèñíîå çäàíèå City Green Court © Roland HalbeÎôèñíîå çäàíèå City Green Court © Richard Meier & PartnersÎôèñíîå çäàíèå City Green Court © Richard Meier & PartnersÎôèñíîå çäàíèå City Green Court © Richard Meier & PartnersÎôèñíîå çäàíèå City Green Court © Richard Meier & PartnersÎôèñíîå çäàíèå City Green Court © Richard Meier & Partners
客服
消息
收藏
下载
最近













