查看完整案例

收藏

下载

翻译
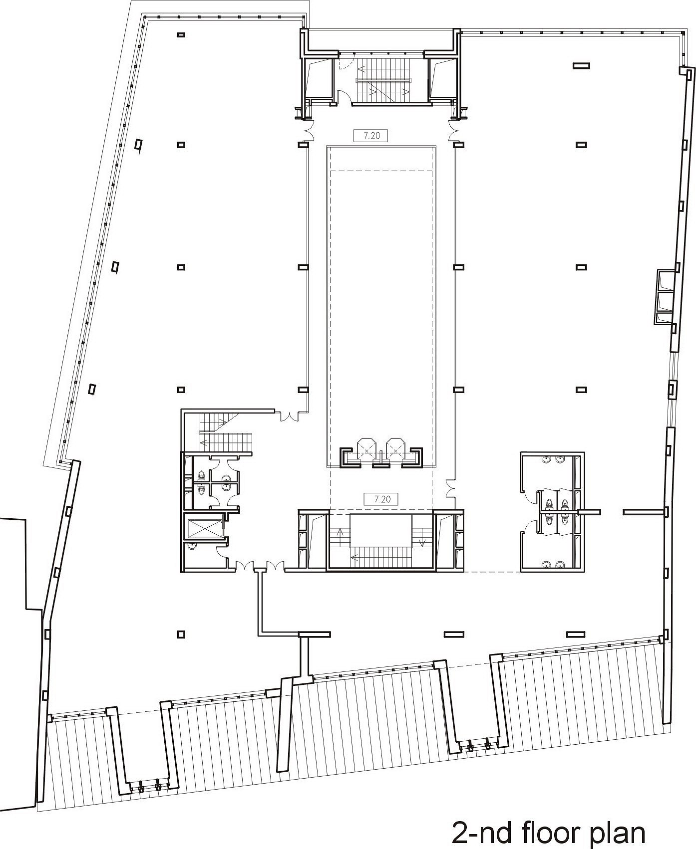
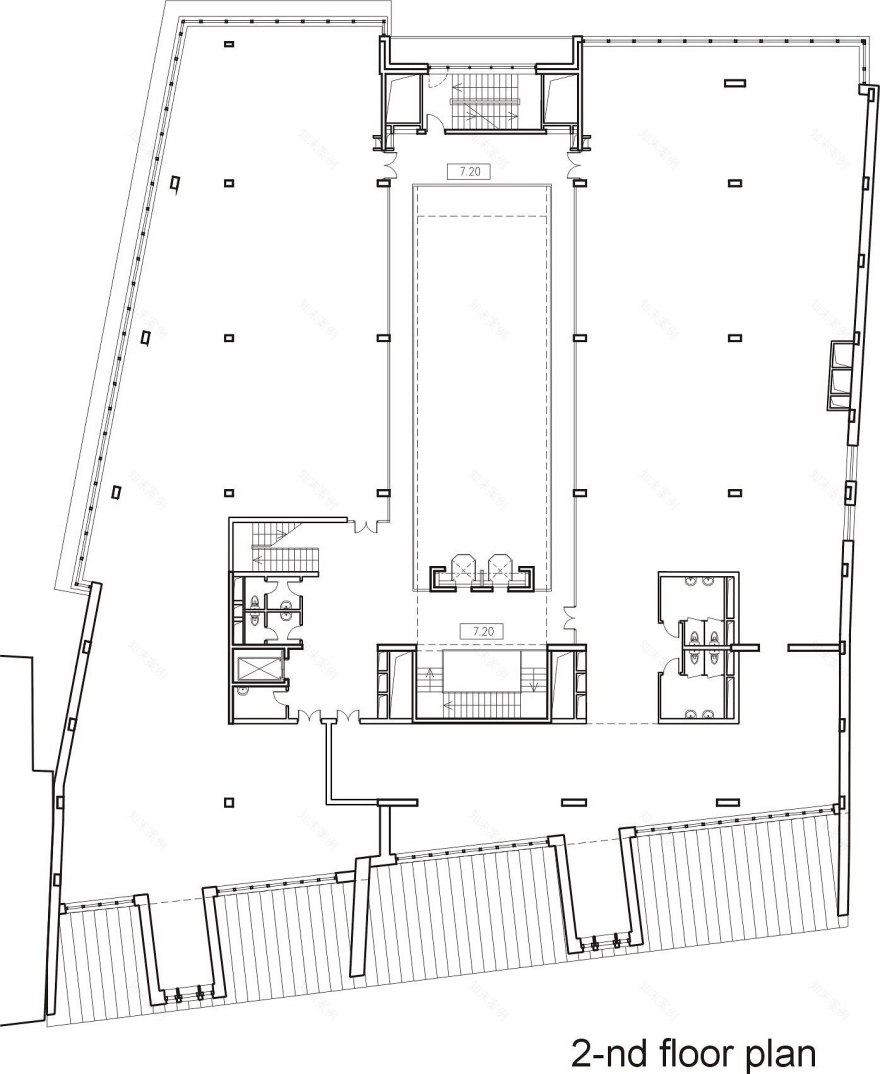
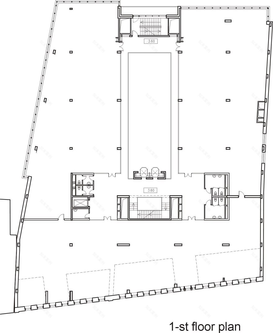
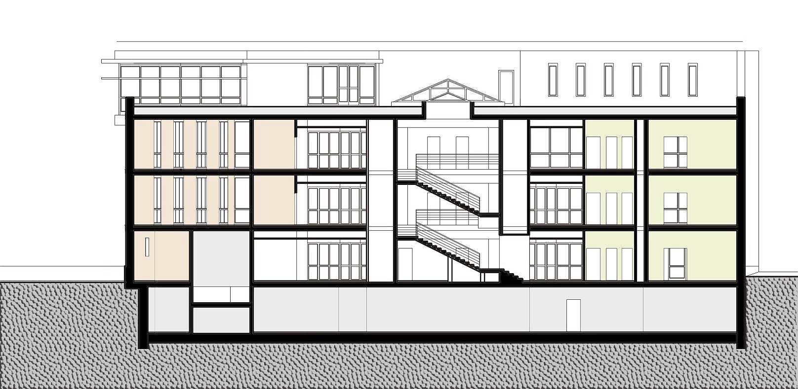
Àäìèíèñòðàòèâíîå çäàíèå íà Êàäàøåâñêîé íàáåðåæíîéèíôîðìàöèÿ:ñòàòóñðåàëèçîâàíîäàòû20012002/20022003ìåñòîÐîññèÿ,ÌîñêâàÖÀÎÊàäàøåâñêàÿ íàá., 30, ñòð. 1,2ôóíêöèÿÀäìèíèñòðàòèâíî-îôèñíûé/àäìèíèñòðàòèâíî-îôèñíîå çäàíèåîïèñàíèå:Ïî÷òè 7000 êâ.ì îôèñíîãî çäàíèÿ êëàññà «À» ïðÿ÷åòñÿ çà ôàñàäîì ïîñëåäíåãî ìåæäó Îðäûíêîé è Ëàâðóøèíñêèì ïåðåóëêîì íå ïðèâåäåííîãî â ïîðÿäîê ïàìÿòíèêà àðõèòåêòóðû. Ýòîìó êîìïëåêñó ïðèøëîñü ñòàòü àòðèóìíûì äëÿ òîãî, ÷òîáû íàáðàòü íåîáõîäèìûå ìåòðû, îñòàâàÿñü «íåâèäèìûì», ò.å. âûïîëíèòü óñëîâèå, ïðè êîòîðîì îí âîîáùå ìîæåò ñîñòîÿòüñÿ.
客服
消息
收藏
下载
最近























