查看完整案例

收藏

下载

翻译
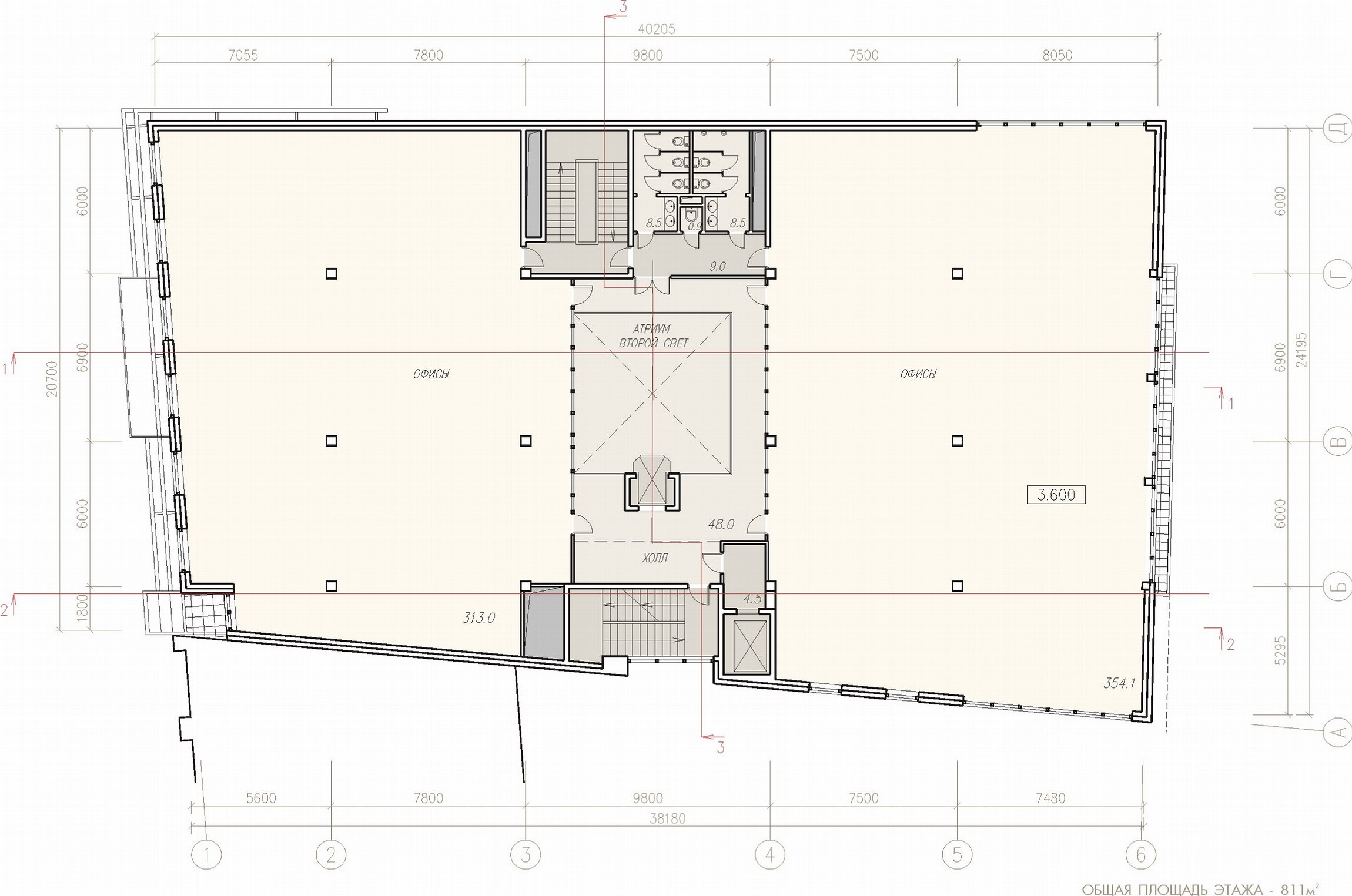
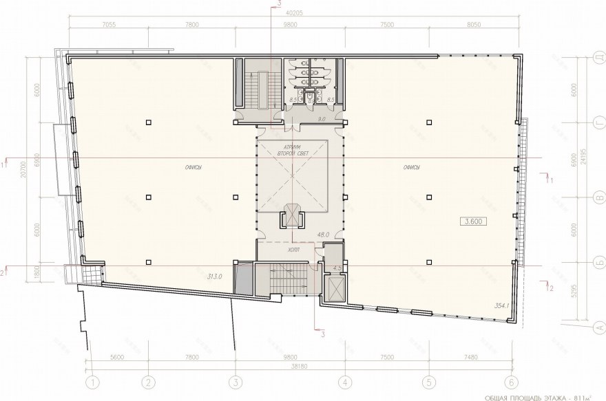
Àäìèíèñòðàòèâíîå çäàíèå â Áîëüøîì Äðîâÿíîì ïåðåóëêå© ÀÌ Ñåðãåé Êèñåëåâ è ÏàðòíåðûÀäìèíèñòðàòèâíîå çäàíèå â Áîëüøîì Äðîâÿíîì ïåðåóëêåèíôîðìàöèÿ:ñòàòóñðåàëèçîâàíîäàòû2001/2005ìåñòîÐîññèÿ,ÌîñêâàÖÀÎÁîëüøîé Äðîâÿíîé ïåðåóëîê, âëàäåíèå 6ôóíêöèÿÀäìèíèñòðàòèâíî-îôèñíûé/àäìèíèñòðàòèâíî-îôèñíîå çäàíèåïëîùàäü ó÷àñòêà0,09 ãàïëîùàäü çàñòðîéêè897 ì2îáùàÿ ïëîùàäü4600 ì2ýòàæíîñòü3-4ñòðîèòåëüíûé îáúåì16375 ì3Àäìèíèñòðàòèâíîå çäàíèå â Áîëüøîì Äðîâÿíîì ïåðåóëêå© ÀÌ Ñåðãåé Êèñåëåâ è ÏàðòíåðûÀäìèíèñòðàòèâíîå çäàíèå â Áîëüøîì Äðîâÿíîì ïåðåóëêå© ÀÌ Ñåðãåé Êèñåëåâ è Ïàðòíåðûîïèñàíèå:Çåìåëüíûé ó÷àñòîê ïëîùàäüþ 0,09 ãà ðàñïîëîæåí â Öåíòðàëüíîì Àäìèíèñòðàòèâíîì Îêðóãå, âáëèçè Ñàäîâîãî êîëüöà, ïî êðàñíîé ëèíèè Áîëüøîãî Äðîâÿíîãî ïåðåóëêà, íà ìåñòå ðàíåå óòðà÷åííîãî çäàíèÿ ìåæäó âëàäåíèÿìè 4 è 8 è ãðàíè÷èò íà þãå ñ òåððèòîðèåé øêîëû.Îñíîâíàÿ çîíà âîñïðèÿòèÿ îáúåêòà ñî ñòîðîíû Çåìëÿíîãî âàëà è Á. Äðîâÿíîãî ïåðåóëêà. Íàõîäÿñü íà ñêëîíå Òàãàíñêîãî õîëìà, ó÷àñòîê èìååò ðåëüåô ñî çíà÷èòåëüíûì ïîíèæåíèåì ê ïåðåóëêó.Ê ñòðîèòåëüñòâó ïðåäëàãàåòñÿ 3-4-ýòàæíîå çäàíèå ñ âíóòðåííèì àòðèóìîì, ñòîÿùåå íà äâóõóðîâíåâîé ïîäçåìíîé ñòîÿíêå íà 40 ì/ì. Ñóùåñòâåííûé ïåðåïàä ðåëüåôà ïîçâîëÿåò îðãàíèçîâàòü âúåçäû íà îáà, ôàêòè÷åñêè àâòîíîìíûõ, ïîäçåìíûõ óðîâíÿ ñ Äðîâÿíîãî ïåðåóëêà ñ ìèíèìàëüíûìè ïàíäóñàìè.Ñåðüåçíûì îãðàíè÷åíèåì, óñëîæíÿþùèì ïðîåêòèðîâàíèå, ÿâèëàñü íåîáõîäèìîñòü îáñëóæèâàòü çäàíèå òîëüêî ñ Äðîâÿíîãî ïåðåóëêà. Íà óçêîì ôðîíòå ãëàâíîãî ôàñàäà ñêîíöåíòðèðîâàíû íå òîëüêî âúåçäû â àâòîñòîÿíêè è ãëàâíûé âõîä, íî è, ê ñîæàëåíèþ, âûõîäû èç íåîáõîäèìûõ ñëóæåáíûõ ïîìåùåíèé.Íà ïåðâîì ýòàæå ðàñïîëîæåíû âåñòèáþëüíàÿ ãðóïïà, çîíà êàôå è îôèñû. Îôèñíûå ïîìåùåíèÿ 1-4 ýòàæåé èìåþò åñòåñòâåííîå îñâåùåíèå, êàê ñ âíåøíèõ òîðöåâûõ ñòîðîí çäàíèÿ, òàê è ñî ñòîðîíû àòðèóìà. Âåðõíèå ýòàæè 3-é è 4-é, èìåþùèé ìåíüøóþ ïëîùàäü, îòñòóïàþò îò ãðàíèöû ãëàâíîãî ôàñàäà âãëóáü ó÷àñòêà, ïîçâîëÿÿ ñîõðàíèòü ñîìàñøòàáíîñòü ñ îêðóæàþùåé çàñòðîéêîé.Àäìèíèñòðàòèâíîå çäàíèå â Áîëüøîì Äðîâÿíîì ïåðåóëêå© ÀÌ Ñåðãåé Êèñåëåâ è ÏàðòíåðûÀäìèíèñòðàòèâíîå çäàíèå â Áîëüøîì Äðîâÿíîì ïåðåóëêå© ÀÌ Ñåðãåé Êèñåëåâ è ÏàðòíåðûÀäìèíèñòðàòèâíîå çäàíèå â Áîëüøîì Äðîâÿíîì ïåðåóëêå© ÀÌ Ñåðãåé Êèñåëåâ è ÏàðòíåðûÀäìèíèñòðàòèâíîå çäàíèå â Áîëüøîì Äðîâÿíîì ïåðåóëêå© ÀÌ Ñåðãåé Êèñåëåâ è ÏàðòíåðûÀäìèíèñòðàòèâíîå çäàíèå â Áîëüøîì Äðîâÿíîì ïåðåóëêå© ÀÌ Ñåðãåé Êèñåëåâ è ÏàðòíåðûÀäìèíèñòðàòèâíîå çäàíèå â Áîëüøîì Äðîâÿíîì ïåðåóëêå© ÀÌ Ñåðãåé Êèñåëåâ è ÏàðòíåðûÀäìèíèñòðàòèâíîå çäàíèå â Áîëüøîì Äðîâÿíîì ïåðåóëêå© ÀÌ Ñåðãåé Êèñåëåâ è ÏàðòíåðûÀäìèíèñòðàòèâíîå çäàíèå â Áîëüøîì Äðîâÿíîì ïåðåóëêå© ÀÌ Ñåðãåé Êèñåëåâ è ÏàðòíåðûÀäìèíèñòðàòèâíîå çäàíèå â Áîëüøîì Äðîâÿíîì ïåðåóëêå© ÀÌ Ñåðãåé Êèñåëåâ è ÏàðòíåðûÀäìèíèñòðàòèâíîå çäàíèå â Áîëüøîì Äðîâÿíîì ïåðåóëêå© ÀÌ Ñåðãåé Êèñåëåâ è ÏàðòíåðûÀäìèíèñòðàòèâíîå çäàíèå â Áîëüøîì Äðîâÿíîì ïåðåóëêå© ÀÌ Ñåðãåé Êèñåëåâ è ÏàðòíåðûÀäìèíèñòðàòèâíîå çäàíèå â Áîëüøîì Äðîâÿíîì ïåðåóëêå© ÀÌ Ñåðãåé Êèñåëåâ è ÏàðòíåðûÀäìèíèñòðàòèâíîå çäàíèå â Áîëüøîì Äðîâÿíîì ïåðåóëêå© ÀÌ Ñåðãåé Êèñåëåâ è ÏàðòíåðûÀäìèíèñòðàòèâíîå çäàíèå â Áîëüøîì Äðîâÿíîì ïåðåóëêå© ÀÌ Ñåðãåé Êèñåëåâ è ÏàðòíåðûÀäìèíèñòðàòèâíîå çäàíèå â Áîëüøîì Äðîâÿíîì ïåðåóëêå© ÀÌ Ñåðãåé Êèñåëåâ è ÏàðòíåðûÀäìèíèñòðàòèâíîå çäàíèå â Áîëüøîì Äðîâÿíîì ïåðåóëêå© ÀÌ Ñåðãåé Êèñåëåâ è ÏàðòíåðûÀäìèíèñòðàòèâíîå çäàíèå â Áîëüøîì Äðîâÿíîì ïåðåóëêå© ÀÌ Ñåðãåé Êèñåëåâ è ÏàðòíåðûÀäìèíèñòðàòèâíîå çäàíèå â Áîëüøîì Äðîâÿíîì ïåðåóëêå© ÀÌ Ñåðãåé Êèñåëåâ è ÏàðòíåðûÀäìèíèñòðàòèâíîå çäàíèå â Áîëüøîì Äðîâÿíîì ïåðåóëêå© ÀÌ Ñåðãåé Êèñåëåâ è ÏàðòíåðûÀäìèíèñòðàòèâíîå çäàíèå â Áîëüøîì Äðîâÿíîì ïåðåóëêå© ÀÌ Ñåðãåé Êèñåëåâ è ÏàðòíåðûÀäìèíèñòðàòèâíîå çäàíèå â Áîëüøîì Äðîâÿíîì ïåðåóëêå© ÀÌ Ñåðãåé Êèñåëåâ è Ïàðòíåðû
客服
消息
收藏
下载
最近


























