查看完整案例

收藏

下载

翻译
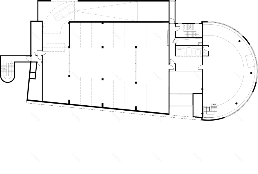
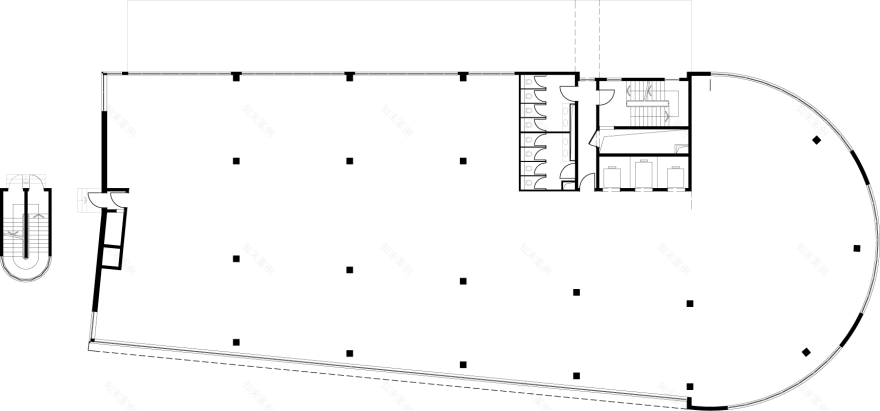
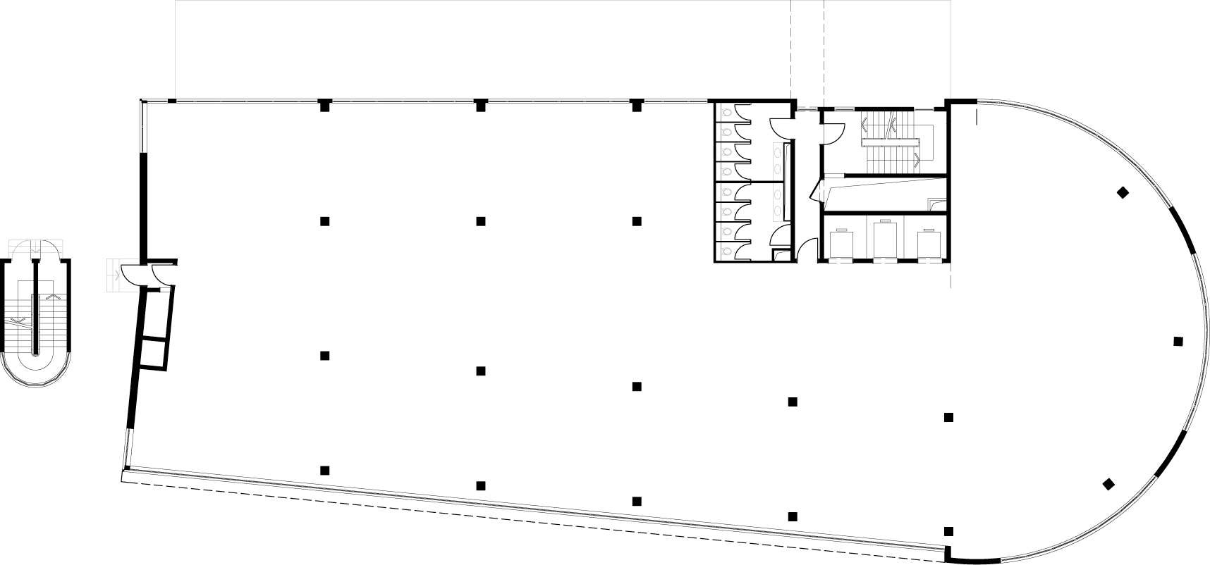
Îôèñíîå çäàíèå íà Òðóáíîé óëèöå © ÀÁ ÎñòîæåíêàÎôèñíîå çäàíèå íà Òðóáíîé óëèöå/ Office building, Trubnaya streetèíôîðìàöèÿ:ñòàòóñðåàëèçîâàíîäàòû1997/1999ìåñòîÐîññèÿ,ÌîñêâàÒðóáíàÿ óë., 12ôóíêöèÿÀäìèíèñòðàòèâíî-îôèñíûé/àäìèíèñòðàòèâíî-îôèñíîå çäàíèåîáùàÿ ïëîùàäü12800 ì2íàãðàäû:Áîëüøàÿ ìåäàëü ÐÀÀÑÍ 1998ã. Äèïëîì IV âûñòàâêè «Àðõèòåêòóðà è äèçàéí» 1999ã. çà ëó÷øåå çäàíèåÎôèñíîå çäàíèå íà Òðóáíîé óëèöå © ÀÁ ÎñòîæåíêàÎôèñíîå çäàíèå íà Òðóáíîé óëèöå © ÀÁ Îñòîæåíêàîïèñàíèå:Ñëèÿíèå ïëàâíîãî èçãèáà Òðóáíîé óëèöû è Áîëüøîãî Ñåðãèåâñêîãî ïåðåóëêà, êðóòî óõîäÿùåãî ââåðõ ê Ñðåòåíêå, íàñòîëüêî ñàìî ïî ñåáå ïðîñòðàíñòâåííî âûðàçèòåëüíî, ÷òî íàì îñòàâàëîñü òîëüêî ïîñòàðàòüñÿ íå ðàçðóøèòü ïîñòðîéêîé ýòîãî ýôôåêòà. Îòñþäà ñëåäóþùèé òîïîãðàôèè îêðóãëåííûé òîðåö çäàíèÿ è íàìàòûâàþùàÿñÿ íà íåãî ïåðôîðàöèÿ ôàñàäíîé îáîëî÷êè ñ áåãóùèìè îäíîâðåìåííî ïî ãîðèçîíòàëè è «â ãîðó» îêîííûìè ïðîåìàìè. Ñîåäèíåíèÿ îñíîâíîãî îáúåìà ñ çåìëåé ÷åðåç âðîñøèé â ñêëîí ñëîæíîãî àáðèñà öîêîëü – êëþ÷åâîé ìîìåíò êîìïîçèöèè, ïðîÿâëÿþùèé íåîðäèíàðíûå ñâîéñòâà ëàíäøàôòà.Íàø îáúåêò ïðîåêòèðîâàëñÿ çà ñïèíîé Äîìà Ïîëèòïðîñâåùåíèÿ, êîòîðûé òîãäà êàçàëñÿ âå÷íûì, à òåïåðü ðàçîáðàí. Ýòî ó÷èò íàñ òîìó, ÷òî àðõèòåêòóðà óõîäèò, à ëàíäøàôò îñòàåòñÿ.Îôèñíîå çäàíèå íà Òðóáíîé óëèöå © ÀÁ Îñòîæåíêàïðåññà:30.11.2001Îôèñíîå çäàíèå íà Òðóáíîé óëèöå
// Ïðîåêò Ðîññèÿ
, ¹12Îôèñíîå çäàíèå íà Òðóáíîé óëèöå © ÀÁ ÎñòîæåíêàÎôèñíîå çäàíèå íà Òðóáíîé óëèöå © ÀÁ ÎñòîæåíêàÎôèñíîå çäàíèå íà Òðóáíîé óëèöå © ÀÁ ÎñòîæåíêàÎôèñíîå çäàíèå íà Òðóáíîé óëèöå © ÀÁ ÎñòîæåíêàÎôèñíîå çäàíèå íà Òðóáíîé óëèöå © ÀÁ ÎñòîæåíêàÎôèñíîå çäàíèå íà Òðóáíîé óëèöå © ÀÁ ÎñòîæåíêàÎôèñíîå çäàíèå íà Òðóáíîé óëèöå © ÀÁ ÎñòîæåíêàÎôèñíîå çäàíèå íà Òðóáíîé óëèöå © ÀÁ ÎñòîæåíêàÎôèñíîå çäàíèå íà Òðóáíîé óëèöå © ÀÁ ÎñòîæåíêàÎôèñíîå çäàíèå íà Òðóáíîé óëèöå © ÀÁ ÎñòîæåíêàÎôèñíîå çäàíèå íà Òðóáíîé óëèöå © ÀÁ ÎñòîæåíêàÎôèñíîå çäàíèå íà Òðóáíîé óëèöå © ÀÁ Îñòîæåíêà
客服
消息
收藏
下载
最近


















