查看完整案例

收藏

下载

翻译
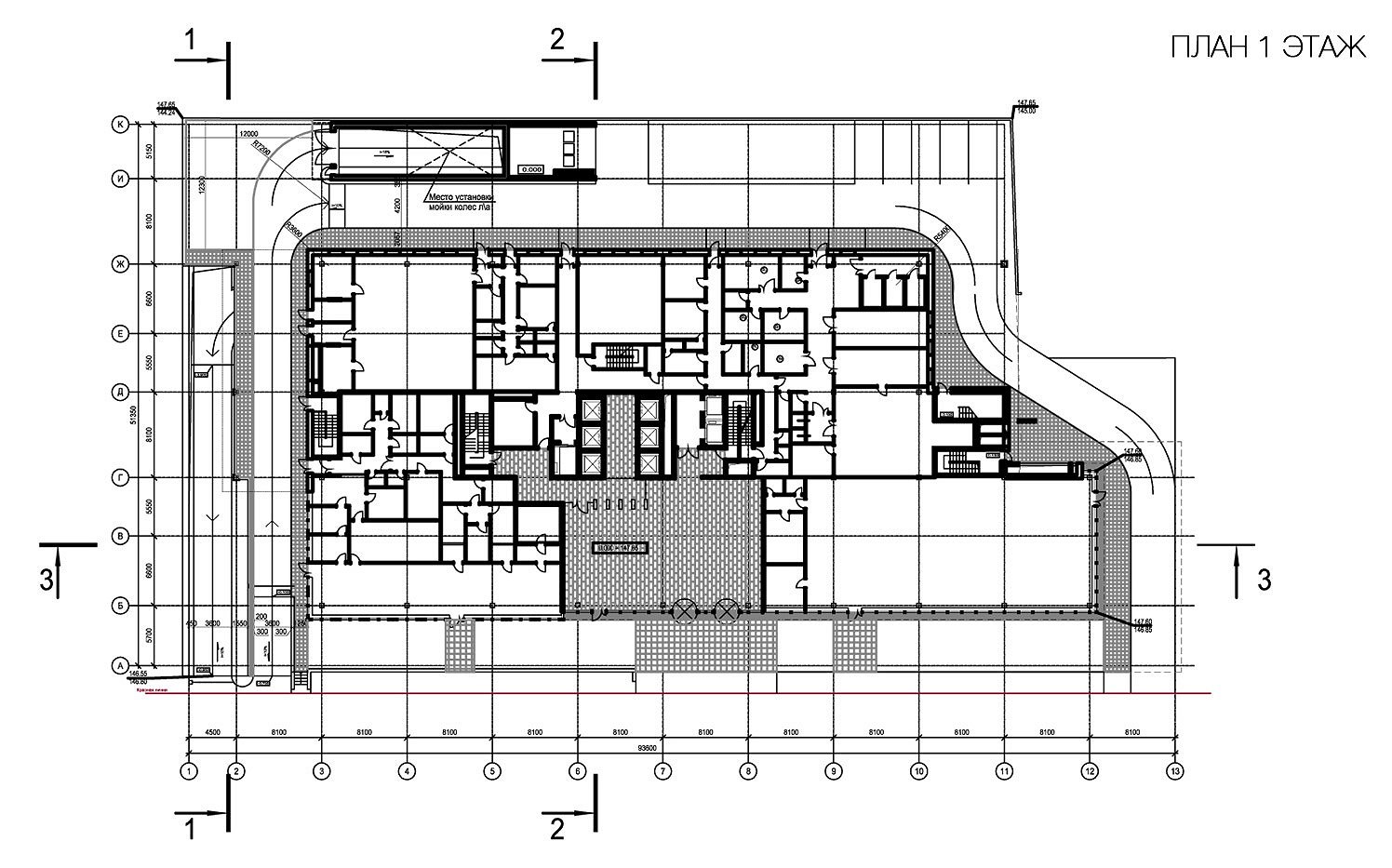
Áèçíåñ-öåíòð «Marr Plaza». Ôðàãìåíò. Ðåàëèçàöèÿ, 2008 © Àðõèòåêòóðíàÿ ìàñòåðñêàÿ «Ãðóïïà ÀÁ»Áèçíåñ-öåíòð «Marr Plaza»/ Marr Plaza business centreèíôîðìàöèÿ:ñòàòóñðåàëèçîâàíîäàòû2008ìåñòîÐîññèÿ,Ìîñêâàóë. Ñ. Ìàêååâà, âë. 13ôóíêöèÿÀäìèíèñòðàòèâíî-îôèñíûé/áèçíåñ-öåíòðïëîùàäü ó÷àñòêà0,46 ãàïëîùàäü çàñòðîéêè2765 ì2ïëîùàäü ïîäçåìíàÿ12550 ì2îáùàÿ ïëîùàäü34000 ì2ñòðîèòåëüíûé îáúåì46870 ì3íàãðàäû:CRE Awards 2011Áèçíåñ-öåíòð «Marr Plaza». Ôðàãìåíò. Ðåàëèçàöèÿ, 2008 © Àðõèòåêòóðíàÿ ìàñòåðñêàÿ «Ãðóïïà ÀÁ»Àðõè.ðó îá ýòîì îáúåêòå:06.10.2011Àííà Ãàðàíåíêî. Ïðàêòè÷íîñòü â òåïëûõ òîíàõÍåïîäàëåêó îò Êðàñíîé Ïðåñíè ãîòîâèòñÿ ê îòêðûòèþ íîâûé îôèñíûé öåíòð MARR Plaza. Ýòî çäàíèå äîáàâëÿåò ê ïðîëåòàðñêîé ýñòåòèêå ñòàðîãî ïðîìûøëåííîãî ðàéîíà íåìåöêîé ðåñïåêòàáåëüíîñòè è ïðàãìàòèçìà. À ôàñàä ïðè æåëàíèè ìîæíî ðàññìàòðèâàòü êàê ïîñòèíäóñòðèàëüíûé ìàíèôåñò: êåðàìè÷åñêèå ïàíåëè ðèôìóþòñÿ ñ êèðïè÷îì ôàáðè÷íûõ öåõîâ, à ïîëèðîâàííîå òîíèðîâàííîå ñòåêëî ñ äîðîãèìè èíîìàðêàìè «áåëûõ âîðîòíè÷êîâ».MARR Plaza ðàñïîëîæåí â 10 ìèíóòàõ õîäüáû îò ìåòðî «Óëèöà 1905 ãîäà» ýòî åùå íå îòêðîâåííûå ïðîìçîíû Ìàãèñòðàëüíûõ óëèö, íî óæå è íå öåíòð ãîðîäà. Íåêîòîðàÿ ïðîìåæóòî÷íîñòü íå â ñìûñëå «íåïðèêàÿííîñòü» ñêîðåå, çîëîòàÿ ñåðåäèíà ðàñïîëîæåíèÿ ïîçèöè...÷èòàòü äàëüøåÁèçíåñ-öåíòð «Marr Plaza». Ðåàëèçàöèÿ, 2008 © Àðõèòåêòóðíàÿ ìàñòåðñêàÿ «Ãðóïïà ÀÁ»îïèñàíèå:Îôèñíîå çäàíèå ðàñïîëîæåíî â öåíòðå Ìîñêâû, â ðàéîíå Òðåòüåãî òðàíñïîðòíîãî êîëüöà, íà óëèöå Ñåðãåÿ Ìàêååâà. Îáúåêò íàõîäèòñÿ â çîíå èíòåíñèâíîãî ïðåîáðàçîâàíèÿ ïðîèçâîäñòâåííî-ñêëàäñêîé çàñòðîéêè â àäìèíèñòðàòèâíî-äåëîâóþ. Îñíîâíîé çàäà÷åé ïðîåêòà ÿâëÿëîñü ñîçäàíèå ìíîãîôóíêöèîíàëüíîãî êîìïëåêñà, îáåñïå÷åííîãî âñåìè âèäàìè èíôîðìàöèîííîãî, êîìïüþòåðíîãî, è îðãàíèçàöèîííîãî îáñëóæèâàíèÿ ñ âûñîêîðàçâèòîé èíæåíåðíîé èíôðàñòðóêòóðîé, âûñîêèì óðîâíåì êîìôîðòà äëÿ ñîòðóäíèêîâ è ïîñåòèòåëåé. Îðèãèíàëüíîå àðõèòåêòóðíîå ðåøåíèå îáúåìà çäàíèÿ îïðåäåëèëîñü èñõîäÿ èç óñëîâèé îáåñïå÷åíèÿ èíñîëÿöèè æèëîãî äîìà, ðàñïîëîæåííîãî â íåïîñðåäñòâåííîé áëèçîñòè. Ôàñàäû çäàíèÿ âûïîëíåíû â êîíòðàñòíîé öâåòîâîé ãàììå, ñ èñïîëüçîâàíèåì ïîëèðîâàííîãî òîíèðîâàííîãî ñòåêëà è âèòðàæåé. Áûëà èñïîëüçîâàíà òåõíîëîãèÿ «ìîäóëüíûé ôàñàä»: ïàíåëü ôàñàäà ïîëíîñòüþ áûëà ñîáðàíà â çàâîäñêèõ óñëîâèÿõ ñî âñåìè ìàòåðèàëàìè îòäåëêè âèòðàæ, ñòåêëî, êåðàìèêà, ýìàëèò. Òàêîé ñïîñîá âûïîëíåíèÿ ôàñàäà ïîçâîëÿåò ìàêñèìàëüíî êà÷åñòâåííî è áûñòðî ïîëó÷èòü áîëüøóþ ïëîùàäü ôàñàäà ñî 100% ãîòîâíîñòüþ, ò. å. íåò íåîáõîäèìîñòè ïîñëåäóþùåé äîðàáîòêè åãî íà ñòðîéêå. Öîêîëü îáëèöîâàí íàòóðàëüíûì êàìíåì. Íàä âõîäàìè ïðåäóñìîòðåíû êîçûðüêè èç ñâåòîïðîçðà÷íûõ ìàòåðèàëîâ è ìåòàëëîêîíñòðóêöèé.  ïîäçåìíîé ÷àñòè áèçíåñ-öåíòðà íàõîäèòñÿ ìíîãîóðîâíåâàÿ ïîäçåìíàÿ ñòîÿíêà äëÿ àâòîìîáèëåé.Áèçíåñ-öåíòð «Marr Plaza». Âèä ñ óë. Ñåðãåÿ Ìàêååâà. Ðåàëèçàöèÿ, 2008 © Àðõèòåêòóðíàÿ ìàñòåðñêàÿ «Ãðóïïà ÀÁ»Áèçíåñ-öåíòð «Marr Plaza». Ãëàâíûé ôàñàä. Ðåàëèçàöèÿ, 2008 © Àðõèòåêòóðíàÿ ìàñòåðñêàÿ «Ãðóïïà ÀÁ»Áèçíåñ-öåíòð «Marr Plaza». Íàâåñ íàä âõîäîì. Ðåàëèçàöèÿ, 2008 © Àðõèòåêòóðíàÿ ìàñòåðñêàÿ «Ãðóïïà ÀÁ»Áèçíåñ-öåíòð «Marr Plaza». Ôàñàä ïî óë. Ñåðãåÿ Ìàêååâà. Ðåàëèçàöèÿ, 2008 © Àðõèòåêòóðíàÿ ìàñòåðñêàÿ «Ãðóïïà ÀÁ»Áèçíåñ-öåíòð «Marr Plaza». Âèä íî÷üþ. Ðåàëèçàöèÿ, 2008 © Àðõèòåêòóðíàÿ ìàñòåðñêàÿ «Ãðóïïà ÀÁ»Áèçíåñ-öåíòð «Marr Plaza». Âèä íî÷üþ. Ðåàëèçàöèÿ, 2008 © Àðõèòåêòóðíàÿ ìàñòåðñêàÿ «Ãðóïïà ÀÁ»Áèçíåñ-öåíòð «Marr Plaza». Ïðîåêò, 3D. Ðåàëèçàöèÿ, 2008 © Àðõèòåêòóðíàÿ ìàñòåðñêàÿ «Ãðóïïà ÀÁ»Áèçíåñ-öåíòð «Marr Plaza». Ïðîåêò, 3D. Ðåàëèçàöèÿ, 2008 © Àðõèòåêòóðíàÿ ìàñòåðñêàÿ «Ãðóïïà ÀÁ»Áèçíåñ-öåíòð «Marr Plaza». Ïðîåêò, 3D. Ðåàëèçàöèÿ, 2008 © Àðõèòåêòóðíàÿ ìàñòåðñêàÿ «Ãðóïïà ÀÁ»Áèçíåñ-öåíòð «Marr Plaza». Èíòåðüåðû (ôîòîãðàôèÿ). Ðåàëèçàöèÿ, 2008 © Àðõèòåêòóðíàÿ ìàñòåðñêàÿ «Ãðóïïà ÀÁ»Áèçíåñ-öåíòð «Marr Plaza». Èíòåðüåðû (ïðîåêò). Ðåàëèçàöèÿ, 2008 © Àðõèòåêòóðíàÿ ìàñòåðñêàÿ «Ãðóïïà ÀÁ»Áèçíåñ-öåíòð «Marr Plaza». Ñèòóàöèîííûé ïëàí. Ðåàëèçàöèÿ, 2008 © Àðõèòåêòóðíàÿ ìàñòåðñêàÿ «Ãðóïïà ÀÁ»Áèçíåñ-öåíòð «Marr Plaza». Ïëàí 1 ýòàæà. Ðåàëèçàöèÿ, 2008 © Àðõèòåêòóðíàÿ ìàñòåðñêàÿ «Ãðóïïà ÀÁ»Áèçíåñ-öåíòð «Marr Plaza». Ïëàí 8 ýòàæà. Ðåàëèçàöèÿ, 2008 © Àðõèòåêòóðíàÿ ìàñòåðñêàÿ «Ãðóïïà ÀÁ»Áèçíåñ-öåíòð «Marr Plaza». Ïëàí 9 ýòàæà. Ðåàëèçàöèÿ, 2008 © Àðõèòåêòóðíàÿ ìàñòåðñêàÿ «Ãðóïïà ÀÁ»Áèçíåñ-öåíòð «Marr Plaza». Ðàçðåç 1-1. Ðåàëèçàöèÿ, 2008 © Àðõèòåêòóðíàÿ ìàñòåðñêàÿ «Ãðóïïà ÀÁ»Áèçíåñ-öåíòð «Marr Plaza». Ðàçðåç 2-2. Ðåàëèçàöèÿ, 2008 © Àðõèòåêòóðíàÿ ìàñòåðñêàÿ «Ãðóïïà ÀÁ»Áèçíåñ-öåíòð «Marr Plaza». Ðàçðåç 3-3. Ðåàëèçàöèÿ, 2008 © Àðõèòåêòóðíàÿ ìàñòåðñêàÿ «Ãðóïïà ÀÁ»Áèçíåñ-öåíòð «Marr Plaza». Ôàñàä ïî óë. Ñåðãåÿ Ìàêååâà. Ðåàëèçàöèÿ, 2008 © Àðõèòåêòóðíàÿ Àðõèòåêòóðíàÿ ìàñòåðñêàÿ «Ãðóïïà ÀÁ»Áèçíåñ-öåíòð «Marr Plaza». Òîðöåâîé ôàñàä. Ðåàëèçàöèÿ, 2008 © Àðõèòåêòóðíàÿ ìàñòåðñêàÿ «ÀÁ»
客服
消息
收藏
下载
最近

























