查看完整案例

收藏

下载

翻译
Îôèñíîå çäàíèå íà Ìîæàéñêîì øîññå. Âàðèàíò 2010 ãîäà (òðåòèé âàðèàíò). Ïðîåêòèðîâùèê: Ìàñòåðñêàÿ àðõèòåêòîðà ÁàâûêèíàÎôèñíîå çäàíèå ñ ïîäçåìíîé àâòîñòîÿíêîé â 4-õ óðîâíÿõ íà Ìîæàéñêîì øîññå (âàðèàíò 2010 ãîäà)/ Office building with 4 level underground car parking, Mozhaiskoe highway (2010 version)èíôîðìàöèÿ:ñòàòóñïðîåêòäàòû20092010ìåñòîÐîññèÿ,ÌîñêâàÌîæàéñêîå øîññå, âë. 6ôóíêöèÿÀäìèíèñòðàòèâíî-îôèñíûé/îôèñíûé êîìïëåêñóäàëèòü èçîáðàæåíèå
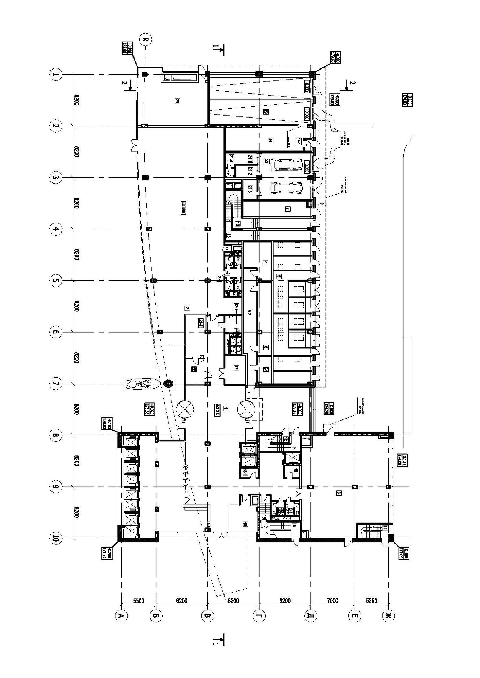
Îôèñíîå çäàíèå íà Ìîæàéñêîì øîññå. Âàðèàíò 2010 ãîäà (òðåòèé âàðèàíò)Àðõè.ðó îá ýòîì îáúåêòå:17.03.2014Àííà Ìàðòîâèöêàÿ. Àëåêñåé Áàâûêèí: «Ê Ìîñêâå íóæíî îòíîñèòüñÿ íåæíåå»Àëåêñåé Áàâûêèí î ñîâðåìåííîé Ìîñêâå, àðõèòåêòóðíîì îáðàçîâàíèè è íîâûõ ïðîåêòàõ ñâîåé ìàñòåðñêîé.Àðõè.ðó: Àëåêñåé Ëüâîâè÷, â ïîñëåäíåå âðåìÿ Âû ïî÷òè ñîâñåì íå äàâàëè èíòåðâüþ. Ïî÷åìó? Àëåêñåé Áàâûêèí: Íå òîëüêî èíòåðâüþ, ÿ è ïðîåêòû ïî÷òè íå ïóáëèêîâàë. Äà ÷òî ãîâîðèòü, â ïîñëåäíèå ïÿòü ëåò ó íàñ áûëî î÷åíü ìàëî ðàáîòû ëèøü â 2013-ì óäàëîñü...÷èòàòü äàëüøåäðóãèå òåêñòû Àðõè.ðó:05.10.2010Þëèÿ Òàðàáàðèíà. Ëåäíèêîâûé ïåðèîä26.06.2009Íàòàëüÿ Êîðÿêîâñêàÿ. Êðèçèñà êàê è íå áûâàëî. Çàñåäàíèå Îáùåñòâåííîãî ñîâåòà ïðè ìýðå Ìîñêâû 24 èþíÿÎôèñíîå çäàíèå ñ ïîäçåìíîé àâòîñòîÿíêîé â 4-õ óðîâíÿõ íà Ìîæàéñêîì øîññå. Âàðèàíò 2010 ãîäà (òðåòèé âàðèàíò). Ïðîåêòèðîâùèê: Ìàñòåðñêàÿ àðõèòåêòîðà ÁàâûêèíàÎôèñíîå çäàíèå íà Ìîæàéñêîì øîññå. Âàðèàíò 2010 ãîäà (òðåòèé âàðèàíò). Çàïàäíûé ôàñàäÎôèñíîå çäàíèå íà Ìîæàéñêîì øîññå. Âàðèàíò 2010 ãîäà (òðåòèé âàðèàíò). Þæíûé ôàñàäÎôèñíîå çäàíèå íà Ìîæàéñêîì øîññå. Âàðèàíò 2010 ãîäà (òðåòèé âàðèàíò). Ñåâåðíûé ôàñàäÎôèñíîå çäàíèå íà Ìîæàéñêîì øîññå. Âàðèàíò 2010 ãîäà (òðåòèé âàðèàíò). Âîñòî÷íûé ôàñàäÑõåìà ðàñïîëîæåíèÿ â ãîðîäåÎôèñíîå çäàíèå íà Ìîæàéñêîì øîññå. Âàðèàíò 2010 ãîäà (òðåòèé âàðèàíò). Ãåíåðàëüíûé ïëàíÏëàí ïåðâîãî ýòàæàÏëàí òèïîâîãî ýòàæà
客服
消息
收藏
下载
最近















