查看完整案例

收藏

下载

翻译
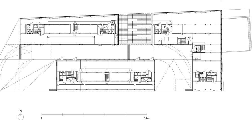
Êîìïëåêñ Cite Des AffairesÊîìïëåêñ Cite Des Affaires/ Cité des Affairesèíôîðìàöèÿ:ñòàòóñðåàëèçîâàíîäàòû20052007/200809.2010ìåñòîÔðàíöèÿ,Ñåíò-ÝòüåíôóíêöèÿÀäìèíèñòðàòèâíî-îôèñíûé/àäìèíèñòðàòèâíî-îôèñíîå çäàíèåÊîìïëåêñ Cite Des AffairesÀðõè.ðó îá ýòîì îáúåêòå:03.11.2010Çäàíèå-çìåÿ Ñåíò-Ýòüåíå çàêîí÷åíî ñòðîèòåëüñòâî àäìèíèñòðàòèâíîãî êîìïëåêñà ïî ïðîåêòó Ìàíóýëü Ãîòðàí.÷èòàòü äàëüøåÊîìïëåêñ Cite Des AffairesÊîìïëåêñ Cite Des AffairesÊîìïëåêñ Cite Des AffairesÊîìïëåêñ Cite Des AffairesÊîìïëåêñ Cite Des AffairesÊîìïëåêñ Cite Des AffairesÊîìïëåêñ Cite Des AffairesÊîìïëåêñ Cite Des AffairesÊîìïëåêñ Cite Des AffairesÊîìïëåêñ Cite Des AffairesÊîìïëåêñ Cite Des AffairesÊîìïëåêñ Cite Des AffairesÊîìïëåêñ Cite Des AffairesÊîìïëåêñ Cite Des AffairesÊîìïëåêñ Cite Des AffairesÊîìïëåêñ Cite Des AffairesÊîìïëåêñ Cite Des AffairesÊîìïëåêñ Cite Des AffairesÊîìïëåêñ Cite Des AffairesÊîìïëåêñ Cite Des AffairesÊîìïëåêñ Cite Des AffairesÊîìïëåêñ Cite Des AffairesÊîìïëåêñ Cite Des AffairesÊîìïëåêñ Cite Des Affaires
客服
消息
收藏
下载
最近


























