查看完整案例

收藏

下载

翻译
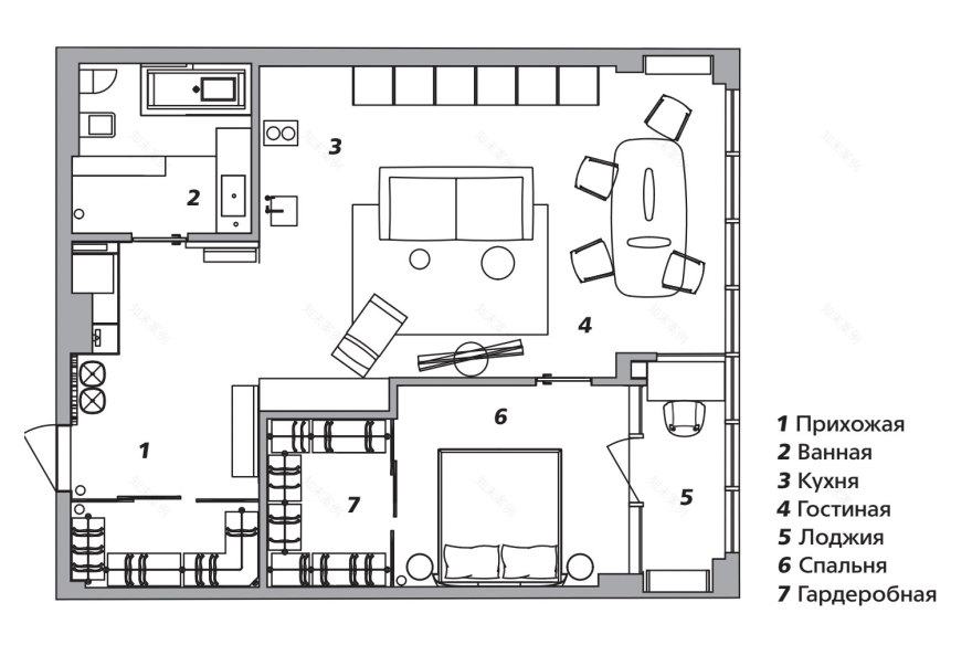
The client bought this modernapartmentin Moscow for her son, but decided to coordinate the design process by herself. According to all the canons of masculine interiors, a scheme of dark shades was chosen as the basis – all the walls in the apartment, as well as kitchen cabinets, are painted in dramatic saturated colors. In general, the interiors are rather strict and minimalistic, with trendy designer furniture, but there is one unexpected feature. Since the client visits her son from time to time, she decided to add a touch of classics to her liking – this is a large artistic stucco molding on the ceiling in the living room. The decision, frankly, is ambiguous and controversial. What do you think? :)See also:Elegant masculine design by Sean Anderson
客服
消息
收藏
下载
最近













