查看完整案例


收藏

下载
INTRODUCTION 项目地点 Address·广州越秀区富力东山新天地 建筑面积 Area·145 ㎡ 设计风格|
Design style·现代简约
硬装设计| Company·广州内外设计
软装设计| Company·广州内外设计
主创设计| Designer·王晓绮 魏闯
项目完成时间| Completion time·2022 年 9 月
摄影师| The photographer·林灿宇
这是一个预约了三年的室内设计,三年前的精装修,业主收楼不满意将就住了进去。时光流逝,业主深感三年时光的珍贵及自己妥协的遗憾,后悔没有最早就一次性整改成自己想要的样子。三年后我们再次拿到这套房子的设计,首先就是给予我们业主未来生活一个清晰而美满的规划,同时提升各个细节的生活品质,创造一间精致又美丽,风格满满的家。
客厅
LIVING ROOM
▲客厅看阳台
▲客厅电视墙
▲客厅看餐厅
风格定位上,我们希望创造大方明亮,有精致都市摩登感,同时不失女性色彩的现代住宅。
色彩上,我们选择灰白+灰紫的搭配。用当下大热的比较有包容性的灰白色奶油色墙面,其间点缀宝格丽紫的石材和丝绒的紫红色家具,跳跃出有质感的暗紫暗红。配合零星金属层架以及家具的哑光金色,来提升精致质感,同时穿插木质家具增添温馨感。
▲客厅木地台
▲客厅岩板背景墙。将阳台纳入室内,包裹进来的大阳台被抬高一步,平时不仅可以休闲娱乐远眺风景,同时也兼顾生活阳台洗衣、晾衣的功能。
多功能房
MULTIFUNCTIONAL ROOM
▲折叠门关闭状态
▲折叠门开启状态
▲多功能房看客厅
▲多功能房
紧挨客厅的客房被拆除改造成可开放/闭合的多功能空间,不仅可以兼顾看书弹琴的需要,必要的时候也可以围蔽玻璃折叠门变成客房使用。
厨餐厅
KITCHEN & DINING ROOM
▲开放西厨
▲厨餐厅
厨餐厅部分将原有的被平均分割后琐碎狭小的空间重新分配。打通原有厨房与生活阳台,将生活阳台纳入中厨。设置开放西厨+餐厅,完善了中西厨分离的设计。在提升居住使用舒适度的同时,也使空间更加通透灵活。
主卧 MASTER BEDROOM
主卧床头
▲主卧床背景
▲主卧看主卫
主卧侵占了一些旁边次卧的位置,做了整面入墙式的衣柜。同时,为了扩大空间视觉效果和有更好的采光,主卫空间我们做了部分通透的玻璃隔断,更好地联动睡眠区,也把我们特色的卫生间设计细节像艺术品一样展示出来。
主卫 MASTER BATHROOM
蛋壳浴缸&灰紫色金属百叶
主卫立柱式台盆
▲主卫
定制一体化岩板洗手台,一个成品的完美落地需要同时对接岩板方、岩板加工方、卫浴龙头方、金属台面层架方及定制柜体方总共五家供应商。成品功能强大,尺寸根据现场严丝合缝。
客房&客卫
GUEST ROOM & BATHROOM
▲客房
▲ 客卫
布局
LAYOUT
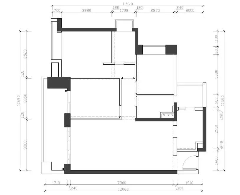
▲平面布置图
▲原始平面图
改造思路总结:
保证三房的情况下尽可能的扩大公共空间,及细化生活使用场景。
1. 将阳台纳入室内,包裹进来的大阳台被抬高一步,平时不仅可以休闲娱乐远眺风景,同时也兼顾生活阳台洗衣、晾衣的功能。
2. 把紧挨客厅的客房拆除改造成可开放/闭合的多功能空间,不仅可以兼顾看书,弹琴的需要,必要的时候也可以围蔽玻璃折叠门变成客房使用。
3. 厨餐厅部分将原有的被平均分割后琐碎狭小的空间重新分配,打通原有厨房与生活阳台,将生活阳台纳入中厨。设置开放西厨+餐厅,完善了中西厨分离的设计,在提升居住使用舒适度的同时也使空间更加通透灵活。
4. 主卧侵占了一些旁边次卧的位置,做了整面入墙式的衣柜。同时为了扩大空间视觉效果和有更好的采光,主卫空间我们做了部分通透的玻璃隔断,更好地联动睡眠区,也把我们特色的卫生间设计细节像艺术品一样展示出来。
特殊定制展示
SPECIAL CUSTOMIZATION
▲砼馆 panDOMO 打样
▲定制色板
主卫墙面微水泥是设计师亲手一点点特调的 Pandomo 灰紫色,好似拥进花朵的怀抱,温柔又浪漫。定板后,以此为依据确认了衣柜的烤漆门板色以及空调出风口、暖风机的瓷化漆颜色,做到了不同材质尽可能的同色。
▲定制木皮打样
运用在餐桌及电视柜抽面的带蓝闪的木饰面,是在油漆未干时手工融入蓝色闪粉,完成后在灯光的照射下折射出星星点点的光芒,低调而美丽。
小感:
内外设计迈入第六个年头,如今落地的作品越来越多。我们一直致力于实景落地与效果图并无差别的宗旨,坚持做好全案设计,拒绝只以效果图示人。
效果图欣赏
LOOK AT THE RENDERINGS
▲客厅及厨餐厅
▲客厅
▲主卧
▲主卫
设计师简介
ABOUT DESIGNERS
王晓绮
魏闯
毕业院校|鲁迅美术学院环境艺术设计系
擅长风格|极简现代、简约中式、美式
设计理念|设计来源于生活,做打动人心的设计
荣誉奖项|Award
2021 第十届筑巢奖大户型公众类提名奖
2021 中国家装设计百强人物
广东电视台房产频道第四届《家居大变身》冠军设计师(2021-2022)
40 UNDER 40 中国(广东)设计杰出青年(2019-2020)
40 UNDER 40 中国(广州)设计杰出青年
2019 第七届中国装饰设计大赛(CBDA)设计奖
2018 年 M+中国高端室内设计年度潜力设计师称号
2018 年广东省建筑装饰协会十大女优秀设计师奖
2018 年红棉中国设计奖年度优秀雅奢空间设计奖
2014 年筑巢奖样板房空间优秀创意奖
2012 年筑巢奖别墅类空间优秀奖
私宅全案设计|商业空间设计
软装陈设设计|景观园林设计
公司| Company:广州内外室内装饰有限公司
地址|Company address: 广州市天河区黄埔大道金岸 582 创艺园金岸楼 301
15975318852
作
品
回
顾
M
O
R
E
内外设计|保利叁悦——复古经典与优雅并存的家族办公室
新作预告:南国花园|用色彩重构浪漫 捕捉诗意生活
新 作 预 告 : 祈 福 缤 纷 汇 | 充 满 自 然 美 学 肌 理 的 自 由 居 所
客服
消息
收藏
下载
最近















































