查看完整案例

收藏

下载

翻译
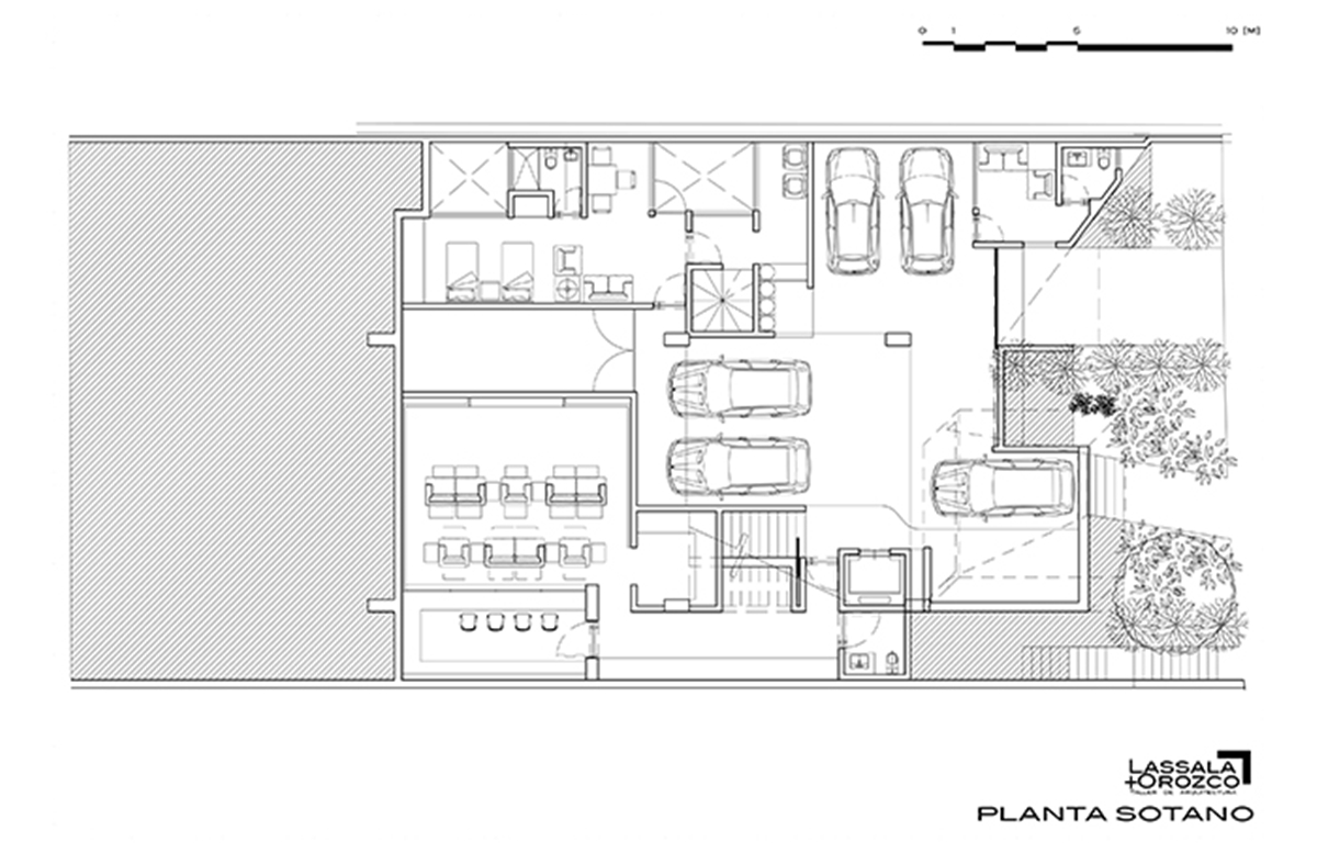
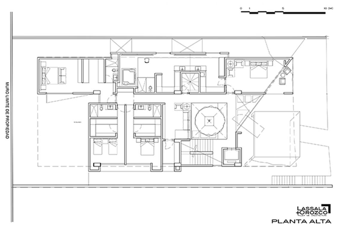
Ngôi nhà hai tầng và một tầng bán hầm, có hồ nước và bể bơi mini trên mái. Công trình lấy concept từ những khối lập phương, biến tấu để thể hiện tính cách chủ nhà.Thông tin công trìnhCasa CCThiết kế: Xưởng kiến trúc Lassala + OrozcoĐịa điểm: Zapopan, Jalisco, Mexico.Các kiến trúc sư phụ trách: Carlos Lassala Mozo, Guillermo R Orozco y Orozco, Nazdira Rodríguez VeraThuyết minh bởi KTSNgôi nhà nằm trong một khu bảo tồn tư nhân ở Zapopan, Jalisco, Mexico. Khu đất nằm giáp ranh với một khu bảo tồn lân cận.Công trình có tên “Casa CC”, là nơi ở cho hai vợ chồng trẻ muốn tìm một nơi nghỉ ngơi yên bình, ổn định cho gia đình và bạn bè. Vì vậy chúng tôi lấy khối lập phương làm concept cho dự án, vì đặc tính cân bằng và bền chắc của nó. Ngôi nhà gồm hai khối lập phương, một khối đại diện cho người chồng và khối còn lại là người vợ.Khối lập phương người chồng dựa theo nghề nghiệp của anh ấy, hơi nghiêng về phía trước, thể hiện sự can đảm và khả năng kiểm soát rủi ro.Ngôi nhà bao gồm một nhà để xe bán hầm có thể chứa ít nhất 5 chiếc xe. 1/4 diện tích hầm là khu thể dục, một phòng tiện ích, bếp nhỏ và khu vực giặt là cùng với phòng chiếu phim 12 chỗ ngồi với khu đựng thức ăn và rượu sâm banh.Mặt bằng tầng bán hầmỞ tầng bán hầm có thang máy lên tầng trệt, hoặc gia chủ có thể đi xuyên qua khối lập phương xoay ở mặt tiền. Bước vào sảnh là một hồ nước. Tầng này gồm một văn phòng, phòng trưng bày có thông tầng, bếp, phòng ăn, phòng trò chơi và khu vườn phía sau. Ở đây có một hồ chứa nước chữa cháy.Tầng trệtTầng 1 có phòng truyền hình với những thiết bị thông minh và một số thiết bị của bể bơi mini trên mái. Tầng này có phòng ngủ chính và 3 phòng ngủ phụ với phòng tắm riêng, bao quanh bởi hành lang nhìn ra hồ nước.Tầng 1Tầng mái có một bể bơi mini, khu vực tiếp khách, phòng đựng thức ăn, ban công ngắm cảnh, lò sưởi và một khu riêng cho các thiết bị điều hòa, pin mặt trời.Tầng máiMột số hình ảnh khác:TheoAABD:HN| kienviet.netBình luận từ FacebookBÀI VIẾT LIÊN QUANDầm Ecobeams và các lợi thế khi sử dụng.Đây chính là công nghệ được áp dụng cho nhà ở giá rẻ của của kiến trúc sư nhóm LuyandaRead moreCông nghệ NovachipCông nghệ Novachip được giới thiệu lần đầu tiên tại Hà Nội vào tháng 5 năm 2006. Trong thời gianRead moreORDOS 100 – Nhà (X)Nguyên tắc tổ chức của ngôi nhà bắt đầu từ việc hiểu hệ thống gạch xây, tính chất vật liệuRead moreLuis Barragan – kiến trúc sư lớn của MexicoLUIS BARRAGAN (1902-1988) là một trong những kiến trúc sư người Mêxicô có ảnh hưởng lớn của thế kỉ 20.Read moreBiệt thự ngoại ô Atherton / KTS. Turnbull Griffin HaesloopNgày nay nhiều người có thu nhập cao thường tìm cho mình một căn hộ ở ngoại ô. Cuối tuần,Read moreBiệt thự Nurbs ở EmpuriabraLà một trong những thành phố biển tuyệt đẹp - nằm trong vịnh Costa Brava - Tây Ban Nha, TpRead more
客服
消息
收藏
下载
最近














