查看完整案例


收藏

下载
这是一场对于时间痕迹的追寻,你我都是时间的体验者。我们对家与幸福的感知力,也正因为时移境迁而变得更加丰盈。
家的简介
飘飘的小小城堡完工之后,她将父母家的改造任务也交给了我们。有了之前的合作经验,这套房子也让我们建立了更深的默契。由于是养老房的升级改造,所以我们将对于未来父母高龄化时的使用感加入了重点考量,对此给到的建议是:养老房是在舒适美观的情况下,能给父母提供最大的便利的生活场所,即便在未来高龄的状态下,也要让他们能够更舒服更有尊严地生活,而不是真要做成印象中的“养老房”,处处提醒他们:你老了。
户型改造
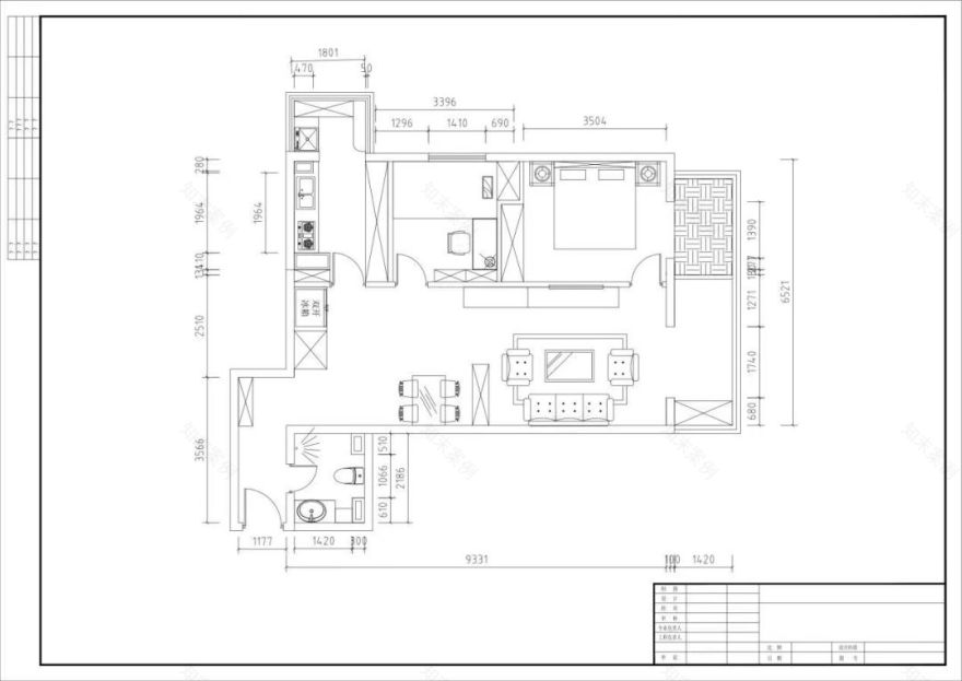
△原始户型图
户型痛点:
①入户空间单调,缺乏收纳功能区;
②卫生间面积太小,难实现干湿分离;
③厨房闭塞,施展不开;
④进深过长,采光不佳;
⑤收纳空间匮乏;
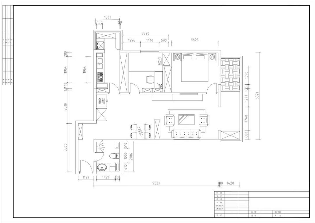
△平面布置图
改造亮点:
①全屋“适老化”设计,提高便捷/舒适度;
②优化客厅布局,采光更完善;
③拆除次卧,拓充厨房空间;
④原始餐厅与厨房合并,释放空间移作他用;
⑤增添储藏间位置,优化储存;
⑥卫生间干湿分离,将洗手区调离,方便日常使用;
⑦全屋地面调整找平,避免高低差,保证全屋无障碍。
△未来预期平面布置图
设计亮点:
①餐厅与主卧之间的以柜代墙的柜体可以拆挪,将其改置到床尾位置后,卧室与餐厅连通,还可放置两张床,即便将来老人有使用轮椅的需求,家里的通道足够活动,各个角落都能来去自如;
②原来的衣帽储藏间可改为保姆间,方便照顾老人。
玄 关
玄关前段布局不变,尽头放置收纳鞋柜,前后畅通无阻,如今南阳台的光线也可照入其中,打破了原有格局带来的局限。
后方新加入了收纳柜体与洗手台,变成 L 形的玄关走廊不再单调,空间层次更丰富,还多了不同的功能区域。PS:因为卧室距离门口的卫生间较远,一路都留了感应夜灯,夜里上厕所路过时会自动亮起,父母表示非常贴心。
走廊
餐桌并入厨房之后,原餐厅位置被释放,玄关至客厅的路线变得畅通,过往起居生活的紧凑感也得以放松,这里的空间功能也变得更完整。
卫生间的干区被挪到走廊,兼顾日常使用,这样不管是进出入户处的卫生间还是平时有盥洗/用水需求,都能轻松解决。
洗手台后方是一个小储藏室,能解决大部分杂物的收纳问题。考虑到老年人将来的需求,未来这里还可改为保姆间,战略性位置让保姆和父母生活的空间既留有距离,又方便日常照顾老人。
沿墙设置的换鞋凳增强了该区域的使用属性,它就像是一个进出门的分界点,提醒了空间的转换。
另:该区域与后方客厅地板材质也发生了转变,由地砖到地板,从触感到颜色,对比强烈,既从视觉上划分了空间,让客厅不显得过于狭长,又在体验感上营造出了不同的氛围。
客厅
客厅原来受到与主卧之间门洞的影响,起居空间被动线切割,失去了让人长时间停留的稳定性。后期调整后,门洞被封闭(主卧与阳台串联,可从阳台进入,加强私密性),沙发与电视的方向也进行了调换,使用感更佳。
与飘飘家相同,这里整屋的木地板也采用了嵌套拼贴的方法,调整空间方正的效果明显,空间划分也一目了然。
与多数的长辈一样,飘飘的妈妈一直很爱在家具上铺上盖布,家里也随处可见各种盖布的身影,我们尊重并夸赞她的习惯与爱好,因为这不光是一种充满记忆连接的时尚轮回,也体现了妈妈对生活的一种态度:细腻而珍重。
家,是生活的痕迹,是与家人共处的时光,是自我成长的轨迹,是永恒的居心地。房间里有不少家具都是沿用了以前的旧家具,我们将这些老物件重归生活,让它们在日用之间,重现光芒。
阳台
阳台的光影透过彩绘的玻璃推拉门被引入室内,让光与景都变成室内的一部分,功能上达到了“隔而不断”的作用。另外,玻璃所流露出的最本真的材质美感也让人惊叹。
卧室
修改了主入口的卧室区域仿佛变成了一个独立的空间,它由与客厅连接的阳台进入,借由与客厅同材质的彩绘玻璃推拉门带来的优渥采光,整体空间亮堂堂,水波纹玻璃透光不透景,很好地兼顾了私密性。
原木+藤编元素是卧室的主题,搭配棉麻材质的软装饰,松弛感扑面而来。
卧室与餐厨区连接的木作墙面定制打造了胡桃木衣柜与梳妆台,并在中间开了花窗,由此形成了一个有趣的互动场景。
花窗作为动静分离的分界线,充满灵活性,关上时,宛如一幅活泼亮眼的装饰画,打开时,又是提供家庭交流的出口,为稍显成熟的空间增添了活力。
厨房
原本的厨房空间逼仄,仅容纳一人在此操作,日常使用极为不便。后期将次卧与其打通,拓宽使用范围,并入餐桌,实现了餐厨一体化。功能排布层层递进,下厨就餐的幸福感飙升,烹饪从此变成了享受。
操作台从以往的一字型变成如今的 L 型布局,中西厨的要求合二为一,再加上中心岛台的辅助,备餐条件成倍升级,日常生活围绕新的尺度重新开始,体验感天翻地覆。PS:简单有效易操作的洗碗机、大吸力烟灶、便捷蒸烤箱等这些年轻人喜欢的智能家电,老人其实更需要。
大面积浅灰调的橱柜+瓷砖搭配,让方寸的烟火之地,也能变得清新、柔和。
中心岛台既方便烹饪备菜,又与餐桌连接,形成环形动线,上方插座方便日常使用小家电,下方还能收纳常用器皿,颜值与功能兼备。灶台后方玻璃砖后是储藏间,透过一线暖暖的光线,既是有趣味的互动,也是身处两个空间时互相照应的窗口。
餐厅
次卧让出来的空间,大部分用作了餐厅功能,它的融入使得餐厨空间变得统一且便捷,这里也成为了家庭最重要的交流空间。
餐桌后方与卧室连通的墙体是以柜代墙,整墙的收纳柜,满足日常收纳/展示的需求的同时,还能兼作水吧台。
PS:该位置也重点兼顾让居住空间保留未来 20 年的可变动性——柜体可以拆挪,取消该隔断后,卧室与餐厅连通,即便将来老人有使用轮椅的需求,通道宽度也足够日常活动,来去自如。
黑胡桃木的餐桌椅、收纳柜体都与卧室衣柜选材一致,偏暗的色调给人带来强烈的包裹感与安全感,它们奠定整体基调,并相互呼应。
打开花窗,视线与光线双重互通,弱化了固有的边界感,空间就此变得流动,让人的视线悠游其中。
卫生间
卫生间面积不到 4㎡,且都是承重墙不好拆改,如何在这么小的空间里实现干湿分离以及放大使用感受变成了重中之重,最后选择把洗手区移出,内部只保留马桶与淋浴区,空间即刻有了发挥的余地。
为了让老年人洗澡时有安全保障,淋浴区加入了墙挂式坐浴器,提升洗澡幸福感的同时,还避免了站姿淋浴过久以致体力不支带来的危险。
壁挂式墙排马桶,水箱都隐藏在墙体里,让空间看起来更整洁美观,也让这个小空间从细节上就杜绝了视觉上的冗杂。
项目名称:送给爸妈的“时间机器”
项目类型:住宅空间设计
设计方:乔和桥治建筑实验室
项目设计:2022
完成年份:2023
主创设计:刘一汀
设计助理:魏亚楠、王佳
建筑面积:95㎡
摄影版权:周琛、飘飘
客服
消息
收藏
下载
最近

















































