查看完整案例

收藏

下载
在传世名宅中品味社区最长湖岸线
以欧式草坪花园与玫瑰半岛点亮您的视野
用尽极致之美,只为非凡品味
Taste the longest lake shoreline in the community among the legendary mansions
Illuminate your vision with European style lawn gardens and rose peninsula
Exhausting the ultimate beauty, just for extraordinary taste
“行無造作,自然而然”是YIN ZUN设计的设计核心理念。该机构坚持做"不堆砌、不刻意",有温度的设计。设计团队带着居者对" 家 "的期盼开启新的征途。
The core concept of YIN ZUN's design is "action without artificiality, nature". The organization adhere to do "no piling, no deliberate", temperature design. The design team starts a new journey with the expectation of "home".
Slow tasting of human fireworks and colors,
leisurely observation of everything, long years
慢品人间烟火色
闲观万事岁月长
兼具浪漫雅致的情调
质感细腻且高级温柔
目光所及,皆是精致
A romantic and elegant atmosphere
Delicate texture and advanced gentleness
Everything in sight is exquisite
家
是一盏灯 一个屋檐
一张柔软的床 是目之所及的温暖
用自然之色 慢调自然而然的生活
home
It's a lamp, a roof
A soft bed is as warm as the eye can see
Slow down the natural life with natural colors
ocation 项目地址 : 成都 | 蔚蓝.卡地亚
Project Design 主案设计 : 曹瑜 cyan
Detailed Design 深化设计:叶韬 watson
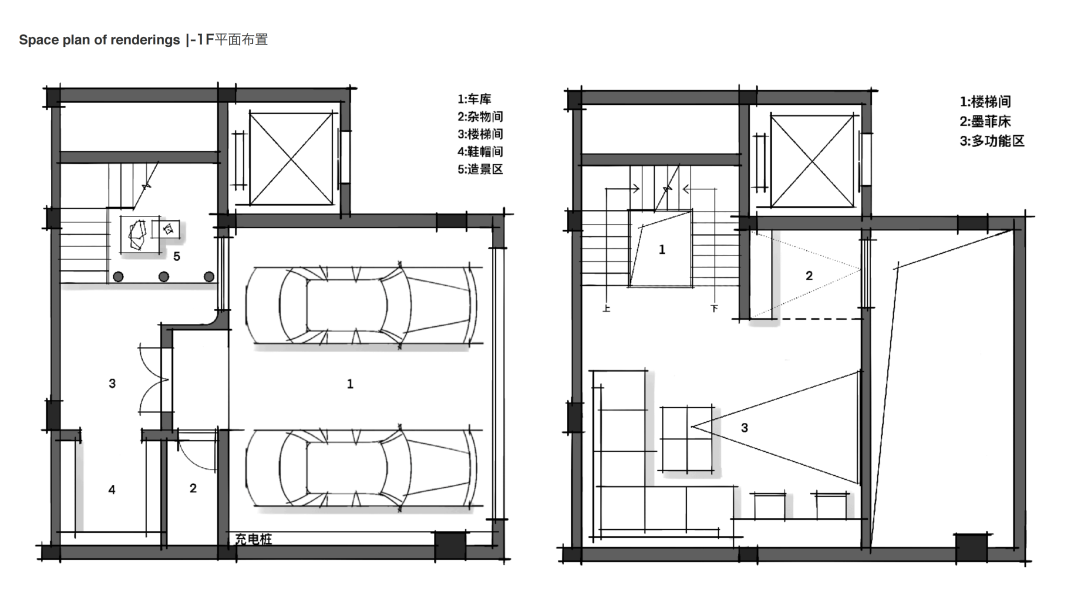
Area 项目面积 :383㎡
Design Agency 设计机构:上海胤尊
Project Time 设计时间 :2021 · 12
WeChaet:q3069459
ADD:四川省成都市锦江区德必川报易园b218
客服
消息
收藏
下载
最近












