查看完整案例

收藏

下载
洛阳罗曼罗兰文化传播旗下媒体:
《建筑装饰》杂志、AD建筑装饰微平台
项目名称:塵香·茶
项目位置:河南洛阳
项目面积:160平方米
项目风格:自然
主案设计:雷爱君
设计公司:上舍空间设计
主要材料:石材、原木、质感涂料
摄 影 师:邵格影像
AD建筑装饰
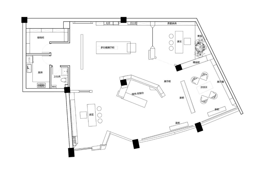
设 计 平 面
Plan Of Design
∆平面布置图
设 计 阐 释
Design Interpretation
好的东西往往不是单一的口味,而是在淡雅中层次分明,如君臣佐使。各种味道之间能相互衬托提升,延续彼此的生命力。余味且悠长的茶,是让人享受的,它流动、变幻,如同一出话剧,有序幕,有高潮,有结尾。
无论从立意、色彩、空间定调,
“塵香·茶”的设计师雷爱君都严格遵循了原始质朴的整体基调,原始的黄土色系,自然的木纹肌理,粗犷的石材墙面,温润安稳的线条细节,并运用现代块面状的设计手法,极力营造一种中国式的安静、随性之美。
它不拘泥于某种风格形式,当空间设计营造了这种禅心留白的氛围,所表现出来的让人在空间里自然而然的静心恬淡,没有过多的装饰符号,一切在于营造。
在功能分区上也有设计师雷爱君自己的考量。“好的商业空间设计一定是与其后期商业运作紧密相关”,在大厅招待区设置冲泡茶台,后方则是包装独特的产品陈列,让顾客在与茶艺师的互动中更加关注品牌与产品。
从前台转向空间后方,则是会客厅,可举办一些小型雅集活动。户外的阳光暖暖的投射进来,小景营造其中,少一些繁杂,多一些趣味。一呼一吸,一吐一纳之间感受自然的韵律。
设 计 主 创
Major Designer
雷爱君
上舍空间设计事务所
设计
总监
上 舍 空 间 设 计
Shangshe Space Design
一家具有人文精神的精品型设计工作室,
倾心于营造有感觉的空间。
坚持以人为本的原则进行室内设计,
强调文化、品质的完美融合,
倡导更优质的设计生活态度。
代 表 作 品
Representative Works
往期回顾
回顾|设计师高端品牌品鉴会·走进巴夏
案例|凡本空间设计:栖居隐自然
案例|大象空间设计:日料餐厅
客服
消息
收藏
下载
最近





























