查看完整案例

收藏

下载
距离 TK 百年计划马上只剩 89 年
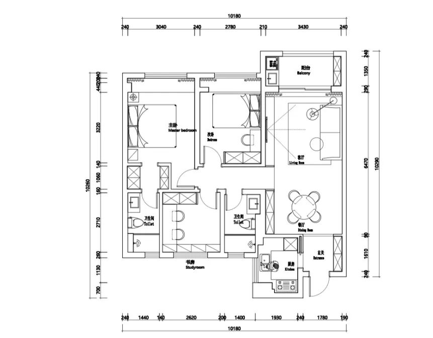
地址:秀隐翠园
面积:105㎡
风格定位 : 混搭风
户型格局 : 3 房 2 厅 2 卫
项目类型:精装修改造
# 让有想法的人住在有想法的屋子里 #
The House | The Home
理想的家,是有让人心安的时刻;是在喧闹嘈杂的城市里,有一片属于自己的平静空间;中性偏暖的色调,恰到好处的细节与浪漫,经得起时间的考验;在生活需求与感官体验上,呈现最纯粹的美感与力量,也是对设计美学艺术的理解与诠释;而优雅则是永不退缩的美,愈多的设计遐想,愈释放出生活的温润与含蓄。
· Living Room
客厅
空间干净利落,配色以低饱和度的色彩为主,视觉呈现上更加温柔。主墙通刷暖白艺术漆,搭配大理石地砖,将客厅延伸至阳台,整体空间更加通透宽敞,开阔视野。
落地窗前放置椅子、地毯以及绿植,就着日光、烛光,独处的氛围感油然而生。
简约的线条相互碰撞,覆以丰富无穷的想象力;大理石边几与装饰画相互交叠,在时光中温存,搭配一抹绿意,为空间增添灵动之感,营造远离繁嚣、随性自由的静谧慢调生活。
低饱和的配色中和了一些材质的清冷以及硬朗,以一种平静的方式与材质交相渗透,干净的色调、灵动自然的线条美学,协调的比例延伸在空间中,增加了温馨感与别样的调性。
· Restaurant
餐厅
餐厅延续客厅清爽的硬装设计,餐桌搭配绿植,呼吸感十足。木质餐椅,坚实温润,营造出的温柔氛围给予居者一种归属感。精致吊灯带着复古色调,提升了用餐的浪漫氛围。
柔和的配色演绎出和缓的空间节奏,赋予空间更多的温度与舒适愉悦之感;木色与白色的清爽基调,在简单中散发出一种沉稳安定的情绪感染力,从变化中凸显了空间之美,于细节中营造出了“诗意的浪漫”。· Master bedroom 主卧
从客厅延伸到卧室,卧室不仅是睡眠的场所,亦是放松心情的好地方。白色墙面简单耐看,与黑色形成对比,视觉上简洁统一。在有限的空间内创造丰富而多元的设计,简约大气的空间结构搭配恰到好处的雅致意蕴。
无主灯设计,遵循简洁舒适的原则,简简单单的黑白配色,不失高级感,床头搭配软装吊灯,夜幕降临,微微透出的暖光,为卧室带来一丝暖意,整个空间由内而外散发着一份怡然自得。
· study
书房
简洁安静的书房,不失高级与细腻,氛围感直接拉满,它是居者精神的自留地,也是留给自己独处的时间与空间。
宽敞利落的双人书桌,同时也是游戏房;装饰造型去繁就简,开放式隔板,既有收纳作用,又有装饰作用,让原本沉闷的空间多了一丝轻盈感。
黑色百叶帘可随时调节光线,若隐若现的感觉给沉稳的黑色带来一点清透,利用靠窗次面空间,加入简洁的柜体,无把手的柜门设计,干净利落。
·
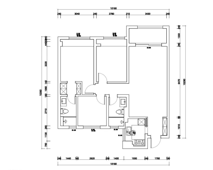
平面图
- 原始结构图
- 平面布置图
- 案例单品 -
Case item
? / Leo
? / 惠子
✍ / 惠子
关于屋主
About The Owner
Q:是否有宠物,宠物的名字是什么呢?
有一只快 7 岁的小母猫,叫奶酪。
Q:买这个房子有什么故事?
当时很喜欢这个小区的设计风格,尤其是小区正中的下沉庭院,超宽的水幕墙,一下就击中了我的心,所以就毫不犹豫下手了。第一次摇号买房就摇中了,觉得和这个小区也是很有缘分吧。
Q:对家的构想:
因为之前一直在租房,租的每套房子都会有不满意的地方,所以对自己的家会有很多很细节的构想。比如要有足够的储物空间,要有明亮温暖的光线,要有一间双人书房和游戏房;餐桌要是圆形的,这样一家人可以围坐在一起吃火锅,这是我能想到最幸福温馨的场景;还要铺一张大地毯,寒冷的冬天坐在地毯上,感受地暖蒸腾的热气,看着猫咪慵懒的睡觉…很高兴我的设计师都帮我一一实现啦!
Q:在家里最喜欢的地方和消遣方式是什么?
最喜欢的地方就是客厅的地毯了,经常靠着沙发坐在地毯上和家人一起看电视,或者看着家人打游戏;还有书房两米多长的双人书桌,两个人一起坐在书桌前各自看书或者看电脑,放着音乐,会觉得内心非常安定和满足。
Q:你最庆幸这次装修做的哪些决定?
一个是客厅电视背景墙做了满墙电视柜,到目前为止还没有放满,会让我很有安全感,家里也显得很整洁;还有客厅的精装修吊顶拆掉了,层高就会显得高一些,看起来更开阔,加上做了两个拱门,我想要的轻法式风格就凸显出来了。
Q:装修过程中有什么开心或者感动的事情?
我看到很多人的装修经验,都踩了很多坑,很心累,装之前我还是有点担心的,但是我发现我这次装修过程意外很顺利。主要是因为遇到了非常靠谱的设计师和项目经理,包括装修团队的师傅们也都很专业。我也没有天天呆在工地里,就是每个环节需要验收了我就过来转一圈,整个过程很省心。
Q:室内装饰和时尚灵感的来源是什么?
Q:请给即将装修的朋友一点小建议吧
找个靠谱的设计公司,靠谱的设计师和项目经理真的很重要。多在网上看别人的踩坑视频也挺重要的,我觉得对我帮助也很大。
你最想知道这个家的哪个细节?留言告诉我们吧。>>>>>>>新作精选 New Works Featured>>>>>>
@版权声明
本文为 TK 设计&之和家居版权所有,欢迎转发朋友圈
客服
消息
收藏
下载
最近




































