查看完整案例

收藏

下载

翻译
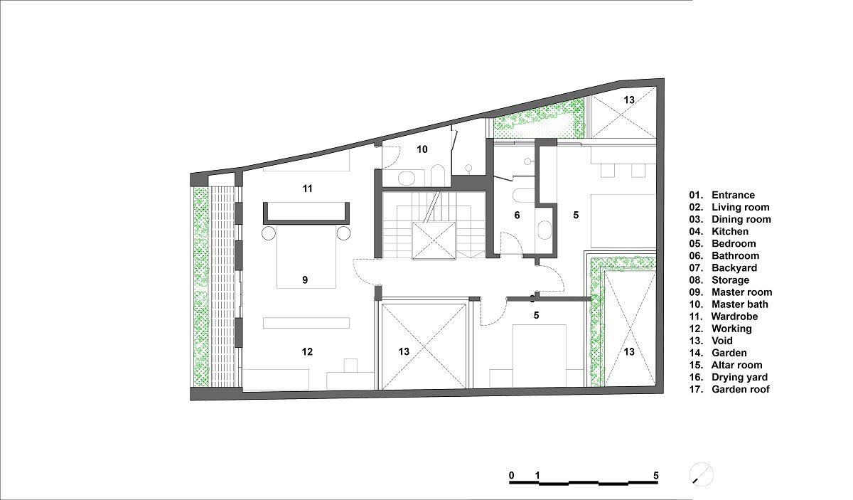
Do quá trình đô thị hóa diễn ra với tốc độ chóng mặt, môi trường thành phố đang bị ảnh hưởng nghiêm trọng, nhiều nhà phố tại Việt Nam thiếu không gian xanh cần thiết, thêm vào đó, tốc độ sống và làm việc nhanh khiến cho sự kết nối của các thành viên trong gia đình Việt thiếu đi sự gắn kết. Ngoài ra, nguồn thực phẩm rau sạch, đảm bảo chất lượng cũng là mối lưu tâm của nhiều gia đình. Chứng kiến thực trạng đó, kiến trúc sư ARO studio đã đem lại giải pháp cho các vấn đề trên để mang lại chất lượng tốt hơn cho cư dân thành thị.Ngôi nhà nằm trong khu đô thị cũ của thành phố Hà Nội mật độ cao, vị trí ở khu vực trũng nhất của thành phố nên quanh năm bị ngập nước vào mùa mưa bởi vậy tầng đầu tiên của ngôi nhà phải được nâng lên cao hơn mực nước ngập cao nhất hàng năm.Mặt trước của ngôi nhàNgôi nhà được thiết kế cho một gia đình Việt Nam điển hình ba thế hệ. Mỗi thế hệ có một lối sinh hoạt và nhu cầu khác nhau.Thế hệ thứ nhất lớn tuổi nhất xuất thân từ nông dân nên thói quen làm nông nghiệp được yêu cầu thiết lập, thế hệ thứ hai đang ở độ tuổi lao động nên cần có không gian thư giãn tiếp xúc với thiên nhiên nhiều hơn sau giờ làm việc căng thẳng và cuối cùng là thế hệ thứ ba nhu cầu cần nhất là luôn được tiếp xúc với thiên nhiên để được hoạt động khám phá hàng ngày. Từ đó các khối không gian xuất hiện một cách tự nhiên và hòa quyện vào nhau.Mặt cắt ngôi nhàMặt bằng tầng 1Mặt bằng tầng 2Mặt bằng tầng 3Hình thể của khu đất là một hình nhiều hướng , nhiều góc méo, bình thường là một bất lợi. Nhưng các kiến trúc sư đã tận dụng bất lợi đó tạo nên lợi thế để làm cho không gian trở nên vuông vắn và dễ sử dụng hơn, các góc méo được tận dụng tối đa để tạo ra các khoảng trống lấy ánh sáng và kết hợp với các không gian xanh. Hầu như các không gian chức năng chính luôn có tới hai mặt tiếp xúc nguồn ánh sáng tự nhiên và được tiếp giáp với không gian xanh. Kết hợp trong không gian xanh luôn kèm theo chất liệu địa phương và tự nhiên làm cho dự án trở nên thêm phần đặc biệt, bức tường đá Granit ghép tạo sự liên hệ với các lớp đá xếp tầng trong tự nhiên.Không gian xanh của ngôi nhàMặt tiền ngôi nhà chủ yếu nghiêng về hướng đông nên thuận tiện cho hướng đón gió vào mùa nóng và bất lợi về mùa lạnh nên không gian yêu cầu phải có sự linh hoạt về đóng mở. Các khu vườn xanh trên mái nhà không những bảo vệ cư dân khỏi ánh sáng trực tiếp của mặt trời, tiếng ồn đường phố và ô nhiễm mà còn là nơi sản xuất rau sạch cung cấp dư thừa cho ngôi nhà và hàng xóm xung quanh. Hơn nữa, thông gió tự nhiên qua mặt tiền cùng với ba giếng trời cho phép ngôi nhà này tiết kiệm năng lượng lớn trong điều kiện khí hậu khắc nghiệt của miền bắc Việt Nam.Khu vườn xanh trên mái nhàMột số hình ảnh khác của ngôi nhà:Gallery not found.Bình luận từ FacebookBÀI VIẾT LIÊN QUANDầm Ecobeams và các lợi thế khi sử dụng.Đây chính là công nghệ được áp dụng cho nhà ở giá rẻ của của kiến trúc sư nhóm LuyandaRead moreCông nghệ NovachipCông nghệ Novachip được giới thiệu lần đầu tiên tại Hà Nội vào tháng 5 năm 2006. Trong thời gianRead moreORDOS 100 #1: Thiết kế của Alejandro Aravena ArchitectsNằm ở ô đất số 32 của dự án Ordos, biệt thự gồm 3 tầng xây bằng gạch, có sânRead more7 nguyên tắc sử dụng GươngGương là một trong những vật dụng trang trí nhà tao nhã, hữu ích nhất. Sau đây là 7 nguyênRead moreSơn hay không sơn tủ bếp bằng gỗBao giờ khi nhìn ngắm những chiếc tủ bếp xinh đẹp, bạn tự hỏi: Có nên sơn những chiếc tủRead moreHọc cách làm nhà mát như người BrazilCác KTS Brazil của Studio mk27 vừa hoàn thành một ngôi nhà sinh thái mang đặc trưng kiến trúc truyềnRead more
客服
消息
收藏
下载
最近














