查看完整案例

收藏

下载

翻译
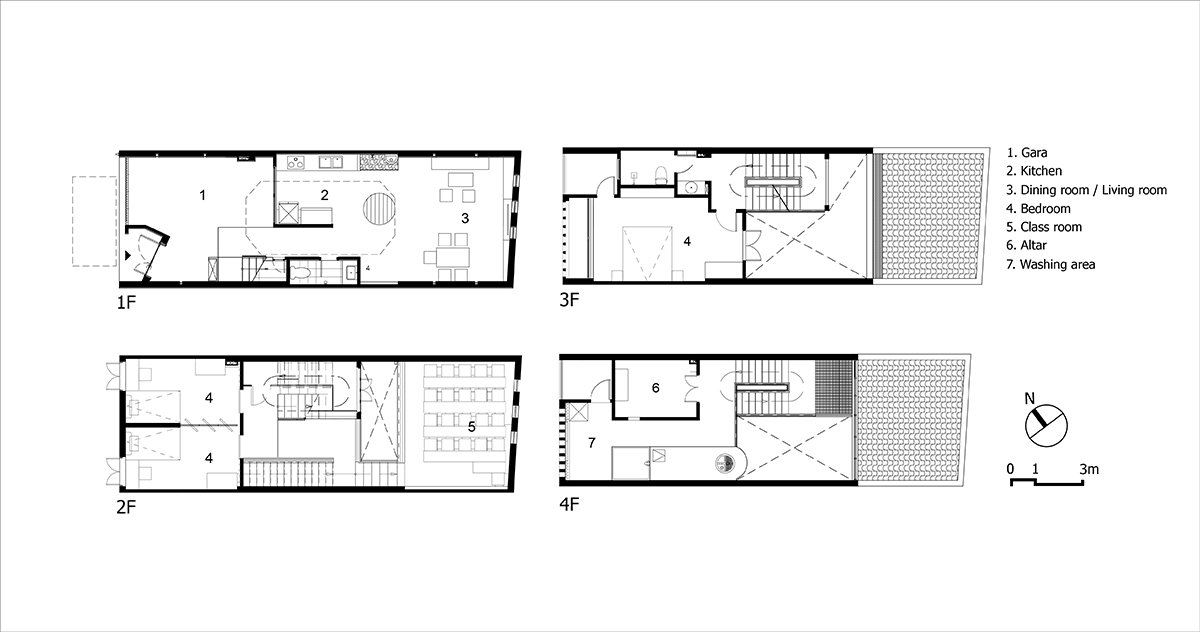
NH Village Architects thực hiệnGutter housevới tổng diện tích lên tới 210m2 tại Phù Cừ, Hưng Yên – một khu vực nổi tiếng với văn hóa canh tác lúa nước. Khách hàng đến từ vùng nông thôn và luôn sử dụng nước trong cuộc sống hàng ngày nên khi xây ngôi nhà mới họ muốn có thể tận dụng nước mưa càng nhiều càng tốt.Tên công trình:Gutter HouseKiến trúc sư:Trần Đại NghĩaĐơn vị:NH Village ArchitectsĐịa điểm xây dựng:Hưng YênMặt bằng Gutter HouseBên thiết kế có phương án đưa những bể nước mưa quen thuộc trong cảnh quan nông thôn Việt Nam vào mô hình nhà ống hiện đại. Hình ảnh quen thuộc của bể chứa nước mưa ở góc sân nhà truyền thống được nhìn thấy ở khắp mọi nơi.Mặt cắt Gutter HouseMái nhà được thiết kế chia ra hai phần dạng hình cánh bướm với máng xối tích hợp với dầm nhà cỡ lớn. Tất cả các yếu tố thu nước như máng xối, bể chứa nước và ống thoát nước đều có thể nhìn thấy được. Cầu thang được đặt ở trung tâm, liên kết với mỗi tầng để mọi người ở bên trong có thể nhìn thấy mái nhà và cảnh quan bên ngoài để có thể ngắm mưa mưa thông qua các cửa sổ cũng như lắng nghe tiếng mưa. Ngoài nước, ngôi nhà được thiết kế liên quan đến ánh sáng mặt trời và lưu thông gió để tiết kiệm năng lượng để mọi người có cảm giác mình đang sống hòa vào thiên nhiên.Thiết kế này vô cùng sinh thái thể hiện qua việc tái sử dụng nước mưa, tối ưu hóa ánh sáng ban ngày và khai thác các vật liệu địa phương như gạch đất nung và cọc tre.Mặt tiền chính của ngôi nhà đối mặt với hướng Tây Bắc, do đó khá nóng vào mùa hè và lạnh vào mùa đông. Mặt tiền hai lớp đem lại sự riêng tư cho chủ nhà và bảo vệ ngôi nhà khỏi những điều kiện thời tiết bất lợi: bức xạ mặt trời quá nhiều và gió lạnh.Bình luận từ FacebookBÀI VIẾT LIÊN QUANDầm Ecobeams và các lợi thế khi sử dụng.Đây chính là công nghệ được áp dụng cho nhà ở giá rẻ của của kiến trúc sư nhóm LuyandaRead moreCông nghệ NovachipCông nghệ Novachip được giới thiệu lần đầu tiên tại Hà Nội vào tháng 5 năm 2006. Trong thời gianRead morePhỏng vấn KTS Glenn MurcuttMột cuộc phỏng vấn vui vẻ với KTS Glenn Murcutt - người đạt giải Pritzker 2002Kiến trúc xanh trong các khu dân cưThông thường, kiến trúc xanh hay kiến trúc bền vững tập trung vào việc nâng cao hiệu quả của sửRead moreNhà máy xanh ở Sri Lanka – MAS Intimates ThurulieẤn phẩm mới mô tả các phương pháp tiếp cận bền vững với các yếu tố xã hội, kinh tế,Read moreORDOS 100 #1: Thiết kế của Alejandro Aravena ArchitectsNằm ở ô đất số 32 của dự án Ordos, biệt thự gồm 3 tầng xây bằng gạch, có sânRead more
客服
消息
收藏
下载
最近














