查看完整案例

收藏

下载

翻译
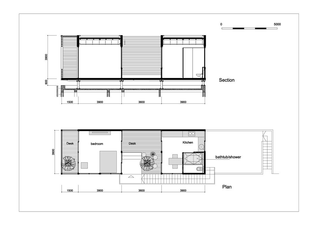
Dự án nhà hộp CUBE house là nghiên cứu củaIDEE Architectscho một căn hộ nhỏ độc lập, được nằm trên mái một căn nhà phố. Tìm kiếm một giải pháp cho một số vấn đề về nhà ở ở Việt Nam như nhà thu nhập thấp, nhà nổi vùng lũ lụt, nhà lắp ghép nhanh chóng và không gian ở trong đô thị chật hẹp.Thông tin công trìnhTên công trình:CUBE House;Địa điểm:Cửa Bắc, Hà Nội;Diện tích:51m2;Năm hoàn thành:2016;Thiết kế:IDEE Architects;KTS chính:Trần Ngọc Linh, Nguyễn Huy Hải, Phan Minh Hải;Hình ảnh:Triệu Chiến.Ứng dụng vật liệu nhẹ, giải pháp lắp ghép theo module, có thể mở rộng theo các giai đoạn khác nhau, giải pháp chống nắng, chống ồn, nội thất thông minh có thể thay đổi theo công năng sử dụng khác nhau và giải pháp năng lượng mặt trời, xử lý chất thải tại chỗ là các ứng dụng chính của nghiên cứu này.Các vật liệu nhẹ được sử dụng triệt để trong công trìnhCăn hộ hình khối hộp đơn giản được dựng bằng thép tiền chế được lắp ghép nhanh gọn và nhẹ. Đường nét tối giản sạch sẽ, ánh sáng tự nhiên phong phú, kết nối với ngoài trời và bên trong. Toàn bộ khối hộp được tách khỏi mái nhà bên dưới bằng các cột chống thép.Tận dụng tối đa nguồn ánh sáng tự nhiênKhu vực bếpCác không gian sống nối tiếp trong Cube HouseCăn hộ bao gồm 1 sảnh chính ở chính giữa được tiếp cận qua một cầu thang dẫn từ mái nhà phía dưới đi lên. Từ đây kết nối với 2 không gian phòng ngủ và phòng ăn, bếp, wc bên cạnh.Một ban công thoáng từ phòng ngủ nhìn xuống cuộc sống nhộn nhịp bên dưới con phố trung tâm Hà Nội, trong khi sân giữa lại có sự tĩnh lặng của con ngõ nhỏ, đó là các không gian đặc trưng của thành phố này.Mặt bằng công trìnhCube House là một căn hộ nhỏ độc lập được xây dựng phía trên mái của một căn nhà nằm trên phố Cửa BắcHình ảnh mô hình của Cube HouseXem hình ảnh đầy đủ của công trình tại đây:Gallery not found.Bình luận từ FacebookBÀI VIẾT LIÊN QUANQuy chế thí điểm xây dựng cải tạo các khu nhà chung cư cũ tại Hà NộiSự đồng hành giữa lợi ích của Nhà nước, thành phố, DN và người dân, trong đó lấy lợi íchRead moreDầm Ecobeams và các lợi thế khi sử dụng.Đây chính là công nghệ được áp dụng cho nhà ở giá rẻ của của kiến trúc sư nhóm LuyandaRead moreCông nghệ NovachipCông nghệ Novachip được giới thiệu lần đầu tiên tại Hà Nội vào tháng 5 năm 2006. Trong thời gianRead moreORDOS 100 – Nhà (X)Nguyên tắc tổ chức của ngôi nhà bắt đầu từ việc hiểu hệ thống gạch xây, tính chất vật liệuRead more‘Hà Nội sẽ quy hoạch 10 đô thị vệ tinh’Dự báo Hà Nội sẽ có 10 đô thị vệ tinh và một sân bay dự phòng. Trụ sở cácRead moreCuộc thi sáng tác Kiến trúc: “Vì thủ đô Hà Nội hôm nay và ngày mai”Cuộc thi sáng tác Kiến trúc: “ Vì thủ đô Hà Nội hôm nay và ngày mai” do Hội KiếnRead more
客服
消息
收藏
下载
最近















