查看完整案例

收藏

下载

翻译
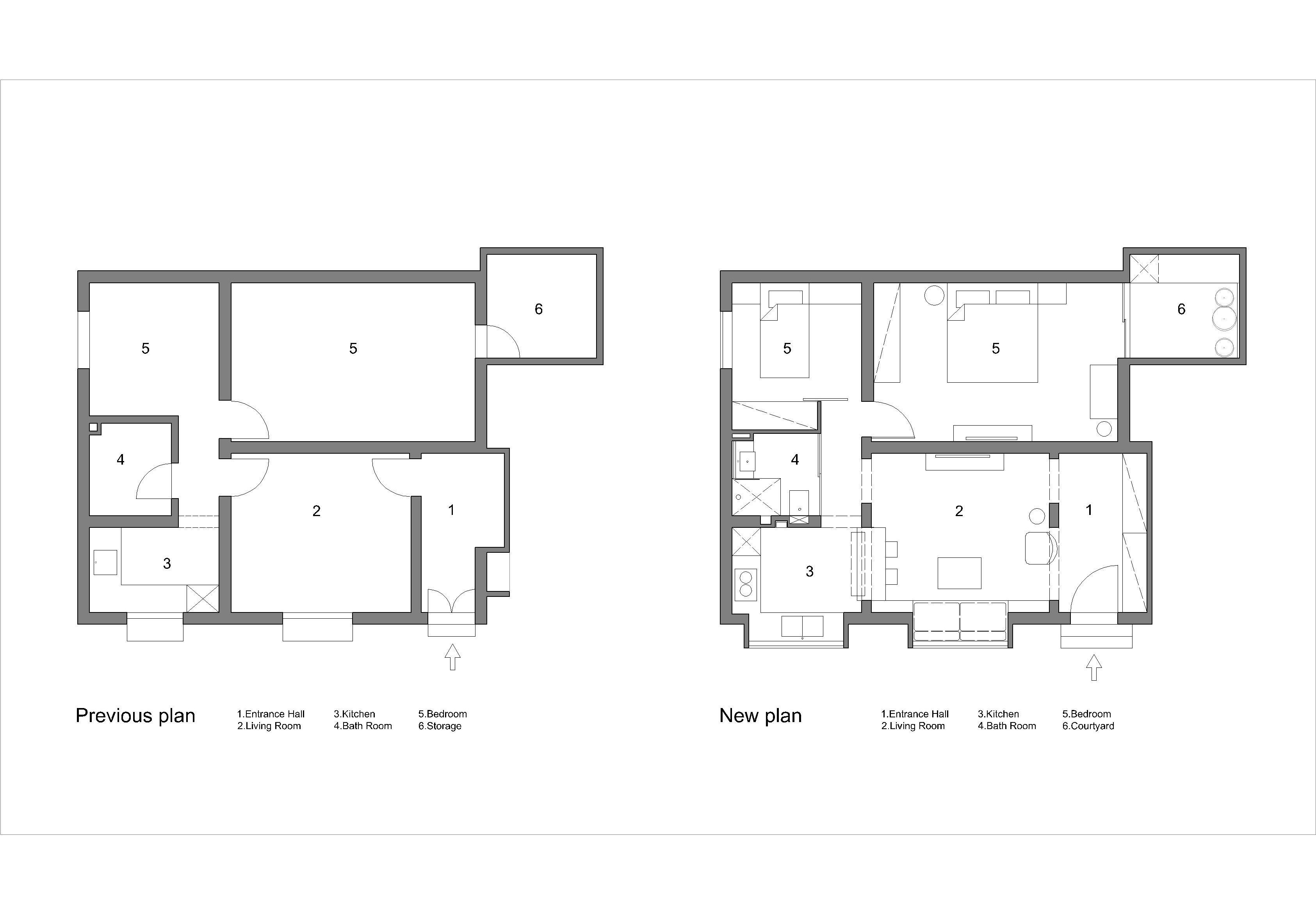
Dự án nằm tại tầng một của khu nhà tập thể cũ được xây dựng từ những năm 1980s, với thiết kế và công nghệ xây dựng mang điển hình thời bao cấp. Mong muốn của chủ nhà là cải tạo căn hộ giữ được sự thân thiện vốn có của khu tập thể, song vẫn đảm bảo chất lượng sống tốt hơn và không gian hiện đại hơn.Thông tin công trình:Yêu cầu thiết kế: Cải tạo căn hộ tập thể tầng một;Địa điểm: Phố Đội Cung, Hai Bà Trưng, Hà Nội;Diện tích: 70m2;Năm hoàn thành: 2016;Thiết kế:Idee ArchitectsKiến trúc sư chính: Trần Ngọc Linh;Nhóm thực hiện: Nguyễn Huy Hải, Nguyễn Đắc Nguyên, Nguyễn Ngọc Quỳnh, Nguyễn Đăng Quang, Đỗ Văn Thoán;Ảnh: Triệu Chiến.Hiện trạng mặt tiền ngôi nhà trước cải tạo…… và sau cải tạoTrước khi có sự can thiệp của kiến trúc sư, không gian được chia nhỏ thành các phòng riêng biệt nối nhau, ánh sáng rất hạn chế và thông gió kém tạo môi trường rất ẩm thấp và tối. Hệ kết cấu pha trộn giữa tường chịu lực, tấm đan lắp ghép và bê tông đổ tại chỗ.Không gian trước cải tạo được chia nhỏ thành các phòng riêng biệt nối nhau, chất lượng môi trường thấpQua một vài lần cải tạo đã để lại nhiều lớp vật liệu phủ lên nhau. Bù lại, không gian sống trong quần thể khá yên tĩnh, bên ngoài là một khoảng sân rộng rãi với nhiều cây và ánh sáng.Các kiến trúc sư củaIdee architectsđơn giản hóa việc ngăn chia phòng để có được không gian lớn hơn và sáng hơn. Phần quan trọng nhất là phòng khách, trái tim của căn hộ, nơi có một bằng ghế dài bên cửa sổ và một bàn ăn nằm ngang ngăn chia một cách ước lệ với phòng bếp, cùng các giá sách lớn hai bên ghế nằm dọc theo bức tường, có chức năng như ghế, kệ, không gian lưu trữ , bàn ăn và bếp.Không gian phòng kháchKhu vực hành lang chungMặt bằng căn hộ trước và sau cải tạoCác bố trí này tập hợp tất cả các hoạt động của căn hộ, kết nối chúng lại và trả lại khoảng không gian thoáng ở phía trong của căn phòng.Hai ô cửa sổ lớn được mở rộng nhằm tăng tầm nhìn ra bên ngoài, lấy thêm được nhiều ánh sáng và quan trọng hơn, tạo ra các hộc để ghế sofa và bệ bếp. Tạo ra các hộp sáng tại các vị trí hay được sử dụng nhất.Hai ô cửa sổ lớn được mở rộng nhằm tăng tầm nhìn ra bên ngoàiKTS thiết kế các khuôn vòm cao, tạo các ranh giới về công năng sử dung khác nhau, nhưng với các ô cửa lớn, các không gian vẫn được kết nối liên tục tạo nên cảm giác rộng rãi. Trần căn hộ được đưa cao tối đa đến tận hệ kết cấu panel bê tông bên trên, hệ thống đèn vì thế được bố trí nổi.Tăng khả năng lưu trữ của căn hộ bằng rất nhiều hệ tủ âm tường. Vệ sinh được thiết kế với các chi tiết được bố trí âm tường tối đa nhằm tạo các công năng sử dụng, bức tường giữa bếp và WC được tận dụng giấu được cả hệ thống két nước xí, hộc để đồ phòng tắm và một giá để đồ cho phòng bếp.Khối vệ sinhĐể cải thiện ánh sáng tự nhiên và tạo sự đồng nhất chúng tôi sơn toàn bộ căn hộ bằng màu trắng sáng, do đó, hài hòa về sắc độ với các tường ốp gạch và màu sắc của nó. Vật liệu ốp lát được nhắc lại một chút với bức tường gạch bông nhớ lại cảm giác của phong cách nhưng năm 1980s, tạo sự kết nối với lịch sử của căn nhà.Không gian bếpCác vật liệu mới dù rõ ràng đương đại, hài hòa với cái cũ để duy trì sự nhận thức thống nhất của không gian.Dựa trên một cánh cửa trượt với phòng đa năng, chúng ta có thể biến đổi không gian để cung cấp sự riêng tư cần thiết, gần gũi hơn, hoặc mở rộng không gian. Các cửa ra vào, mà trượt có thể nhìn thấy, tạo ra một thành phần năng động của các giới hạn.Phòng ngủ được mở rộng không gian và thêm ánh sáng bằng việc mở mái của khu vực kho tạo thành sân sau, nơi bố trí nhiều cây xanh.Xem hình ảnh đầy đủ về công trình tại đây:Gallery not found.Bình luận từ FacebookBÀI VIẾT LIÊN QUANQuy chế thí điểm xây dựng cải tạo các khu nhà chung cư cũ tại Hà NộiSự đồng hành giữa lợi ích của Nhà nước, thành phố, DN và người dân, trong đó lấy lợi íchRead moreDầm Ecobeams và các lợi thế khi sử dụng.Đây chính là công nghệ được áp dụng cho nhà ở giá rẻ của của kiến trúc sư nhóm LuyandaRead moreDự án cải tạo tháp Eiffel của SERERODự án là sự mở rộng sàn của tầng đỉnh tháp bằng cách ghép một cấu trúc carbon Kelvar cóRead moreCông nghệ NovachipCông nghệ Novachip được giới thiệu lần đầu tiên tại Hà Nội vào tháng 5 năm 2006. Trong thời gianRead more‘Hà Nội sẽ quy hoạch 10 đô thị vệ tinh’Dự báo Hà Nội sẽ có 10 đô thị vệ tinh và một sân bay dự phòng. Trụ sở cácRead moreCuộc thi sáng tác Kiến trúc: “Vì thủ đô Hà Nội hôm nay và ngày mai”Cuộc thi sáng tác Kiến trúc: “ Vì thủ đô Hà Nội hôm nay và ngày mai” do Hội KiếnRead more
客服
消息
收藏
下载
最近


















