查看完整案例


收藏

下载
城市规划, 可持续发展, 居住建筑, Auroville, 印度
建筑设计:Auroville Design Consultant
面积:1753 m²
项目年份:2018
摄影师: Akshay Arora, John Mandeen
厂家:AutoDesk, Earth - cement - agreegate (C&D) mix, JSW Cement & Priya Cement, Local traditional technique in India, Locally Made, MRF, Quarried and sold via local dealers (non branded), TISCON/ VIZAG, Trimble, Waste collected from stone factories, Waste from construciton sites around
主创建筑师:Suhasini Ayer
设计团队:Suhasini Ayer, Gavury Ramadas, Ramya Prasad, Abraham Ninan, Gnana Arul
结构工程师:Dr. S. Kothandaraman
景观设计:Auroville Design Consultants
顾问:Auroville Earth Institute, Sunlit future, Auroville Energy Services
City:Auroville
Country:印度
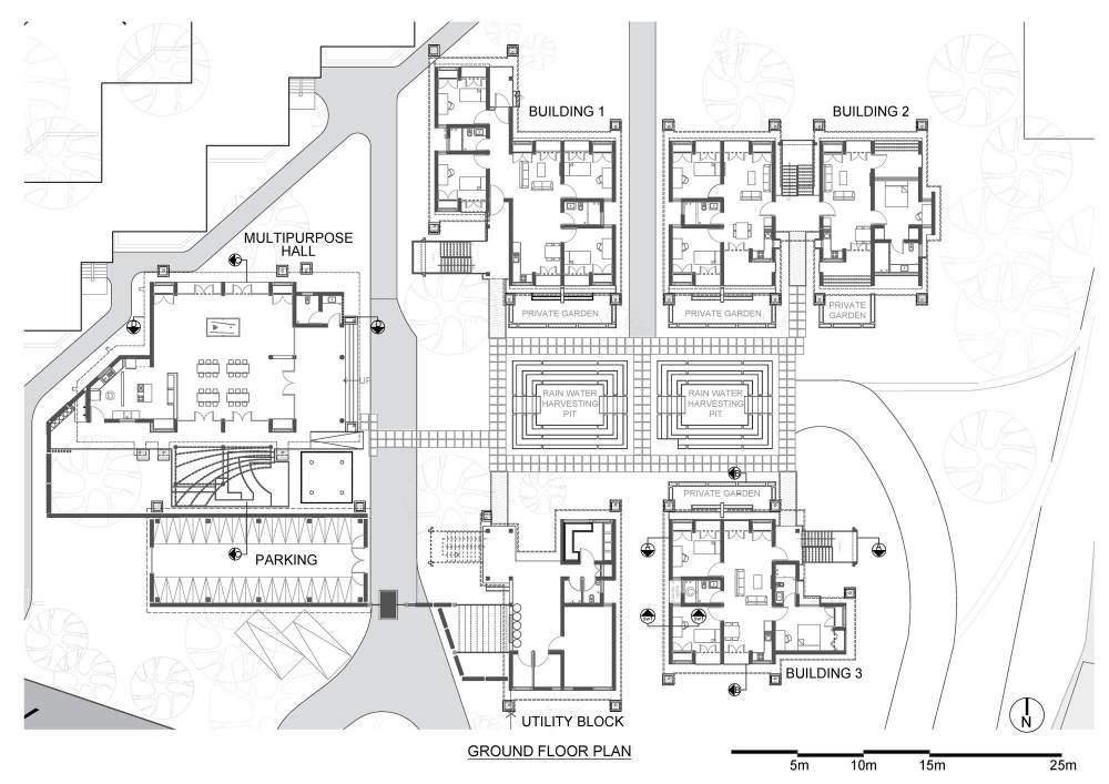
印度“人文景观”是一个综合性绿色城市生活的范例项目,作为可持续发展模式的标杆,旨在为人居环境设定基准,而这也是面对当前全球能源危机与气候变化问题下所被迫切需要的。这种住宅、社区和工作空间的混合项目也将成为低能耗建筑标准的试金石。该项目希望能提高印度建筑业无组织性劳动力部门的能力,通过先进的建筑材料和技术降低建筑工作耗能与碳排放,满足印度对IPCC委员会的承诺。
通过使用当地的建筑材料和技术,该住宅利用可再生能源,不仅能产生自给自足的能源,富余的能源也使得该住宅成为一个生产能源的基地。该建筑的可持续的特点包括了零排放水、固体废物回收、使用了抗旱的当地种植作为景观的一部分,并为城市农业模式自生产有机食品。通过整合工作和生活空间,使用综合社区和IT基础设施(ICITI),以及使用环保的交通方式(例如电动车)来减少交通的碳排放也是该项目园区的成果之一。
这栋公寓将以下四个目标作为可持续性绿色园区发展方案的指南:
•可持续的建筑环境具有能充分利用阳光的建筑表皮来适应气候的变化。有效利用空间,以减少建筑面积,并采用最少加工和机械施工,降低建筑的排放。
•水、能源和废物的综合回收利用规划。该住宅项目的可持续的特点包括零排放水、固体废物回收、使用了抗旱的当地种植作为节水型景观的一部分,并为城市农业模式自生产有机食品。
•人类生态学,采用“共同居住”的生活概念,促进邻居之间的互动,以促进包容性强的社会发展、及经济和环境效益。园区融合了生活、工作、娱乐和主要便利设施的功能,允许多种空间共同使用,有效减少建筑面积,为居民提供与农业、生产性景观、废物回收与绿色能源互动的机会,并作为开放式学习园区的一部分。
•该项目将建立一个名为“可持续发展”的知识资源协作网络(SustaiNet),并进行进一步的推广。该网络将为不同机构之间提供一个包容性的知识共享的平台,并允许学术界的学生和专业人士在该项目建造期间和项目完成后分享和传播知识。
项目完工照片 | Finished Photos
设计师:Auroville Design Consultant
分类:城市规划
客服
消息
收藏
下载
最近



























