查看完整案例


收藏

下载
案例简介
Case description
说在前面
说到这届95后,对居住空间的接受度是越来越高。而新生代屋主越来越多元化的居住需求,也给我们带来更多设计上的灵感和对新空间的思考。本案这对小夫妻委托我们设计的这套婚房,就体现了居住空间的一些新变化:
原始房型为一套紧凑型上叠户型,一共三层,顶层是个阁楼。对于这样的房型,常规思路都是把客餐厅放在一层,二层为卧室,阁楼大部分安排了储物功能,即使做个小书房,也因为冬冷夏热不会久待。
而本案里,通过和屋主反复的沟通,了解他们的喜好、生活习惯,将常规设计中客厅的功能搬到了阁楼,很好地保证了一层的功能性和空间感,也让客厅有了不同寻常的体验感。除此之外,我们大胆运用了较多黑色元素,迎合了追求潮酷的年轻人喜好,让家的层次更加丰富而多元化。
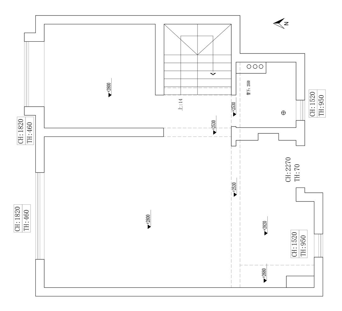
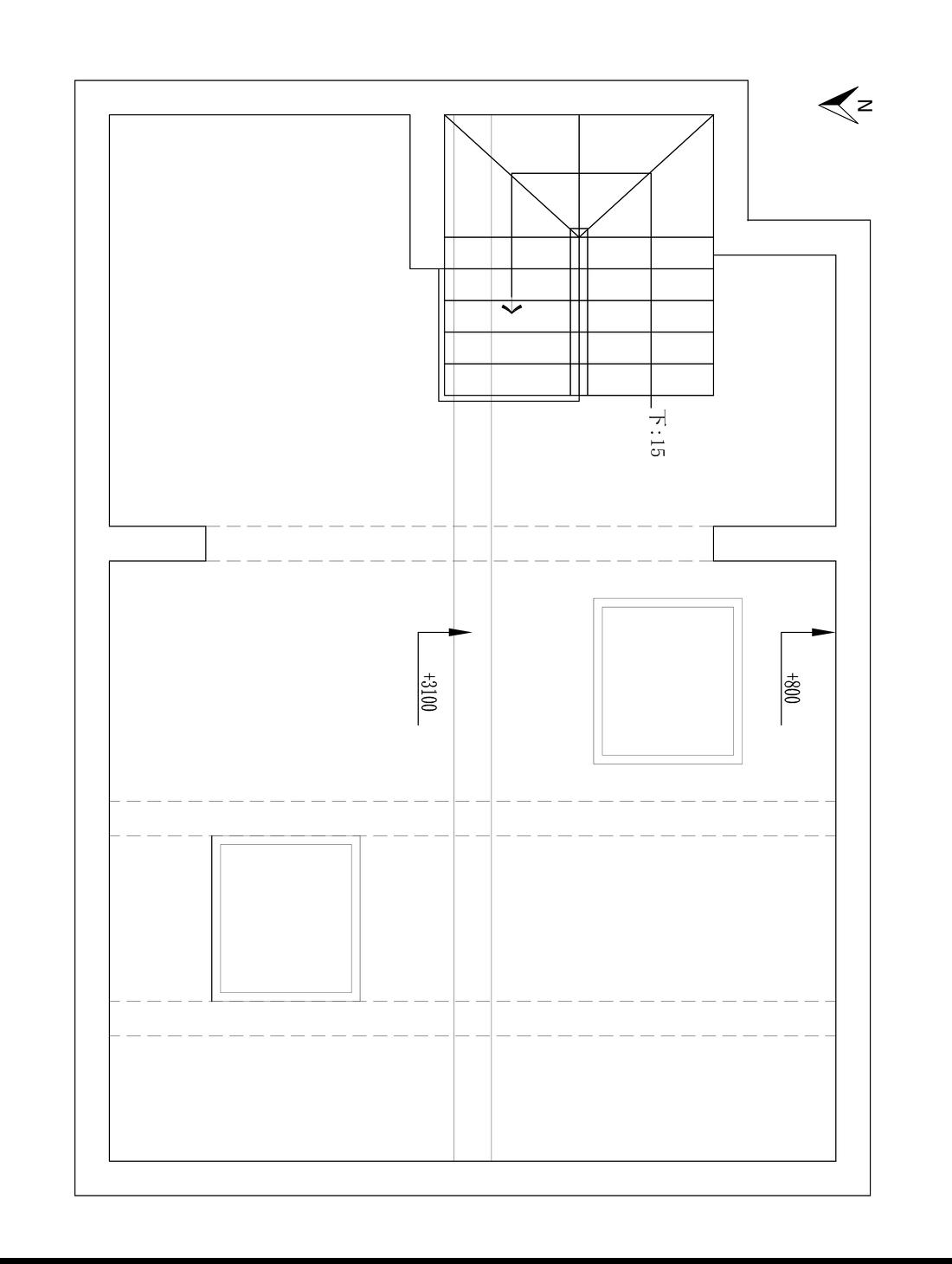
原始结构图(左滑浏览F1-F3)
从原始结构图可以看出,房型虽然比较方正,但是每层面积并不大,导致每个功能版块比较紧凑,尤其是整个房子的进深比较短,才7米多点。如果既要保证空间的舒适又要满足客餐厨的功能性,需要按横厅的方式来布局,但是屋主必须保留一间朝南的多功能房,也是为长辈偶住预留的卧室。有了这些限制,一层布局显然成为了重点和难点。
平面布局图(左滑浏览F1-F3)
经过和屋主的沟通,我们提出去客厅化的设计思路:将原本一层的客厅功能大幅弱化,空间完全释放给了开放式厨房+餐厅+多功能房,外加一间带淋浴功能的卫生间。同时,我们认为楼梯的位置也比较合理,调整的意义不大,保留了原楼梯位。对于年轻的屋主来说,还是希望有个独立的客厅能和三五好友一起聚会吃鸡看球赛,平时二人世界的时候能享受宅家追剧看电影的浪漫时光。所以,这些需求在我们打造的阁楼新空间里得到了满足。二层是主人套房和一间儿童房,套卧里还特别安排了一间小书房。整个新家的设计,我们并没有花费很多成本去改造格局,而是重新定义了空间的功能性,就解决了使用面积和空间局促的问题。
由于空间受限,我们并没有去刻意设计独立玄关,而是利用入户这段墙体整体设计了鞋柜+全身镜+洞洞板的收纳形式。洞洞板可以布置成照片墙、留言板,还可以搭配不同的五金件,实现小物件的收纳。
一层去客厅化后,我们将客厅功能搬到了阁楼。阁楼为双面斜顶的结构,南北两侧各有一个很大的天窗,采光和通风都非常好。我们将对称的梁体涂刷上水泥艺术漆,顶部以一条钢带灯串联,更强调一种结构之美。
南北两侧低矮的区域定制了矮柜,收纳杂物。中间较高的区域大面积留白,以丰富的软装来打造慵懒、自在的客厅。定制柜全部选用免漆板材质,展现自然原木的质地,经典模块沙发+黄色Togo毛毛虫懒人沙发+丹麦CH25绳编扶手椅以自由围合的方式摆放,搭配青山美宿小黑石羊毛地毯和充满生机的绿植,营造出自然、质朴的北欧格调。
当夜幕低垂,点上几盏烛台,在熠熠闪烁的烛光下和台灯的映衬下,浪漫气息弥漫了整个空间。
完全留白的电视墙,让空间更加纯粹干净。电视机下定制了一整排开放柜作为书架,开放柜上摆放着屋主收藏的POPMART手办和各种小摆件,其中豪斯风格的Flos经典台灯和艺术画让不起眼的角落也拉满了氛围感。
完全留白的电视墙,让空间更加纯粹干净。电视机下定制了一整排开放柜作为书架,开放柜上摆放着屋主收藏的POPMART手办和各种小摆件,其中豪斯风格的Flos经典台灯和艺术画让不起眼的角落也拉满了氛围感。
厨房为全开放式设计,黑色上柜可以增加厨房的时尚感和现代感。而原木色下柜则赋予厨房自然和温暖的感觉,与黑色上柜创造出一种质感丰富的空间。
其中的一个细节是和吊柜相接的一圈吊顶用黑色木饰面处理后,与黑色不锈钢窗框融合为一体,不仅解决了吊顶和上柜不在一个平面的问题,也让黑色有了延伸和呼应,削弱了上柜在空间上过于孤立的感觉。同时,视觉上也更为极简、更有整体感。
在餐厅和厨房之间的这组吧台,具有很强的实用性:高低台面的设计,让吧台可以实现厨房操作台面和吧台的双重功能,同时也让连通的餐厨空间有了过渡和功能区的划分。
去客厅化后,餐厅的空间非常宽敞。靠厨房一侧设计了整面黑色组合柜,包含蒸烤箱、储藏和内嵌冰箱,靠窗的一侧也是同色的收纳柜,中间则是一组开放的餐边柜,包含上下柜和台面,非常具有整体感。从整个开放空间来看,餐边柜、吧台下柜和橱柜下柜全部选用统一的木饰面,其中餐边柜的上柜和吧台下柜为格栅造型,相互呼应,而吧台下柜的开放格为跳跃的红色,又与红色餐桌腿呼应,这些细节设计打破了黑+灰的单调,让整个空间现代感和张力十足。
全屋为无主灯设计,简洁的平顶内嵌极窄边框筒灯,均匀的点光源照明辅助反光灯带,让整个空间的照明和氛围感有了丰富的层次,满足多种照明模式的切换。
顶面和部分立面涂刷统一米灰色艺术涂料,让全屋的色调更加柔和,顶减少黑与白的强烈反差。同时也增加了墙顶面的质感,让细节更为丰富。
虽然一层保留了多功能房,但我们不希望空间被墙体阻隔。多功能房和餐厅之间的墙体设计为半通透方式,只保留了一小部分墙面用来固定电视,其余全部采用玻璃隔断,让空间保持了视觉上的连通,同时也完全可以独立成为卧室使用。
主卫位于主人卧室内。利用同色系墙地砖和涂料,营造出墙顶地浑然一体的视觉效果。
连接主卧的阳台内扩为室内空间,大幅增加了主卧的面积。我们将这个采光最佳的区域统一抬高一步设计了一块休闲区,搭配躺椅、小茶几和绿植,随时可以充分享受阳光和自然风,放飞心情。
艺术玻璃移门并没有放在卫生间内,而是有意设计在外侧。一是当玻璃移门完全打开,和黑色柜体重叠,起到了装饰效果,二是卫生间内的收纳柜可以更加完整,提高了利用率。
主卧背景墙大胆使用整面黑色格栅造型,在灯光的烘托下非常有质感。下半部分的床头背板和床头柜统一为一个整体,更为极简而轻盈。
书房位于主卧内,采用非常极简的悬浮书桌的设计,最大限度节省了空间,更显得宽敞。
超长的桌面可以满足2-3人同时办公、游戏,即是书房也可以根据自己喜好打造成电竞房。
客服
消息
收藏
下载
最近












































