查看完整案例

收藏

下载
案例简介
Case description
抽离繁琐的装饰,弱化不同空间之间的边界,通过光影、地面、家具、线条等在室内空间里构建一个极具松弛感的世界,借由场所,引导居住者思考:开放与自由、家庭与成长。
这次的项目位于黄埔江边的顶层复式,平时主要是业主夫妻和一双儿女居住。设计师结合房子景观和自然光线效果,考虑居住者和空间的关系,打造一个开放互通的空间。旋转楼梯宛如一个螺成为家的组成部分,以流畅的线条将分散的空间连接,构成完整体。
推开移门,您会发现主卫的白色飘窗旁洒下了温暖的阳光。视线由此延伸,空间更显开阔。浴缸紧靠飘窗,静谧的沐浴时光也能欣赏窗外景色
简是一种面向生活的态度,让生活趋于纯粹。主卧是我们休憩和放松的私密领地,通过白色与木色的结合,营造了一个简洁而温馨的空间。巧妙地利用到顶的隐形门将衣帽间隐藏起来,保持了整个空间的简洁和流畅。
餐桌旁边是螺旋楼梯,楼梯成了餐区的巨型装饰,为整个用餐空间增添了一份独特的艺术韵味。而在楼梯后隐藏着一个小型水吧区,安装有水槽,为居住者的生活带来了便捷和舒适。
从二楼往下看,线条从下婉转至上,它如沉睡的螺,成为家里的一部分,安静聆听家里的点滴。不同角度下,动静皆宜,满室惊喜。二楼的扶手换成透明玻璃,为居住者提供了更通透的视野,增强了楼梯区域的互动性。
白色岛台与深灰色地面形成鲜明对比,视觉上让餐厅更显清爽。岛台上连接着一块不规则的木板,作为餐桌使用。木板原始的线条,为餐区增添了自然的元素和独特的艺术感。这种设计突破了传统餐桌的形式,注重线条的流动感和自然美。
下沉式餐厅的设计在客厅的抬高基础上,营造了一个独特而舒适的用餐环境。通过布局和材质搭配的思考,传达出设计对于家庭关系的影响和塑造力,突破传统设计的力量。
餐厅的地面采用深灰色的panDomo,为整个空间增添了一份稳重和深邃的氛围。白色香格里拉帘升起时居住者可以欣赏到外面的美景;窗帘降下时整个餐厅洁净而纯白,居住者更能专注用餐的氛围。
为了让空间更显干净和通透,我们选择了大量的白作为空间的底色,白色顶部、白色柱子和白色墙面不仅增强了空间的明亮感,还凸显了现代简约风格的特点。与此同时,木地板的自然质感和色调的温暖与白色调相得益彰,为整个空间增添了一份舒适和温暖的氛围。Poliform白色模块沙发和承重柱对立摆放,两把HC28的沙发椅平衡空间色彩,在白与木色交织的空间里,增加更多活力。
为了强调家庭互动和沟通的重要性,客厅没有电视,而是设计了展示架。这个展示架可以用来展示家庭照片、音响和收藏品,让家人们共同回忆和分享美好时光。客厅和餐厅之间无遮挡,也旨在促进家庭成员之间的互动与交流,让居住者专注于家庭互动和沟通,共同创造珍贵的家庭记忆。
楼梯的价值不仅在于其功能性,我们更希望它能成为家里的艺术装置,它以其独特的形状和流转的线条成为整个空间的亮点。从客餐厅望去,楼梯的扶手如丝带般流转,连接一二楼,为空间增添了一份流动与优美。
客厅位于挑空区域,三面被窗户环绕,这使得自然光可以自由地洒入室内。设计师巧妙地利用窗户,将室外美景与室内空间相融合,打造了一个与自然紧密相连的居住体验。当夕阳余晖穿过窗户投射在墙上,光影柔和,空间被点亮,宁静而梦幻。
全屋唯一的电视在二楼的主卧外,远离小朋友最常待的客厅,同时也能满足大人日常的观影需求。空间开放简约但不简单,超高木饰面做到顶,适当的留白打造一个温暖且有质感的观影空间。
茶桌静静地坐在房间的中心,深木色的茶桌与浅色的地板和墙面相得益彰。窗台上放置的绿植,为整个空间注入了一份生机和清新。
茶桌对面是书房的核心工作区域,简洁的环境更易于专注。书桌上沿着墙面设计了一排L型书架,充分利用了墙体空间,让书籍得以有序地展示和存放。在墙体预留的槽口中安装书架,不仅方便了后期的调整和维护,也展现了精心的设计和考虑。
没有什么比木更具生长的力量,它承载着大自然的智慧与生命的能量。进入这个书房,超高通顶门散发着庄严肃穆的氛围,而木地板的存在为空间注入了自然的温暖。它们不仅仅是材料的选择,更是对自然力量的致敬和对生命循环的体验。
浴缸紧靠飘窗,静谧的沐浴时光也能欣赏窗外景色
墙面与顶面之间不使用不锈钢镜面衔接,空间得以延伸。这种设计为女儿卧创造了更宽敞和开放的感觉。墙面的延伸营造出一个视觉上的连贯性,使整个空间显得更加流畅和统一。
将蓝色作为空间的主色调,营造了一个充满活力和想象力的环境。沿着墙面设计了一条L形书桌和书架,为男孩提供了一个专属的学习和娱乐区域。
阳台垭口以不锈钢镜面包裹,巧妙地利用磁吸贴片,墙面瞬间变成了一个小黑板。小朋友可以在这个小黑板上涂鸦、写字,尽情展示他们的创意和想法。男孩房增添了一份趣味和互动性,这个小小的空间成为了孩子们展现自己和与大人交流的场所。
女儿卧是一个充满童真和梦幻的空间,通过粉色作为空间的主色调,营造了一个温馨和浪漫的环境。墙面与顶面之间不使用不锈钢镜面衔接,空间得以延伸。这种设计为女儿卧创造了更宽敞和开放的感觉。墙面的延伸营造出一个视觉上的连贯性,使整个空间显得更加流畅和统一。
厨房采用双门动线,多人进入的情况下也不会显得拥挤。橱柜下安装感应灯带,满手油污的情况下,不用触碰也能让操作区变得明亮,从细节提升生活质量。
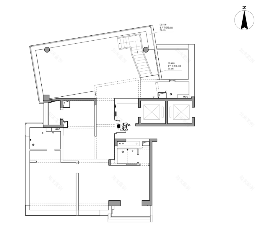
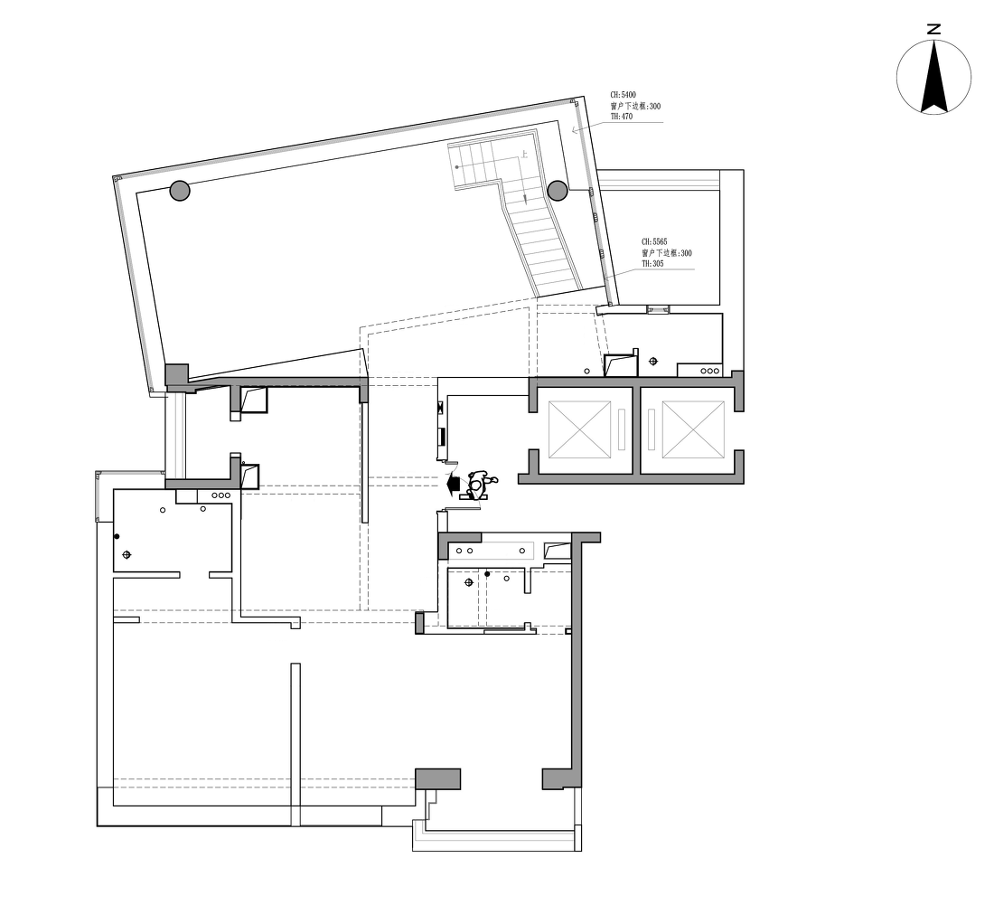
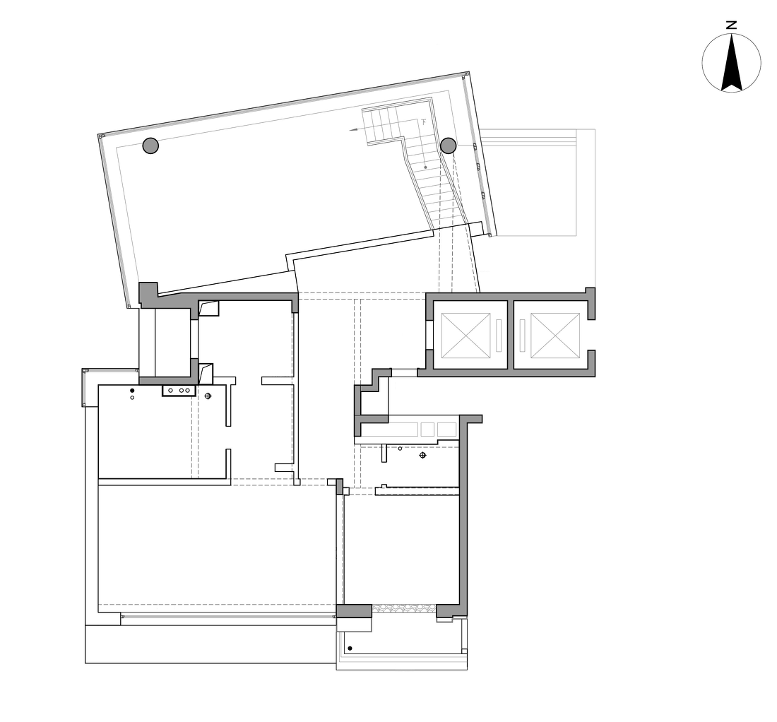
一楼是一个超大的挑空区,三面是窗,采光和景观极佳。但是窗户下有一圈高300的边框,考虑到观景的舒适度,设计师将客厅区域的地面抬高与边框齐平,同时利用高度差打造下沉式餐厅。整个空间布局可以和窗外景色有更密切的交织,从而形成自然的结合。
调整了楼梯的位置和造型后,东面的窗景更完整,没有遮挡物,空间更显开阔。与此同时,旋转楼梯也成为家里的大型艺术装置。以室外景作为室内空间的装饰,业主关于【家】的回忆不再局限于四方房子,有肆意的风,自由的云,温柔的母亲河,璀璨的城市星光......
客服
消息
收藏
下载
最近







































